Aktuell - Fenster und Türen sind da und werden jetzt eingebaut! :)
Bei dem Bauvorhaben handelt es sich um den Neubau eines nicht unterkellerten Einfamilienhauses mit einem Erd-, Ober- und einem Staffelgeschoss in hervorragender Lage von Ludwigsfelde auf 625qm Grundstück in Ecklage. Dieses dreigeschossige Traumhaus mit seinen 240qm Nettowohnfläche ist aktuell:
Rohbau mit Fertigstellung Dach und Fertigstellung Terrasse gedämmt plus Einbau Fenster inklusive Haustür und Gallerie für den genannten Preis und sollte nach Übernahme in 5-7 Monaten schlüsselfertig zur Übergabe an Sie sein. Dieses Haus wurde Stein auf Stein gebaut und ist somit kein Fertighaus. Es wird derweil schon weiter gebaut.
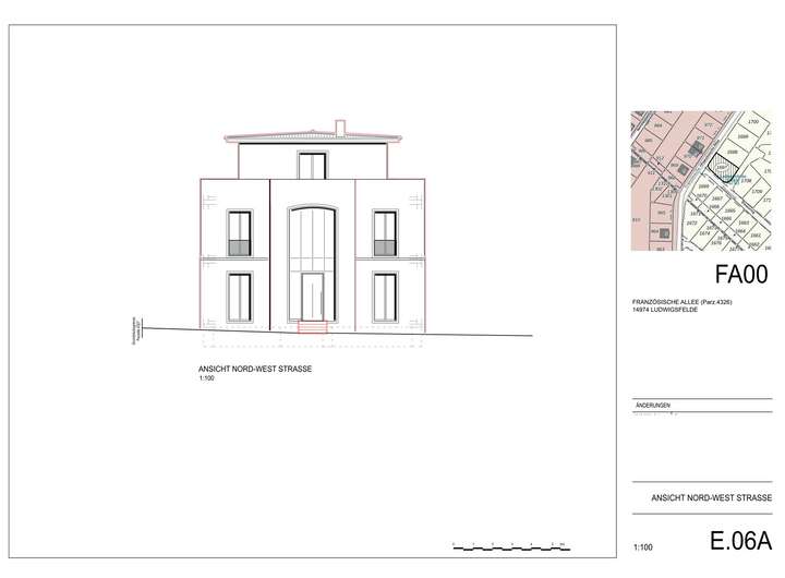
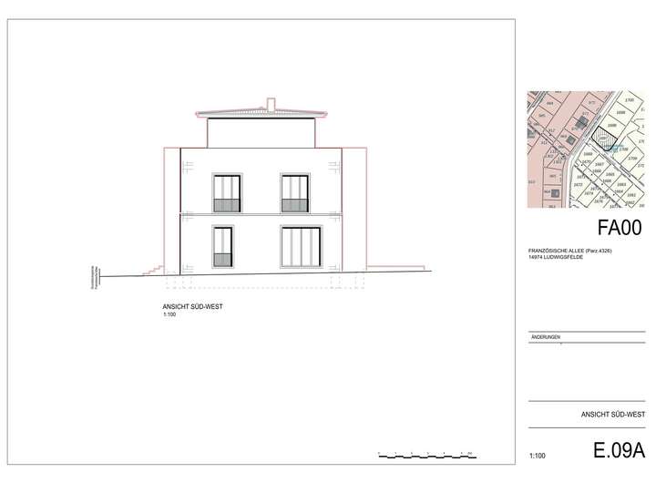
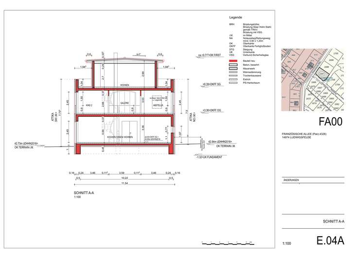
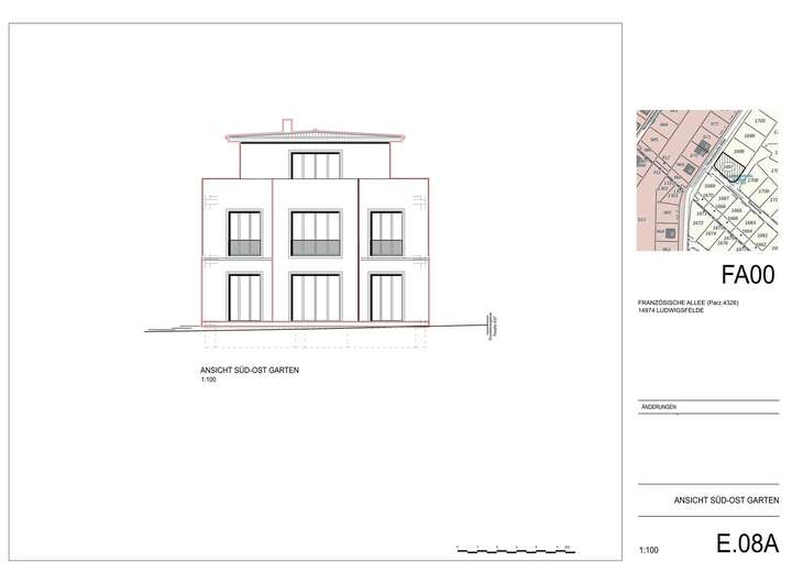
Der Rohbau und der Rest des aktuellen Zustands lässt kaum Wünsche offen: eine hohe Galerie im Eingangsbereich bildet das Entrée. Die Deckenhöhe im EG beträgt nach Fertigstellung Altbau-Ähnliche 3m. Eine Bodenheizung ist geplant und ein Balkon im Staffelgeschoss, der ums gesamte Haus geht. Sprich Sie haben ganztägig immer einen Sonnenplatz.
Die Terrasse im EG hat rund 35qm und die Terrasse im DG rund 57qm zum Sonnenbaden und familiären Miteinander. Zusätzlich haben Sie rund 430qm Garten zur Ihrer Freizeitgestaltung und Entspannung.
Beheizt werden soll das Haus über die geplante Luftwärmepumpe.
Die Baufertigstellung ist kein Problem und damit können wir Ihnen gerne direkt weiter helfen.
In jedem Fall kommt Ihr Traumhaus Sie wesentlich günstiger zu stehen als wenn Sie es schlüsselfertig neu planen und bauen lassen würden. Der Marktpreis für dieses oder ein vergleichbares Neubau Haus ist 1.200.000 - 1.400.000 Euro.
Die Baufertigstellung bis zur Schlüsselübergabe bei diesem Haus kostet einen überschaubaren Betrag, entsprechend der Qualitätsausführung und sollte mit der vorliegenden Baufirma oder einer anderen besprochen werden. In jedem Fall sollten Sie im Ergebnis deutlich unter dem Marktpreis bleiben und schon jetzt mit der Planung des Einzugs beginnen können.
Die Baugenehmigung und sämtliche relevante Unterlagen sind vorhanden, weshalb mit dem Weiterbau sofort begonnen werden kann.
Kommen Sie vorbei und verschaffen Sie sich einen persönlichen Eindruck von Ihrem neuen Traumhaus.
Fenster & Türen im Einbau! - Ihr 6-Zimmer Traumhaus in Ludwigsfelde zur individuellen Fertigstellung
14974 Ludwigsfelde
Die vollständige Adresse der Immobilie erhalten Sie vom Anbieter.
Auf Karte anzeigen
Die vollständige Adresse der Immobilie erhalten Sie vom Anbieter.
Finanzierungszertifikat
In nur zwei Minuten zu Ihrem persönlichen Finanzierungszertifkat.
Infos
| Haustyp | Einfamilienhaus |
|---|---|
| Wohnfläche ca. | 240 m2 |
| Grundstücksfläche | 625 m2 |
| Bezugsfrei ab | sofort |
| Zimmer | 6 |
| Schlafzimmer | 5 |
| Badezimmer | 3 |
| Garage/Stellplatz | Carport |
| Anzahl Garage/Stellplatz | 1 |
Kosten
| Kaufpreis |
0 € |
|---|---|
| Provision |
3,57 % auf den Kaufpreis inkl. MwSt. Die Provision für den Käufer in Höhe von 3,57 % auf den Kaufpreis inkl. MwSt. ist bei notariellem Vertragsabschluss fällig und vom Käufer an die QUINZZ. GmbH zu zahlen. |
Finanzierungsrechner:
Kaufpreis:
600.000 €
Eigenkapital:
600.000 €
Monatliche Rate
0 €
Effektiver Jahreszins
0 %
Sollzinsbindung
10 Jahre
Bausubstanz & Energieausweis
| Baujahr | 2025 |
|---|---|
| Bauphase | Haus im Bau |
| Objektzustand | Erstbezug |
Beschreibung des Objekts
Ausstattung
- Fußbodenheizung
- Wärmepumpe
- PV-Anlage
- Stellplatz
- Staffelgeschoss
- Gallerie
- geplante Deckenhöhe EG 3,20m
- Kamin
Lage
Ihr Traumhaus liegt an der Ecke Französische Allee und Elsassring. Parzelle 4326. Es handelt sich hier um ein Neubaugebiet mit hervorragender Anbindung an die Natur und an den Stadtkern. Im direkten Umfeld befinden sich Einkaufsmöglichkeiten und Schulen. Die Nachbarschaft ist geprägt von Eltern mit Kindern und Best Agers. Ebenso dazu gehört eine Plantage, wovon man einen Anteil hat und frisch gewachsenes Obst- und Gemüse ernten darf. Der Anschluss an die Autobahn ist hervorragend und ein Bus, 705er, fährt direkt vor der Tür.
Sonstige Angaben
Das Angebot ist provisionspflichtig. Die Auskünfte und Informationen in diesem Exposé basieren ausschließlich auf den Aussagen der Eigentümerpartei und somit des Auftraggebers.
Grundriss
Grundriss Erdgeschoss
>
>
Grundriss Obergeschoss
>
>
Grundriss Staffelgeschoss
>
>
Adresse
14974 Ludwigsfelde
Interessante Orte
Preis- und Lageinformationen
Preistrend für Bestandsimmobilien in Ludwigsfelde