Dieses attraktive Vollholzhaus der renommierten Firma Fullwood verbindet nachhaltiges Wohnen auf höchstem Wohnkomfort und zeitloser Äshtetik. Die sichtbaren Holzbalken im gesamten Haus schaffen ein warmes und behagliches Ambiente und sorgen für ein einzigartiges Wohngefühl.
Auf einem großzügigen Grundstück von 811 m² präsentiert sich dieses Einfamilienhaus mit einer Wohnfläche von ca. 162 m². Das Haus ist nicht unterkellert, verfügt jedoch über eine direkt am Haus angebaute Garage mit Carport, über dem sich eine Dachterrasse erstreckt.
Erdgeschoss:
- Heller Eingangsbereich mit Diele und offenem Treppenaufgang ins DG
- Großzügiger, offener Wohn- und Essbereich mit Zugang zur Terrasse und in den Garten
- Moderne, offene Küche mit hochwertiger Einbauküche und praktischer Speisekammer
- Badezimmer mit Dusche, Waschbecken und WC
- Technikraum mit Waschmaschinen- und Trockneranschluss sowie Gas-Heizung
Dachgeschoss:
- Drei gemütliche Schlafzimmer
- Eines der Schlafzimmer mit begehbarem Kleiderschrank und direktem Zugang zum Balkon
- Zwei Schlafzimmer mit direktem Zugang zur Dachterrasse
- Offene Galerie mit Sitzecke und mit Blick in den Wohnbereich
- Großzügiges Badezimmer mit Badewanne, Dusche, Waschbecken und WC
Ausstattung:
- Kunststoff-Isolierglasfenster, 3-fach verglast
- Gas-Zentralheizung mit Solaranlage
- Fußbodenheizung im gesamten Haus
- Bodenbeläge: Fliesen und Laminatboden
- Weitläufiger Garten für vielfältige Nutzungsmöglichkeiten
Dieses Vollholzhaus vereint Nachhaltigkeit, Stil und Wohlfühlatmosphäre auf höchstem Niveau - perfekt für Familien, die Wert auf Qualität und ein naturnahes Wohnumfeld legen.
Die Immobilie ist nach Absprache verfügbar.
Übrigens: Auf die Kompetenz der Sparkasse können Sie auch in puncto Baufinanzierung zählen. Lassen Sie sich von unseren Spezialisten einfach ein maßgeschneidertes und unverbindliches Angebot für Ihre Wunschimmobilie erstellen. Unsere Konditionen und unsere Beratung können sich sehen lassen!
Attraktives Vollholzhaus!
74532 Ilshofen
Die vollständige Adresse der Immobilie erhalten Sie vom Anbieter.
Auf Karte anzeigen
Die vollständige Adresse der Immobilie erhalten Sie vom Anbieter.
Finanzierungszertifikat
In nur zwei Minuten zu Ihrem persönlichen Finanzierungszertifkat.
Infos
| Haustyp | Einfamilienhaus |
|---|---|
| Wohnfläche ca. | 162 m2 |
| Grundstücksfläche | 811 m2 |
| Bezugsfrei ab | Nach Absprache |
| Zimmer | 7 |
| Schlafzimmer | 3 |
| Badezimmer | 2 |
| Anzahl Garage/Stellplatz | 2 |
Kosten
| Kaufpreis |
650.000 € |
|---|---|
| Provision |
3,57 % inkl. ges. MwSt. vom Kaufpreis. Die Provision ist verdient und wird fällig mit notarieller Beurkundung. Die Sparkasse hat einen provisionspflichtigen Maklervertrag in gleicher Höhe mit dem Verkäufer abgeschlossen. |
Finanzierungsrechner:
Kaufpreis:
600.000 €
Eigenkapital:
600.000 €
Monatliche Rate
0 €
Effektiver Jahreszins
0 %
Sollzinsbindung
10 Jahre
Bausubstanz & Energieausweis
| Baujahr | 2015 |
|---|---|
| Bauphase | Haus fertig gestellt |
| Objektzustand | Neuwertig |
| Qualität der Austattung | Normal |
| Heizungsart | Zentralheizung |
| Wesentliche Energieträger | Solarheizung, Gas |
| Energieausweis | liegt vor |
| Energieausweistyp | Verbrauchsausweis |
| Energieverbrauchskennwert | 90,5 kWh/(m²*a) |
| Energieeffizienzklasse | C |
90,5
kWh/(m²*a)
Energieeffizienzklasse C
- A+
- A
- B
- C
- D
- E
- F
- G
- H
- 0
- 25
- 50
- 75
- 100
- 125
- 150
- 175
- 200
- 225
- >250
Beschreibung des Objekts
Ausstattung
Individuelle Ausstattungsmerkmale:
- Solaranlage Dachterrasse
- Einbauküche
Lage
Sie wohnen in Ilshofen im Teilort Eckartshausen in der herrlichen Landschaft Hohenlohes zwischen den Städten Schwäbisch Hall und Crailsheim. Die Stadt Ilshofen verfügt über eine sehr gute Infrastruktur. Sie finden verschiedene Einkaufsmöglichkeiten sowie Arztpraxen und Apotheken, Schulen und Kindergärten direkt am Ort. Eine Vielzahl an Vereinen bieten Ihnen attraktive Freizeitangebote.
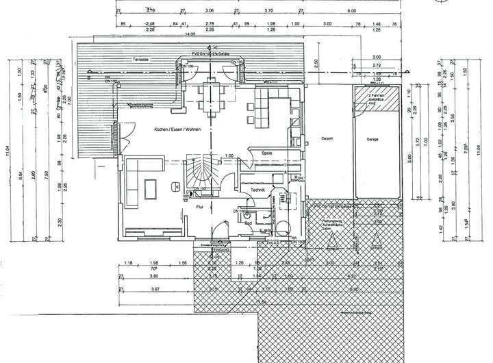
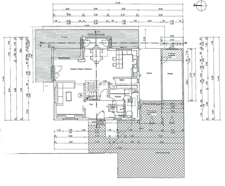
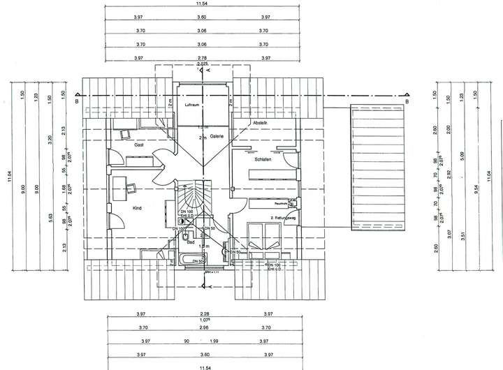
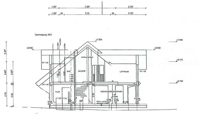
Grundriss
Grundriss EG
>
>
Grundriss DG
>
>
Grundriss Querschnitt
>
>
Adresse
74532 Ilshofen
Interessante Orte
Preis- und Lageinformationen
Preistrend für Bestandsimmobilien in Ilshofen