Nur 120 Meter zum Golfplatz! Die hier angebotene Eigentumswohnung liegt inmitten des malerischen Heidedorfs im wunderschönen St. Dionys. Das Heidedorf ist ein in den 70er- und 80er-Jahren erbautes Ensemble aus 22 Reetdach-Fachwerkhäusern. Die hier angebotene zwei Zimmer Wohnung mit 90 m² liegt im Erdgeschoss und im Souterrain des 2021 umfangreich modernisierten Heidehauses, welches zwei Eigentumswohnungen umfasst. Zur Wohnung gehört außerdem ein kleines Nebengebäude, welches in den Sommermonaten ideal als Gästezimmer genutzt werden kann.
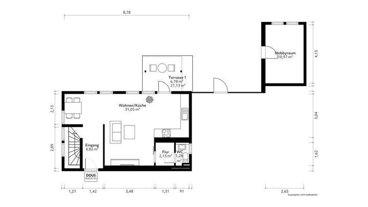
Die Wohnfläche teilt sich in 40 m² Wohnfläche im Erdgeschoss, 10 m² anteilige Fläche der Terrasse, 30 m² für das Souterrain und 10 m² für das kleine Nebengebäude auf. Aufgrund der niedrigeren Raumhöhe im Souterrain von gut 2 Metern, ist dieses und das Nebengebäude als Zubehörfläche und nicht als Wohnfläche zu betrachten. Glasfaser ist vorhanden und liegt im Haus.
Die Lage an einem der schönsten Golfplätze Deutschlands sucht ihresgleichen.
Weitere Informationen erhalten Sie gern telefonisch oder im Rahmen einer Besichtigung.
Idyllisch wohnen - im Heidedorf
21357 Barum
Die vollständige Adresse der Immobilie erhalten Sie vom Anbieter.
Auf Karte anzeigen
Die vollständige Adresse der Immobilie erhalten Sie vom Anbieter.
Finanzierungszertifikat
In nur zwei Minuten zu Ihrem persönlichen Finanzierungszertifkat.
Infos
| Wohnungskategorie | Erdgeschosswohnung |
|---|---|
| Wohnfläche ca. | 90 m2 |
| Zimmer | 2 |
Kosten
| Kaufpreis |
240.000 € |
|---|---|
| Provision |
3,57 % inkl. MwSt. |
Finanzierungsrechner:
Kaufpreis:
600.000 €
Eigenkapital:
600.000 €
Monatliche Rate
0 €
Effektiver Jahreszins
0 %
Sollzinsbindung
10 Jahre
Bausubstanz & Energieausweis
| Baujahr | 1975 |
|---|---|
| Objektzustand | Vollständig Renoviert |
| Wesentliche Energieträger | Strom |
| Energieausweis | liegt vor |
| Energieausweistyp | Bedarfsausweis |
| Energieverbrauchskennwert | 338,0 kWh/(m²*a) |
| Energieeffizienzklasse | H |
338,0
kWh/(m²*a)
Energieeffizienzklasse H
- A+
- A
- B
- C
- D
- E
- F
- G
- H
- 0
- 25
- 50
- 75
- 100
- 125
- 150
- 175
- 200
- 225
- >250
Beschreibung des Objekts
Lage
Barum gehört zur Samtgemeinde Bardowick, die Nachbarschaft der Immobilie ist geprägt von Einfamilienhäusern. Unmittelbar am Ortsrand beginnt ein ausgedehntes Waldgebiet, ferner warten Felder, Wiesen und Flüsse darauf, bei ausgedehnten Spaziergängen entdeckt zu werden. Ein Kindergarten und eine Grundschule befinden sich im Ort. Nur wenige Kilometer entfernt liegt das größere Bardowick mit zahlreichen Einkaufsmöglichkeiten. Die Universitätsstadt Lüneburg ist circa 12 km entfernt, die Hamburger Innenstadt erreicht man in 35 bis 40 Minuten.
Grundriss
Grundriss_EG
>
>
Grundriss Souterrain
>
>
Adresse
21357 Barum
Interessante Orte
Preis- und Lageinformationen
Preistrend für Bestandsimmobilien in Barum