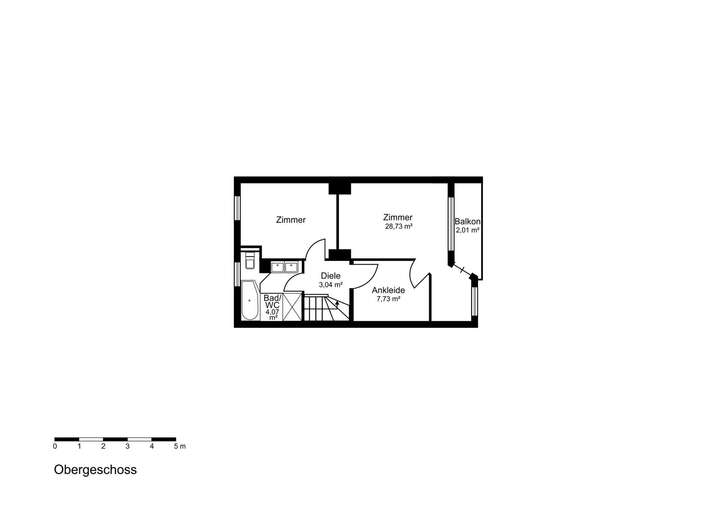
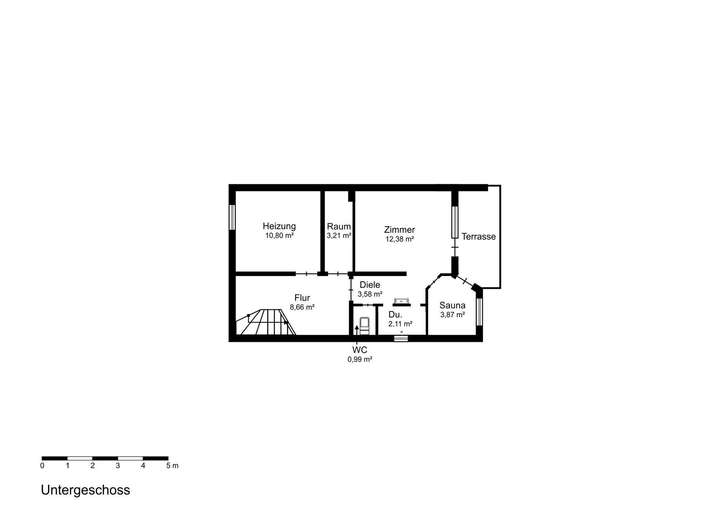
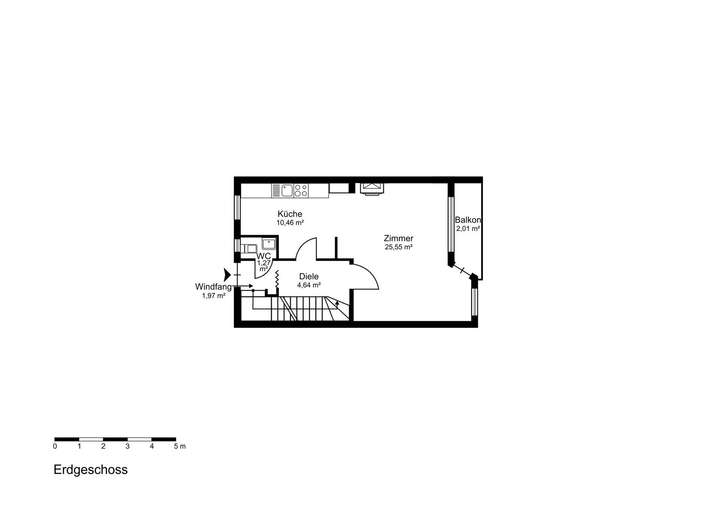
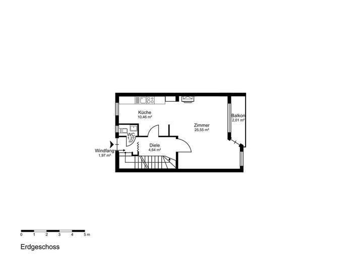
Nur wenige Schritte vom Tegeler Forst entfernt, ermöglicht diese Doppelhaushälfte naturnahes Wohnen in einer gepflegten Anlage. Als Teil einer kleinen Wohnungseigentümergemeinschaft mit fünf Einheiten überzeugt das Objekt durch einen besonders großzügigen, durch Teilungserklärung zugewiesenen Gartenanteil von rund 235 m² – liebevoll angelegt und mit direktem Zugang vom Souter-rain. Auf ca. 129 m² Wohnfläche verteilen sich vier Zimmer mit offenem Wohn- und Küchenbereich. Im Souterrain befindet sich ein tagesbelichteter Wohnbereich mit Zugang zur Terrasse – ideal als Homeoffice, Gäste- oder Hobbyraum. Eine Sauna, zwei Duschen, ein separates WC und Abstellfläche ergänzen diesen Bereich funktional. Das Hochparterre bildet den Mittelpunkt der Immobilie: ein offenes Wohnkonzept mit neuwertiger Einbauküche, Kamin und Balkon. Im Obergeschoss stehen zwei ruhige Schlafzimmer, eine Ankleide, ein weiterer Balkon sowie ein modernes Tageslichtbad mit Badewanne zur Verfügung. Die Haustechnik ist auf aktuellem Stand: neue Gastherme (2022), Warmwasseraufbereiter (2024), Fußbodenlüftung und einige erneuerte dreifach verglaste Fenster. Ein Garagenstellplatz mit E-Ladesäule rundet das Angebot ab.
Gartenoase in Konradshöhe: Doppelhaushälfte mit 4 Zimmern am Tegeler Forst
13505 Berlin
Die vollständige Adresse der Immobilie erhalten Sie vom Anbieter.
Auf Karte anzeigen
Die vollständige Adresse der Immobilie erhalten Sie vom Anbieter.
Finanzierungszertifikat
In nur zwei Minuten zu Ihrem persönlichen Finanzierungszertifkat.
Infos
| Haustyp | Doppelhaushaelfte |
|---|---|
| Etagenzahl | 3 |
| Wohnfläche ca. | 129 m2 |
| Grundstücksfläche | 386 m2 |
| Bezugsfrei ab | sofort |
| Zimmer | 4 |
| Badezimmer | 2 |
| Garage/Stellplatz | Garage |
| Anzahl Garage/Stellplatz | 1 |
Kosten
| Kaufpreis |
550.000 € |
|---|---|
| Provision |
3,57 % inkl. gesetzl. MwSt. |
Finanzierungsrechner:
Kaufpreis:
600.000 €
Eigenkapital:
600.000 €
Monatliche Rate
0 €
Effektiver Jahreszins
0 %
Sollzinsbindung
10 Jahre
Bausubstanz & Energieausweis
| Baujahr | 1967 |
|---|---|
| Letzte Sanierung | 2024 |
| Objektzustand | Modernisiert |
| Qualität der Austattung | Normal |
| Heizungsart | Zentralheizung |
| Wesentliche Energieträger | Gas |
| Energieausweis | liegt vor |
| Energieausweistyp | Bedarfsausweis |
| Energieverbrauchskennwert | 215,0 kWh/(m²*a) |
| Energieeffizienzklasse | G |
215,0
kWh/(m²*a)
Energieeffizienzklasse G
- A+
- A
- B
- C
- D
- E
- F
- G
- H
- 0
- 25
- 50
- 75
- 100
- 125
- 150
- 175
- 200
- 225
- >250
Beschreibung des Objekts
Ausstattung
Doppelhaushälfte in ruhiger Lage
4 Zimmer + Ankleide
Souterrain mit Tageslichtzimmer, Sauna, 2 Duschen, WC, Abstellraum
Hochparterre: offener Wohn-/Essbereich, neuwertige EBK, Kamin, Balkon, Gäste-WC
Obergeschoss: 2 Zimmer, Ankleide, Bad mit Wanne, weiterer Balkon
Neue Gastherme (2022), Warmwasseraufbereiter (2024), Fußbodenlüftung
1 Garagenstellplatz mit E-Ladesäule
Gepflegte WEG-Anlage mit 5 Einheiten
Lage
Konradshöhe im Nordwesten Berlins steht für naturnahes Wohnen mit hohem Erholungswert. In einer gewachsenen Umgebung mit Einfamilien- und Reihenhäusern, altem Baumbestand und gepflegten Gärten bietet der Ortsteil ruhiges Wohnen abseits des Trubels – ohne Verzicht auf städtische Anbindung. Nur wenige Minuten entfernt laden die Havel, der Tegeler See und der Tegeler Forst zu Wassersport, Rad- und Wandertouren ein – ideale Voraussetzungen für eine aktive Freizeitgestaltung im Grünen. Die Buslinien sorgen für eine zuverlässige Verbindung nach Tegel und in weitere Stadtteile. Schulen, Kindergärten und Einkaufsmöglichkeiten sind bequem erreichbar und unterstreichen die Alltagstauglichkeit der Lage. Konradshöhe kombiniert naturnahe Umgebung, funktionale Infrastruktur und eine stabile Nachbarschaft – eine Wohnlage für alle, die Ruhe, Natur und eine verlässliche Anbindung zu schätzen wissen.
Grundriss
EG
>
>
OG
>
>
KG
>
>
Adresse
13505 Berlin
Interessante Orte
Preis- und Lageinformationen
Preistrend für Bestandsimmobilien in Konradshöhe (Reinickendorf)