Dieses beeindruckende Anwesen in Much, liegt eingebettet in die malerische Natur des Bergischen Landes und erstreckt sich über eine Grundstücksfläche von ca. 1 Hektar. Mit einer großzügigen Wohnfläche von ca. 400 m², die durch eine aufwendige und präzise Sanierung perfektioniert wurde, verbindet es historischen Charme mit modernstem Wohnkomfort.
Das Wohngebäude ist nahtlos in die historische Fachwerkstruktur integriert, wodurch der ursprüngliche Charakter des Hauses erhalten blieb. Zugleich bietet die hochwertige Ausstattung ein luxuriöses Wohngefühl. Edle Materialien und feine Details ziehen sich durch alle Räume, während der direkte Zugang zum grünen Außenbereich aus nahezu jedem Zimmer im Erdgeschoss das Haus in eine Oase der Entspannung verwandelt. Ob für vier Schlafzimmer oder eine andere Raumaufteilung – das Haus passt sich flexibel an die individuellen Bedürfnisse seiner Bewohner an. Das Erdgeschoss umfasst zudem vielseitig nutzbare Räume, die aktuell als zusätzliche Küche und Seminar-Ergänzungsbereiche dienen. Diese Räume eröffnen zahlreiche Möglichkeiten, sei es als privater Rückzugsort, Büro, Hobbyraum oder Erweiterung des Wohnbereichs. Die Gestaltung des Interieurs vereint traditionelle Elemente mit zeitgemäßer Eleganz und schafft so eine einzigartige Atmosphäre. Von den großzügigen Eichendielen bis hin zu den luxuriös ausgestatteten Bädern wurde jedes Detail sorgfältig geplant, um höchsten Ansprüchen gerecht zu werden. Ein weiteres Highlight ist das separate Seminar- und Wellnessgebäude. Hier findet sich ein weitläufiger Seminarraum mit eindrucksvollen Eichendielen, die dem Raum eine warme und zugleich repräsentative Ausstrahlung verleihen. Ergänzt wird dieser Bereich durch eine hochmoderne KLAFS-Sauna mit großzügiger Regendusche und separatem Ruheraum – ein Ort, der wie geschaffen ist für Erholung und Wohlbefinden.
Auch die technischen Aspekte des Anwesens setzen Maßstäbe: Eine leistungsstarke Photovoltaikanlage (2 x 8,6 kW) mit 30 kW Speicherbatterien sorgt in Kombination mit einer Hybridheizung aus Luftwärmepumpe, Solarthermie und Flüssiggas für nachhaltige Energieversorgung. Ein Notstromaggregat garantiert zusätzliche Sicherheit. Eine Alarmanlage bietet Schutz, während das schnelle Starlink-Satelliteninternet für eine zuverlässige Anbindung sorgt.
Im Außenbereich erwartet Sie ein weitläufiger Park mit altem Baumbestand, der zur Erholung einlädt und Raum für naturnahes Leben schafft. Für Fahrzeuge steht eine Doppelgarage mit zwei Wallboxen sowie zusätzliche Außenstellplätze zur Verfügung. Besonders hervorzuheben ist auch die großzügige Küche im Loft-Look, die mit modernsten Geräten ausgestattet ist und sowohl optisch als auch funktional überzeugt – ein Ort, der zum kreativen Kochen einlädt.
Luxus Refugium im Bergischen. Wohntraum in grüner Idylle nahe Köln und Bonn.
53804 Much
Die vollständige Adresse der Immobilie erhalten Sie vom Anbieter.
Auf Karte anzeigen
Die vollständige Adresse der Immobilie erhalten Sie vom Anbieter.
Finanzierungszertifikat
In nur zwei Minuten zu Ihrem persönlichen Finanzierungszertifkat.
Infos
| Etagenzahl | 2 |
|---|---|
| Wohnfläche ca. | 393 m2 |
| Nutzfläche | 73 m2 |
| Grundstücksfläche | 9.976 m2 |
| Zimmer | 10 |
| Schlafzimmer | 4 |
| Badezimmer | 4 |
| Anzahl Garage/Stellplatz | 8 |
Kosten
| Kaufpreis |
2.950.000 € |
|---|---|
| Provision |
3,57 % inkl. der gesetzl. MwSt., bezogen auf den Kaufpreis |
Finanzierungsrechner:
Kaufpreis:
600.000 €
Eigenkapital:
600.000 €
Monatliche Rate
0 €
Effektiver Jahreszins
0 %
Sollzinsbindung
10 Jahre
Bausubstanz & Energieausweis
| Baujahr | 1800 |
|---|---|
| Objektzustand | Saniert |
| Heizungsart | Fußbodenheizung |
| Energieausweis | liegt vor |
| Energieausweistyp | Bedarfsausweis |
| Energieverbrauchskennwert | 69,0 kWh/(m²*a) |
| Energieeffizienzklasse | B |
69,0
kWh/(m²*a)
Energieeffizienzklasse B
- A+
- A
- B
- C
- D
- E
- F
- G
- H
- 0
- 25
- 50
- 75
- 100
- 125
- 150
- 175
- 200
- 225
- >250
Beschreibung des Objekts
Ausstattung
* ca. 393 m² Wohnfläche
* Luxuriös saniert
* Vielfältige Nutzungsmöglichkeit
* Sauna
* PV Anlage 30 KW Speicher
* Hybridheizung; LWP, Solar, Flüssiggas
* Alarmanlage
* Doppelgarage mit 2 Wallboxen
* Parkähnlicher Garten
* Grundstücksfläche mit ca. 9.976 m²
Lage
Dieses Anwesen befindet sich in malerischer Umgebung der Gemeinde Much. Eingebettet in die sanften Hügel des Bergischen Landes, vereint die Lage ländliche Idylle mit hervorragender Erreichbarkeit. Die Region ist geprägt von unberührter Natur – weite Wiesen, dichte Wälder und sanfte Täler schaffen eine Atmosphäre, die zum Entspannen und durchatmen einlädt. Das Grundstück selbst liegt in einer ruhigen und abgeschiedenen Ecke von Much und bietet außergewöhnliche Privatsphäre. Gleichzeitig erreichen Sie in nur 30 bis 45 Minuten mit dem Auto die Städte Köln und Bonn. Die nahegelegene Autobahn A3 sorgt für eine schnelle und bequeme Anbindung, ohne den ländlichen Charakter der Umgebung zu beeinträchtigen. In der näheren Umgebung finden Sie alles, was Sie für den täglichen Bedarf benötigen. Einkaufsmöglichkeiten, Restaurants und weitere Einrichtungen sind in wenigen Autominuten erreichbar. Die Region bietet zudem vielfältige Freizeitmöglichkeiten: Spaziergänge, Wanderungen oder einfach das Genießen der weitläufigen Natur – hier ist alles möglich.
Die Lage vereint Privatsphäre, landschaftliche Schönheit und praktische Anbindung. Sie bietet nicht nur einen idealen Rückzugsort, sondern auch eine Lebensqualität, die Naturliebhaber und Menschen, die Entspannung suchen, gleichermaßen begeistert.
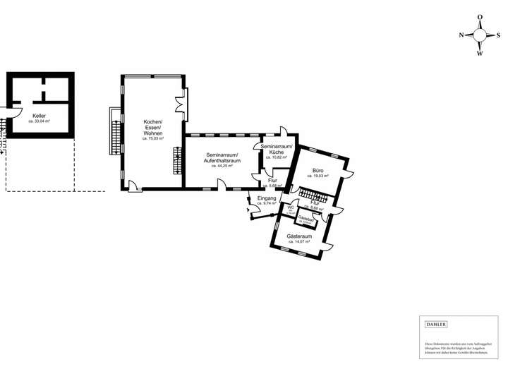
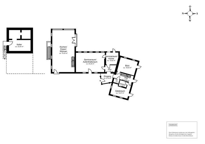
Grundriss
Grundriss EG
>
>
Grundriss OG
>
>
Grundriss Nebengebäude
>
>
Adresse
53804 Much
Interessante Orte
Preis- und Lageinformationen
Preistrend für Bestandsimmobilien in Much