Das ca 800m2 große Grundstück befindet sich in guter Verkehrstechnischer Lage im Zentrum von Lohmen im Herzen der Sächsischen Schweiz.
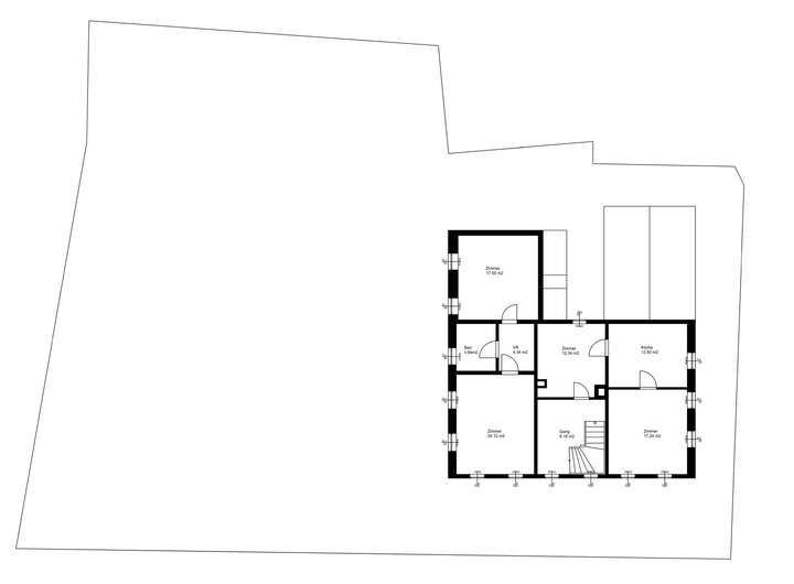
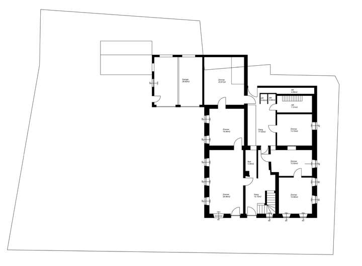
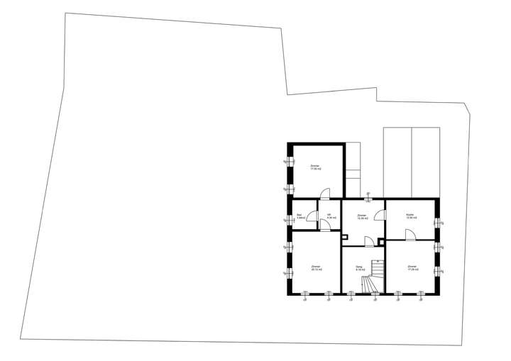
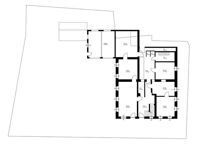
Das Fachwerkshaus, mit 3 Geschoßen (EG OG DG) und ca. 190m2 Wohnfläche, wurde 1850 in regional typischer Bauweise errichtet (Sandstein, Lehm, Holz).
Das Gebäude wurde um 2 Zubauten und 1 Garage erweitert.
siehe Pläne und Fotos
Grundstück mit sanierungsbedürftigem Fachwerkshaus im Herzen der Sächsischen Schweiz zu verkaufen.
Basteistrasse 45,
01847 Lohmen
Auf Karte anzeigen
Finanzierungszertifikat
In nur zwei Minuten zu Ihrem persönlichen Finanzierungszertifkat.
Infos
| Vermarktungsart | Kaufen |
|---|---|
| Grundstücksfläche | 790 m2 |
| Erschließung | Erschlossen |
| Bebaubar nach | Bebauungsplan |
| Verfügbar ab | 1.10.2025 |
Kosten
| Miete pro Jahr |
90.000 € |
|---|---|
| Provision | Nein |
Finanzierungsrechner:
Kaufpreis:
600.000 €
Eigenkapital:
600.000 €
Monatliche Rate
0 €
Effektiver Jahreszins
0 %
Sollzinsbindung
10 Jahre
Beschreibung des Objekts
Lage
• Gute Anbindung (Bushaltestelle gegenüber, 15min Fußweg zu S-Bahn, ca. 30min mit dem Auto nach Dresden Zentrum, ca. 10min mit dem Auto nach Pirna)
• Familienfreundlich: Grundschule, Montessori Schule, Kindergarten/Grippe in Gehdistanz
• Naherholung im Nationalpark Sächsische Schweiz (Bsp. Bastei 10min Autodistanz)
Grundriss
00 B45 Luftbild
>
>
00 B45 Kataster 2015
>
>
00 B45 Lageplan
>
>
AA B45 EG 1100
>
>
BB B45 OG1 1100
>
>
CC B45 DG 1100
>
>
DD B45 Ans Ost
>
>
EE B45 Ans Süd
>
>
FF B45 Ans West
>
>