Dieses Baugrundstück von 945 m² (aktuell noch mit Altbestand bebaut) eröffnet einzigartige Möglichkeiten für Neubauprojekte oder kreative Wohnkonzepte. Dank der Größe könnte hier z.B. ein Mehrfamilienhaus mit 5 Einheiten oder ein Doppelhaus realisiert werden – Ihrer Planung sind fast keine Grenzen gesetzt. Die Rücksprache mit dem Bauamt hat vom Kaufinteressenten direkt zu erfolgen. Wer ein Grundstück mit hohem Entwicklungspotenzial sucht, findet hier die ideale Grundlage für kreative und zukunftsorientierte Planung. Es liegt eine aktuelle Planung eines Architekten vor für ein Mehrfamilienhaus mit fünf Einheiten und rund 382 Quadratmetern Gesamtwohnfläche. Näheres legen wir Ihnen gerne in einem gemeinsamen Ortstermin dar.
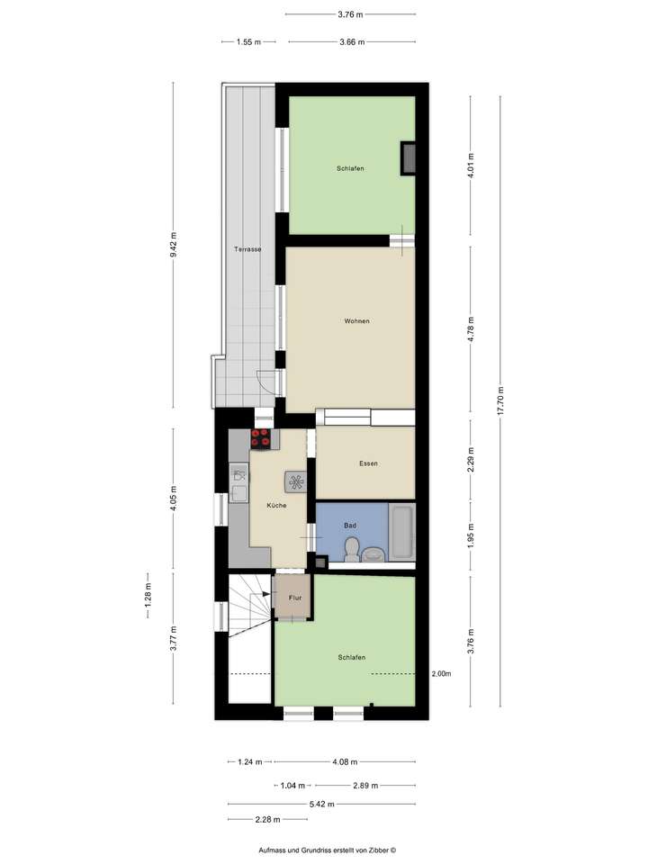
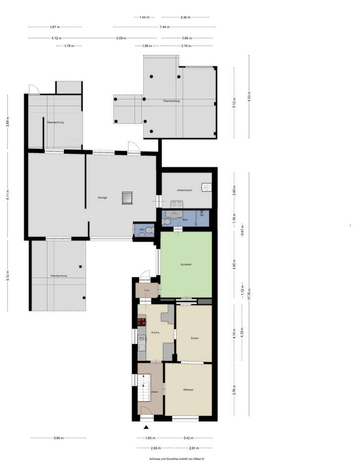
Das Bestandshaus selbst verfügt über praktische Extras wie Werkstatt, Heiz- und Waschraum, Öltankraum, Garage, Terrasse und Balkon. Der Altbau ist teilweise unterkellert und das Obergeschoss wurde 1966/1967 umgebaut. Modernisierungen wie Kunststofffenster und Ölheizung (2022), erneuerte Haustür (2013) und vorhandene Jalousien runden den Gesamteindruck ab.
Dieses Grundstück ist eine einmalige Gelegenheit, um in Dormagen ein Projekt mit großem Entwicklungspotenzial zu realisieren – eine Chance, die sich so schnell nicht wieder bietet.
Einmalige Gelegenheit: 945 m² Grundstück, MFH mit 5 Einheiten in Dormagen
41539 Dormagen
Die vollständige Adresse der Immobilie erhalten Sie vom Anbieter.
Auf Karte anzeigen
Die vollständige Adresse der Immobilie erhalten Sie vom Anbieter.
Finanzierungszertifikat
In nur zwei Minuten zu Ihrem persönlichen Finanzierungszertifkat.
Infos
| Vermarktungsart | Kaufen |
|---|---|
| Grundstücksfläche | 945 m2 |
Kosten
| Miete pro Jahr |
459.000 € |
|---|---|
| Provision |
3,57 % inkl. MwSt. |
Finanzierungsrechner:
Kaufpreis:
600.000 €
Eigenkapital:
600.000 €
Monatliche Rate
0 €
Effektiver Jahreszins
0 %
Sollzinsbindung
10 Jahre
Beschreibung des Objekts
Lage
Dormagen selbst macht dieses Potenzial besonders attraktiv: Die Stadt liegt zentral zwischen Düsseldorf und Köln und bietet damit eine ideale Kombination aus ruhigem Wohnen im Grünen und schneller Erreichbarkeit der Metropolen. Pendler profitieren von hervorragender Anbindung über Autobahnen und S-Bahn, während Familien die Nähe zu Schulen, Kindergärten, Einkaufsmöglichkeiten und einem breiten Freizeitangebot schätzen.
Auch die Umgebung überzeugt: Rheinauen, Wälder und weitläufige Rad- und Spazierwege schaffen Lebensqualität, während die Infrastruktur der Stadt alle täglichen Bedürfnisse abdeckt. Gerade Grundstücke dieser Größe sind in Dormagen selten – wer hier ein Neubauprojekt umsetzt, profitiert von langfristigem Wertzuwachs und Flexibilität, sei es für private Wohnträume oder als Investition.
Sonstige Angaben
Allgemein gilt:
Das angebotene Objekt wird im Alleinauftrag von Wohngold Immobilien vermarktet. Alle Informationen wurden mit äußerster Sorgfalt zusammengestellt. Für deren Richtigkeit können wir jedoch keine Gewähr übernehmen. Alle Daten in diesem Exposé beruhen auf den Angaben des Auftraggebers und dienen als Vorabinformation. In Plänen oder Fotos dargestellte Einrichtungsgegenstände sind nicht Gegenstand des Angebotes, sofern sie nicht explizit im später vereinbarten Kaufvertrag aufgeführt sind. Visualisierungen sind als unverbindliches Beispiel zu verstehen. Als Rechtsgrundlage gilt allein der unterschriebene Kaufvertrag. Irrtum, Auslassung und Zwischenverwertung bleiben vorbehalten. Bitte haben Sie Verständnis, wenn wir nur Kunden antworten können, welche uns vollständige Postadresse UND Telefonnummern hinterlassen. Für Exposé-Übersendungen oder Besichtigungsabstimmungen benötigen wir Ihre entsprechenden Angaben. Mögliche Visualisierungen sind als unverbindliches Beispiel zu verstehen. Etwaige Um- oder Ausbaugenehmigungen sind vom Käufer einzuholen und mit dem Bauamt abzusprechen. Alle Angaben sind ohne Gewähr und basieren ausschließlich auf Informationen und Unterlagen, die uns von unserem Auftraggeber oder Dritten übermittelt wurden. Für Vollständigkeit, Richtigkeit und Aktualität dieser Daten kann von uns keine Haftung übernommen werden. Das Angebot darf nur mit unserer schriftlichen Einwilligung an Dritte weitergegeben werden.
Grundriss
Obergeschoss
>
>
Erdgeschoss
>
>