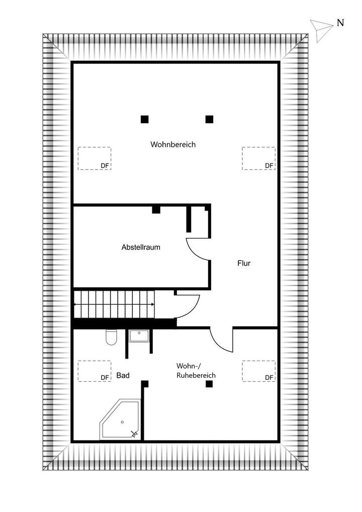
Dieses modernisierte Einfamilienhaus aus dem Jahr 1976 überzeugt durch seine Großzügigkeit, die besondere Lage sowie zahlreiche Ausstattungsdetails. Auf einem weitläufigen Grundstück von ca. 1.508 m² – zzgl. einer eigenen Hauskoppel von ca. 12.253 m² mit straßenseitigem Zugang – bietet die Immobilie ideale Bedingungen für Menschen mit Platzbedarf, Tierhaltung oder dem Wunsch nach naturnahem Wohnen in Feldrandlage. Die Wohnfläche von ca. 173 m² verteilt sich auf zwei Ebenen. Im Erdgeschoss befinden sich ein heller Wohn- und Essbereich mit Zugang zur Terrasse, drei weitere Zimmer zur individuellen Nutzung, eine Einbauküche mit Durchreiche zum Esszimmer, ein Gäste-WC sowie ein modernes Duschbad. Ein separater Treppenaufgang führt in ein hochwertig ausgebautes Studio im Dachgeschoss – ideal als Rückzugsort, Atelier oder Gästebereich. Ein Wannenbad mit angrenzendem Ruhebereich ergänzt das Raumangebot. Das Dachgeschoss bietet zudem die Möglichkeit, ohne großen Aufwand eine Einliegerwohnung zu schaffen. Der Vollkeller bietet wohnlich ausgebaute Flächen, die sich flexibel zum Arbeiten oder Wohnen nutzen lassen. Zusätzlich stehen hier ein Fitnessraum, eine Sauna sowie weitere Abstellmöglichkeiten zur Verfügung. Der Garten ist blickgeschützt angelegt und mit einem Außenpool samt mobiler Überdachung, Poolhaus mit Pooltechnik und einem überdachten Loungebereich mit Kaminofen und großer Holzterrasse ausgestattet – perfekt für entspannte Stunden im Freien. Ein Carport mit abschließbarem Abstellraum sowie weitere Außenstellplätze runden das Angebot ab. Technisch überzeugt das Haus unter anderem mit einer Gasbrennwerttherme aus 2022, 3-fach verglasten Fenstern, Glasfaseranschluss und Internetzugang auf allen Etagen. Ein ideales Zuhause für alle, die naturnahes Leben und großzügiges Wohnen und Arbeiten harmonisch verbinden möchten. Wir freuen uns auf Ihre Anfragen!
Wohnen mit Weitblick - Haus mit Koppel und Außenpool
25524 Heiligenstedtenerkamp
Die vollständige Adresse der Immobilie erhalten Sie vom Anbieter.
Auf Karte anzeigen
Die vollständige Adresse der Immobilie erhalten Sie vom Anbieter.
Finanzierungszertifikat
In nur zwei Minuten zu Ihrem persönlichen Finanzierungszertifkat.
Infos
| Haustyp | Einfamilienhaus |
|---|---|
| Wohnfläche ca. | 173 m2 |
| Nutzfläche | 131 m2 |
| Grundstücksfläche | 13.761 m2 |
| Bezugsfrei ab | Nach Vereinbarung |
| Zimmer | 6 |
| Badezimmer | 2 |
| Anzahl Garage/Stellplatz | 3 |
Kosten
| Kaufpreis |
695.000 € |
|---|---|
| Provision |
3.57 % inkl. gesetzl. MwSt. |
Finanzierungsrechner:
Kaufpreis:
600.000 €
Eigenkapital:
600.000 €
Monatliche Rate
0 €
Effektiver Jahreszins
0 %
Sollzinsbindung
10 Jahre
Bausubstanz & Energieausweis
| Baujahr | 1976 |
|---|---|
| Objektzustand | Neuwertig |
| Heizungsart | Zentralheizung |
| Wesentliche Energieträger | Gas |
| Energieausweis | liegt vor |
| Energieausweistyp | Bedarfsausweis |
| Energieverbrauchskennwert | 127,2 kWh/(m²*a) |
| Energieeffizienzklasse | D |
127,2
kWh/(m²*a)
Energieeffizienzklasse D
- A+
- A
- B
- C
- D
- E
- F
- G
- H
- 0
- 25
- 50
- 75
- 100
- 125
- 150
- 175
- 200
- 225
- >250
Beschreibung des Objekts
Ausstattung
Einbauschränke
PVC
Laminat
Fliesen
Schwimmbad, außen
Vollunterkellert
Lage
Das Zuhause liegt in Heiligenstedtenerkamp, einer kleinen, naturnahen Gemeinde vor den Toren Itzehoes. Hier genießen Familien eine ruhige, grüne Umgebung mit kurzen Wegen zu Kindergärten, Schulen und Einkaufsmöglichkeiten. Ärzte, Sportvereine und Freizeitangebote sind ebenfalls schnell erreichbar und bieten eine rundum gute Versorgung. Pendler profitieren von der sehr guten Anbindung: In wenigen Minuten erreicht man das Zentrum von Itzehoe. Von dort bestehen direkte Zugverbindungen nach Hamburg mit einer Fahrzeit von rund 40 Minuten. Auch mit dem Auto gelangt man über die nahe Autobahn A23 zügig in die Hamburger Metropolregion oder Richtung Nordseeküste. Auch die Freizeit kommt hier nicht zu kurz: Spaziergänge oder Fahrradtouren durch die weitläufige Landschaft beginnen direkt vor der Haustür, während die Stadt Itzehoe mit ihrem Kultur- und Freizeitangebot schnell erreichbar ist. Heiligenstedtenerkamp vereint damit ländliche Ruhe mit einer ausgezeichneten Erreichbarkeit.
Sonstige Angaben
Der Makler-Vertrag mit uns und/oder unserem Beauftragten kommt durch schriftliche Vereinbarung oder durch die Inanspruchnahme unserer Maklertätigkeit auf der Basis des Objekt-Exposés und seiner Bedingungen zustande. Die Käufercourtage in Höhe von 3,57 % auf den Kaufpreis einschließlich gesetzlicher Umsatzsteuer ist bei notariellem Vertragsabschluss verdient und fällig. Die Höhe der Bruttocourtage unterliegt einer Anpassung bei Steuersatzänderung. Die EuV Wohnen GmbH (Lizenznehmer der Engel & Völkers Residential GmbH) und ggf. deren Beauftragte erhalten einen unmittelbaren Zahlungsanspruch gegenüber dem Käufer (Vertrag zugunsten Dritter, § 328 BGB). Grunderwerbssteuer, Notar- und Gerichtskosten trägt der Käufer.
Grundriss
Erdgeschoss
>
>
Dachgeschoss
>
>
Keller
>
>
Adresse
25524 Heiligenstedtenerkamp
Interessante Orte
Preis- und Lageinformationen
Preistrend für Bestandsimmobilien in Heiligenstedtenerkamp