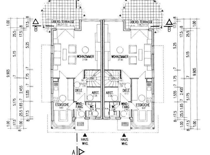
Die DHH besteht aus folgenden Räumlichkeiten:
Erdgeschoss:
Wohnzimmer mit Zugang zur Terrasse und Garten, Wohnküche mit Essbereich, Gäste-WC/HWR, Diele mit Abstellfläche, Windfang
Obergeschoss:
1 Kinderzimmer, 1 Schlafzimmer mit Zugang zum Ankleidezimmer, Badezimmer, 2 Balkone
Dachgeschoss:
Ausgebautes Dachstudio zur individuellen Nutzung
Zu der Wohneinheit gehört ein Parkplatz (Garage oder Carport), sowie ein persönlicher Kellerbereich im Nebengelass.
Doppelhaushälfte mit Blick ins Grüne - Schnell zugreifen - letzte verfügbare DHH!
16767 Leegebruch
Die vollständige Adresse der Immobilie erhalten Sie vom Anbieter.
Auf Karte anzeigen
Die vollständige Adresse der Immobilie erhalten Sie vom Anbieter.
Finanzierungszertifikat
In nur zwei Minuten zu Ihrem persönlichen Finanzierungszertifkat.
Infos
| Haustyp | Sonstige |
|---|---|
| Etagenzahl | 3 |
| Wohnfläche ca. | 123 m2 |
| Grundstücksfläche | 200 m2 |
| Zimmer | 3 |
| Schlafzimmer | 2 |
| Badezimmer | 1 |
| Anzahl Garage/Stellplatz | 1 |
Kosten
| Kaufpreis |
320.000 € |
|---|---|
| Provision |
7,14 % Der Erwerb ist für den Käufer provisionspflichtig und die Courtage ist bei Abschluss eines notariellen Kaufvertrages verdient und fällig. |
Finanzierungsrechner:
Kaufpreis:
600.000 €
Eigenkapital:
600.000 €
Monatliche Rate
0 €
Effektiver Jahreszins
0 %
Sollzinsbindung
10 Jahre
Bausubstanz & Energieausweis
| Baujahr | 1998 |
|---|---|
| Objektzustand | Gepflegt |
| Qualität der Austattung | Normal |
| Heizungsart | Fernwärme |
| Wesentliche Energieträger | Fernwärme |
| Energieausweis | liegt vor |
| Energieausweistyp | Verbrauchsausweis |
| Energieverbrauchskennwert | 304,0 kWh/(m²*a) |
Beschreibung des Objekts
Ausstattung
Die Bodenbeläge können je DHH variieren.
Beispiel einer DHH:
- Wohnzimmer mit Laminatboden
- Küche gefliest
- Windfang und Bäder gefliest
- Schlaf-, Kinder- und Ankleidezimmer im OG mit Laminatboden
- ausgebautes Dachgeschoss mit Laminatboden
- Gäste-WC / HWR im EG mit Fenster, WC und Waschbecken
- Badezimmer mit Wanne, Fenster, WC, WM-Anschluss, Waschbecken)
- massive Holztreppe vom EG bis DG
- alle Fenster sind aus Kunststoff mit Isolierverglasung
- Außenjalousien im Erdgeschoss
- Natursteinfensterbänke
- Terrasse mit Garten zur privaten Nutzung (Sondernutzungsrecht)
- 1 Parkplatz je DHH in der Nähe des Hauses
Lage
Leegebruch liegt im brandenburgischen Landkreis Oberhavel und bietet eine optimale Verkehrsanbindung durch den direkten Anschluss zur B96 (30 min bis Berlin Charlottenburg ), sowie die öffentlichen Anbindungen von/nach Oranienburg bzw. von/nach Hennigsdorf (Buslinie 824).
Die eigenverwaltete Gemeinde bietet eine sehr gute Infrastruktur mit zahlreichen Einkaufsmöglichkeiten wie z.B. drei Supermärkte (Netto, REWE, Lidl), Bäcker, Floristen, Friseure, verschiedene Restaurants, Dienstleistungs- und, Handwerksbetriebe, Sparkasse, altersgerechtes Wohnheim, Apotheken, Sportvereine, Sportplatz, Freiwillige Feuerwehr, Fahrschule, Polizei, Tier-arztpraxis, Ärztehaus (Allgemeinärzte, Kinderarzt, Zahnärzte, usw.), Dentallabor, div. Praxen wie z.B. für Ergo-/ Physiotherapie oder Logopädie, Pflegeeinrichtungen, Kirchen, Kindertagesstätten, Grundschule, Pension, Spielplätze, Jugendclub und vieles mehr.
In unmittelbarer Umgebung locken viele Freizeit- und Erholungsangebote, wie der Tierpark in Gernmendorf, der Bernsteinsee in Velten, das Erlebnisbad in Oranienburg, der Kletterwald in Hennigsdorf uvm.
Sonstige Angaben
Alle Angaben beruhen auf Mitteilungen des Verkäufers oder dessen Beauftragten, daher sind Irrtum, Zwischenverkauf oder Auslassungen vorbehalten.
Weitere Informationen zur genauen Lage des Objektes stellen wir Ihnen gerne auf Anfrage zur Verfügung.
Grundriss
Grundriss EG_baugleich
>
>
Grundriss OG_baugleich
>
>
Grundriss DG_baugleich
>
>
Adresse
16767 Leegebruch
Interessante Orte
Preis- und Lageinformationen
Preistrend für Bestandsimmobilien in Leegebruch