Diese Doppelhaushälfte aus dem Jahr 1950 mit Anbauten bietet eine seltene Gelegenheit für Menschen, die ein großes Grundstück in besonderer Lage suchen. Das Haus ist sanierungsbedürftig und eröffnet damit die Möglichkeit, eigene Vorstellungen von Wohnen und Gestalten umzusetzen. Ebenso besteht die Option, das bestehende Gebäude zurückzubauen und an gleicher Stelle neu zu errichten, um das volle Potenzial dieser besonderen Lage auszuschöpfen. Hervorzuheben ist das außergewöhnlich großzügige Grundstück mit insgesamt ca. 1.235 m², von denen ca. 642 m² als Hof- und Freifläche ausgewiesen sind. Ein echtes Highlight stellt das angrenzende Erholungsgrundstück dar, das sich in erster Reihe direkt am Main befindet. Von hier aus genießen Sie nicht nur den unverbaubaren Blick auf den Fluss, sondern auch einen direkten Zugang ans Wasser. Unmittelbar am Grundstück verläuft zudem der Mainradweg, sodass sich eine einzigartige Kombination aus Wohnen, Freizeit und Natur ergibt. Diese besondere Lage macht die Immobilie zu einem seltenen Angebot mit großem Potenzial – ob für eine liebevolle Sanierung oder einen kompletten Neubau.
Idyllische Mainlage: Doppelhaushälfte mit Erholungsgrundstück in erster Reihe
63500 Seligenstadt
Die vollständige Adresse der Immobilie erhalten Sie vom Anbieter.
Auf Karte anzeigen
Die vollständige Adresse der Immobilie erhalten Sie vom Anbieter.
Finanzierungszertifikat
In nur zwei Minuten zu Ihrem persönlichen Finanzierungszertifkat.
Infos
| Haustyp | Doppelhaushaelfte |
|---|---|
| Wohnfläche ca. | 115 m2 |
| Nutzfläche | 54 m2 |
| Grundstücksfläche | 1.235 m2 |
| Zimmer | 4,5 |
| Schlafzimmer | 2 |
| Badezimmer | 1 |
Kosten
| Kaufpreis |
530.000 € |
|---|---|
| Provision |
3,57% inkl. MwSt. Wir haben einen provisionspflichtigen Maklervertrag mit dem Verkäufer in gleicher Höhe abgeschlossen. |
Finanzierungsrechner:
Kaufpreis:
600.000 €
Eigenkapital:
600.000 €
Monatliche Rate
0 €
Effektiver Jahreszins
0 %
Sollzinsbindung
10 Jahre
Bausubstanz & Energieausweis
| Baujahr | 1950 |
|---|---|
| Heizungsart | Nachtspeicherofen |
| Wesentliche Energieträger | Strom |
| Energieausweis | liegt vor |
| Energieausweistyp | Bedarfsausweis |
| Energieverbrauchskennwert | 196,0 kWh/(m²*a) |
| Energieeffizienzklasse | F |
196,0
kWh/(m²*a)
Energieeffizienzklasse F
- A+
- A
- B
- C
- D
- E
- F
- G
- H
- 0
- 25
- 50
- 75
- 100
- 125
- 150
- 175
- 200
- 225
- >250
Beschreibung des Objekts
Lage
Seligenstadt gehört zu den attraktivsten Wohnorten im Rhein-Main-Gebiet. Die Stadt liegt direkt am Main und verbindet eine idyllische Altstadt mit Fachwerkhäusern und Klosteranlage mit einer sehr guten Anbindung an die umliegenden Metropolregionen. Durch die Nähe zu Frankfurt, Offenbach, Hanau und Aschaffenburg ist Seligenstadt sowohl für Pendler als auch für Familien ein idealer Standort.
Über die Autobahnen A3 und A45 sowie die B469 erreicht man schnell das gesamte Rhein-Main-Gebiet. Bahn- und Busverbindungen runden die Anbindung ab.
Neben der Infrastruktur überzeugt Seligenstadt mit hoher Lebensqualität. Am Mainufer laden Grünflächen, Spazier- und Radwege zum Verweilen ein. Die Altstadt mit kleinen Geschäften, Cafés und Restaurants schafft eine besondere Atmosphäre. Schulen, Kindergärten, medizinische Versorgung und Einkaufsmöglichkeiten sind direkt vor Ort vorhanden.
Sonstige Angaben
Gerne stehen wir Ihnen für ein Beratungs- und Besichtigungstermin zur Verfügung.
Sie möchten selbst eine Immobilie verkaufen?
Wir ermitteln einen seriösen und marktgerechten Wert Ihrer Immobilie. Mit einem individuell für Sie abgestimmten Vermarktungsplan optimieren wir die Verkaufschancen. Als Tochtergesellschaft der Frankfurter Volksbank Rhein/Main unterstützt uns hierbei unser umfangreiches Netzwerk. Gerne begleiten wir Sie auf dem Weg zum erfolgreichen Verkauf Ihrer Immobilie und stehen Ihnen auch noch nach dem Beurkundungstermin zur Verfügung.
Für alle Fragen zur Finanzierung stehen Ihnen die Spezialisten der Frankfurter Volksbank Rhein/Main zur Verfügung. Hier stellen wir gerne einen Kontakt her.
Sprechen Sie uns an – wir freuen uns auf Sie!
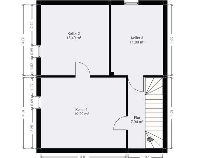
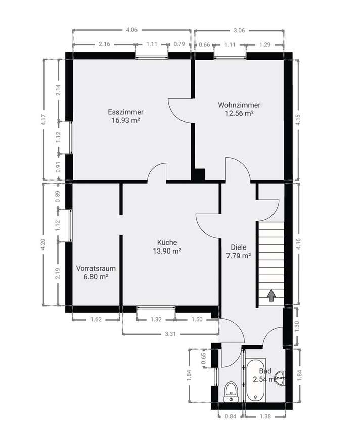
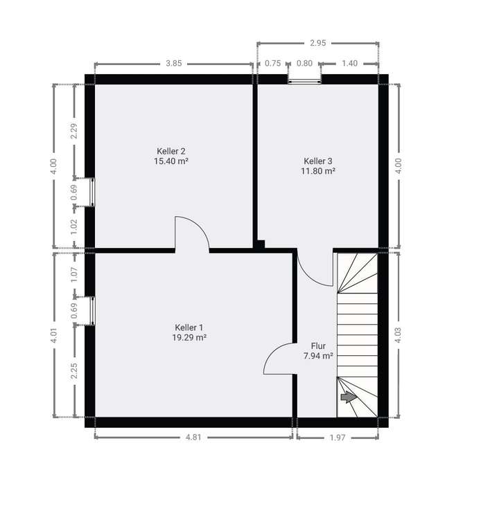
Grundriss
Keller
>
>
Erdgeschoss
>
>
Dachgeschoss
>
>
Adresse
63500 Seligenstadt
Interessante Orte
Preis- und Lageinformationen
Preistrend für Bestandsimmobilien in Seligenstadt