Entdecken Sie Ihr neues Zuhause in dieser charmanten Doppelhaushälfte in Pulheim. Diese Immobilie bietet mit ihren 80 m² Wohnfläche und einem großzügigen Grundstück von 315 m² viel Platz für Familien oder Paare, die sich nach einem gemütlichen Rückzugsort sehnen.
Das Haus verfügt über 4 Zimmer, 3 Schlafzimmer und 1 Badezimmer, verteilt auf 2 Etagen. Obwohl die letzte Modernisierung im Jahr 2000 stattfand, präsentiert sich das Haus heute als sanierungsbedürftig und bietet somit die perfekte Gelegenheit, es nach Ihren persönlichen Vorstellungen zu gestalten und zu modernisieren.
Die einfache Ausstattung schafft eine blanke Leinwand für Ihre kreativen Ideen. Freuen Sie sich auf eine Garage und einen zusätzlichen Außenstellplatz für Ihre Fahrzeuge. Ein praktischer Keller bietet zusätzlichen Stauraum, während das Gäste-WC für Komfort sorgt. Der angrenzende Garten lädt zu entspannten Stunden im Freien ein und bietet Raum für gestalterische Möglichkeiten.
Die Zentralheizung, betrieben mit Öl, sorgt für eine angenehme Wohnatmosphäre in allen Jahreszeiten. Nutzen Sie diese Chance, um in Pulheim sesshaft zu werden und Ihr neues Zuhause nach Ihren Wünschen zu gestalten.
Gestalten Sie Ihr Haus neu: sanierungsbedürftige Doppelhaushälfte in Pulheim mit 315 m² Grundstück
Am Holländer 24,
50259 Pulheim
Auf Karte anzeigen
Finanzierungszertifikat
In nur zwei Minuten zu Ihrem persönlichen Finanzierungszertifkat.
Infos
| Haustyp | Doppelhaushaelfte |
|---|---|
| Etagenzahl | 2 |
| Wohnfläche ca. | 82 m2 |
| Nutzfläche | 20 m2 |
| Grundstücksfläche | 315 m2 |
| Bezugsfrei ab | sofort |
| Zimmer | 3 |
| Schlafzimmer | 2 |
| Badezimmer | 1 |
| Garage/Stellplatz | Garage |
| Anzahl Garage/Stellplatz | 3 |
Kosten
| Kaufpreis |
329.000 € |
|---|---|
| Provision |
3,57% inkl. MwSt. vom beurkundeten Kaufpreis |
Finanzierungsrechner:
Kaufpreis:
600.000 €
Eigenkapital:
600.000 €
Monatliche Rate
0 €
Effektiver Jahreszins
0 %
Sollzinsbindung
10 Jahre
Bausubstanz & Energieausweis
| Baujahr | 1982 |
|---|---|
| Letzte Sanierung | 2000 |
| Bauphase | Haus fertig gestellt |
| Objektzustand | Renovierungsbedürftig |
| Qualität der Austattung | Einfach |
| Heizungsart | Zentralheizung |
| Wesentliche Energieträger | Öl |
| Energieausweis | liegt zur Besichtigung vor |
Beschreibung des Objekts
Lage
Das Haus liegt im Stadtgebiet von Pulheim, im Stadtteil Stommeln, eingebettet in eine offene Ackerlandschaft der Kölner Bucht. Die Nähe zur Großstadt Köln macht Pulheim besonders attraktiv für Familien und Pendler.
Die Holländersiedlung ist ein historisches Wohngebiet, das in den 1960er Jahren im Stil niederländischer Reihenhäuser errichtet wurde. Sie zeichnet sich durch kompakte Bauweise, charakteristische Architektur und einen charmanten, familienfreundlichen Charakter aus. Die Straßenbezeichnung „Am Holländer“ verweist direkt auf diesen niederländischen Baustil. In den letzten Jahren haben Anwohnerinitiativen dafür gesorgt, dass der ursprüngliche Charakter der Siedlung bewahrt bleibt – ein Engagement, das den historischen Charme der Wohnlage unterstreicht.
🔷 Verkehrsanbindung
Autobahnen: Pulheim liegt verkehrsgünstig nahe den Autobahnen A1, A4 und A57, was schnelle Verbindungen in alle Richtungen bietet.
Öffentlicher Nahverkehr: Regionalbahnen und Buslinien verbinden Pulheim direkt mit Köln und den umliegenden Städten.
Landschaft & Naherholung
Ruhige, grüne Umgebung mit Feldern, Naherholungsgebieten und Wasserlandschaften.
Der Pulheimer See wird zu einem Freizeit- und Badesee umgestaltet.
Weitere Naherholungsgebiete: Nordpark, Stöckheimer Hof, Pulheimer Bach, Naturschutzgebiet Große Laache.
🔷 Familienfreundlichkeit
Pulheim bietet ein ideales Umfeld für Familien:
Gartenreiche Einfamilien- und Reihenhauslagen, darunter auch in der Holländersiedlung.
Bildungsangebote und Freizeitmöglichkeiten für Kinder jeden Alters.
Die Bevölkerung entwickelt sich demografisch gemischt: Pulheim wächst moderat, wird älter und vielfältiger durch Zuzug und Migration.
Stadtentwicklung & Perspektiven
Strategisches Demografie-Konzept zur Sicherung von Lebensqualität, Infrastruktur und sozialen Angeboten.
Baulandstrategie „Pulheimer Weg“: neue Wohngebiete mit Fokus auf Geschosswohnungsbau, geförderte und preisgedämpfte Mietwohnungen.
ISEK (Integrierte Stadtentwicklungskonzepte) steuert die Entwicklung von Einzelhandel, Mobilität, Wohnraum und öffentlichen Räumen bis 2030.
Geplante Infrastrukturprojekte: mögliche S-Bahn-Anbindung, Verbesserung der Bonnstraße, Ausbau von Kitas, Schulen und Pflegeeinrichtungen.
Bildung – Kindergärten & Schulen in der Nähe
Kindergärten:
- Kita Stommeln
- Kita Brauweiler
Schulen:
- Papst-Johannes-XXIII.-Schule (Gesamtschule mit bilingualem Profil in Stommeln)
- Geschwister-Scholl-Gymnasium (städtisches Gymnasium in Pulheim-Zentrum)
Sonstige Angaben
Die Grunderwerbsteuer, Notar- und Gerichtskosten trägt der Käufer. Alle Angaben sind ohne Gewähr und basieren ausschließlich auf Informationen, die uns von unserem Auftraggeber übermittelt wurden. Wir übernehmen keine Gewähr für die Vollständigkeit, Richtigkeit und Aktualität dieser Angaben. Zwischenverkauf bleibt vorbehalten. Sollte das von uns nachgewiesene Objekt bereits bekannt sein, teilen Sie uns dieses bitte unverzüglich mit. Die Weitergabe dieses Exposees an Dritte ohne unsere Zustimmung löst gegebenenfalls Courtage- bzw. Schadensersatzansprüche aus.
Alle Angaben beruhen auf Verkäuferangaben. Eine Überprüfung hat auftragsgemäß nicht stattgefunden. Alle Angaben und Maße sind ohne Gewähr. Irrtum und Änderungen vorbehalten.
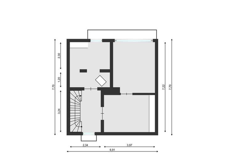
Grundriss
Grundriss EG
>
>
Grundriss OG
>
>
Grundriss Keller
>
>
Adresse
Am Holländer 24, 50259 Pulheim
Interessante Orte
Preis- und Lageinformationen
Preistrend für Bestandsimmobilien in Pulheim