Erleben Sie diesen erstklassig gepflegten und mit vielen Raffinessen ausgestatteten Walmdachbungalow mit ebenerdigem Raumprogramm, großzügiger Doppelgarage (Unterstellmöglichkeit für ein Wohnmobil) und Hobbywerkstatt in verkehrsberuhigter Siedlungslage von Augustfehn.
Räumlichkeiten:
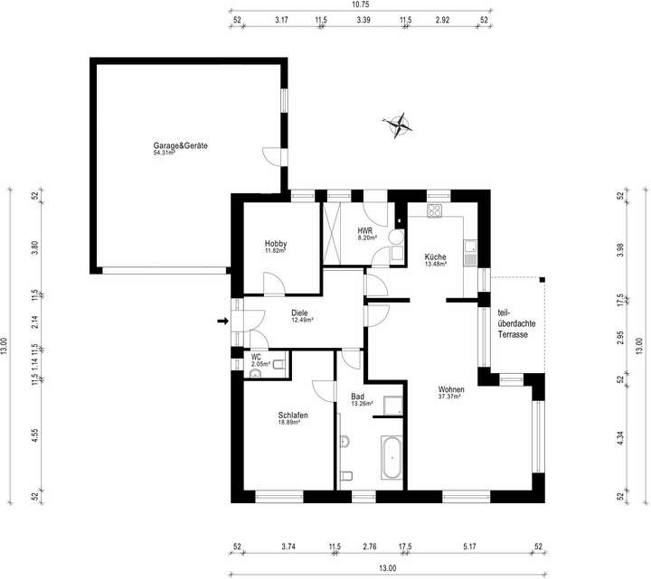
a) Erdgeschoss
großzügige Eingangsdiele, geräumiges Wohn- und Esszimmer mit Zugang auf die Terrasse, Schlafzimmer mit Bad en Suite, Büro / Gästezimmer, Küche (inklusive Einbauküche), Hauswirtschaftsraum und Flur.
b) Dachgeschoss
Das Dachgeschoss ist nicht ausgebaut, bietet aber bei Bedarf Ausbaureserve. Derzeit erfolgt der Zugang über eine Einklappleiter.
Der sehr ansprechende Bungalow wurde im Jahre 2014 in konventioneller Massivbauweise errichtet. Der Flachdachanbau beinhaltet eine übergroße Doppelgarage mit idealer Unterstellmöglichkeit für ein Wohnmobil und eine Hobbywerkstatt. Weiter sind eine überdachte Terrasse und ein kleiner Holzschuppen vorhanden.
Die Wohnfläche beträgt ca. 117,56 m².
Die Nutzfläche beträgt ca. 54,31 m².
Der Garten wurde mit einer Rasenfläche pflegeleicht angelegt und wird mit liebevoll angelegten Beetanlagen, Sträuchern und Bäumen verziert. Weiter ist der Garten komplett von einem Zaun und straßenseitig zusätzlich von einer Hecke umsäumt (Hundehaltung möglich)
Das Verkaufsobjekt befindet sich insgesamt in einem sehr gepflegten Gesamtzustand!
Die Übergabe erfolgt nach Vereinbarung.
+Erstklassiger Bungalow mit wohnmobilgeeigneter Garage in attraktiver Siedlungslage in Augustfehn!+
26689 Apen
Die vollständige Adresse der Immobilie erhalten Sie vom Anbieter.
Auf Karte anzeigen
Die vollständige Adresse der Immobilie erhalten Sie vom Anbieter.
Finanzierungszertifikat
In nur zwei Minuten zu Ihrem persönlichen Finanzierungszertifkat.
Infos
| Haustyp | Einfamilienhaus |
|---|---|
| Wohnfläche ca. | 117 m2 |
| Nutzfläche | 54,31 m2 |
| Grundstücksfläche | 798 m2 |
| Bezugsfrei ab | nach Vereinbarung |
| Zimmer | 3 |
| Schlafzimmer | 2 |
| Badezimmer | 1 |
| Garage/Stellplatz | Garage |
| Anzahl Garage/Stellplatz | 1 |
Kosten
| Kaufpreis |
395.000 € |
|---|---|
| Provision |
Die Käuferprovision beträgt 3,57 % inkl. 19 % MwSt. vom beurkundeten Kaufpreis. |
Finanzierungsrechner:
Kaufpreis:
600.000 €
Eigenkapital:
600.000 €
Monatliche Rate
0 €
Effektiver Jahreszins
0 %
Sollzinsbindung
10 Jahre
Bausubstanz & Energieausweis
| Baujahr | 2014 |
|---|---|
| Qualität der Austattung | Gehoben |
| Heizungsart | Zentralheizung |
| Energieausweis | liegt vor |
| Energieausweistyp | Verbrauchsausweis |
| Energieverbrauchskennwert | 132,8 kWh/(m²*a) |
| Energieeffizienzklasse | E |
132,8
kWh/(m²*a)
Energieeffizienzklasse E
- A+
- A
- B
- C
- D
- E
- F
- G
- H
- 0
- 25
- 50
- 75
- 100
- 125
- 150
- 175
- 200
- 225
- >250
Beschreibung des Objekts
Lage
Sämtliche Versorgungseinrichtungen sind wie auch die medizinische Grundversorgung (Allgemeinmediziner, Zahnärzte, Apotheke), Kindergarten, Grundschule, Haupt- und Realschule am Ort und befinden sich in einem Umkreis von nur ca. 1.000 und sind bequem in wenigen Minuten zu erreichen.
Die Kreisstadt Westerstede ist ca. 12 km entfernt. Hier befinden sich u.a. die Ammerland-Klinik, Fachärzte, sämtliche Kreisbehörden und das Gymnasium als weiterführende Schule. Augustfehn verfügt über sehr gute Verkehrsanbindungen. Die BAB 28 (Anschlussstelle Nr. 4) ist nur ca. 5 km entfernt.
Weiter verfügt Augustfehn über einen Bahnhof an der Bahnstrecke Oldenburg - Leer. Von hier fahren Züge im stündlichen Wechsel in beide Richtungen. Der bekannte Kurort Bad Zwischenahn ist in ca. 15 Auto- bzw. Bahnminuten zu erreichen, die Oberzentren Oldenburg und Bremen in ca. ½ bzw. 1 Auto- bzw. Bahnstunde.
Sonstige Angaben
Zu diesem Objekt liegt ein ausführliches Exposé mit weiteren Detailinformationen vor, das Sie gerne bei uns anfordern können.
Telefonische Erreichbarkeit:
Montag - Freitag: 8.00 Uhr - 12.30 Uhr und 14.00 Uhr bis 17.30 Uhr
Samstag: 9.00 Uhr -12.00 Uhr
Sie möchten Ihre Immobilie verkaufen.....
..... und suchen den passenden Käufer?
Unabhängig davon, ob Sie aktuell oder erst in unbestimmter Zeit Ihre Immobilie verkaufen möchten, ist eine fundierte Beratung bares Geld wert. Wir wissen, worauf es beim professionellen Verkauf Ihrer Immobilie ankommt.
Über 60 Jahre Marktpräsenz und tausende Vermittlungen sprechen für sich.
Für ein kostenfreies und informatives Beratungsgespräch stehen wir Ihnen jederzeit gerne zur Verfügung.
Grundriss
Erdgeschoss
>
>
Adresse
26689 Apen
Interessante Orte
Preis- und Lageinformationen
Preistrend für Bestandsimmobilien in Apen