In Zweibrücken-Bubenhausen bieten wir Ihnen voll erschlossene Baugrundstücke mit Flächen zwischen ca. 400 m² und 1.000 m² an. Ganz gleich, ob Sie ein kompaktes Eigenheim oder ein großzügiges Domizil planen – hier finden Sie die passende Basis für Ihr Bauvorhaben im Neubau-Gebiet am Jacobyberg.
Highlights der Grundstücke:
Flexible Größen von ca. 400 m² bis ca. 1.000 m² – ideal für unterschiedliche Wohnkonzepte
Alle Grundstücke sind flexibel teilbar, nach noch zu vermessender Teilfläche
Möglichkeit zur individuellen Gestaltung Ihres Traumhauses
Nachhaltige Investition durch die hohe Nachfrage in dieser begehrten Lage
Die Umgebung verbindet naturnahes Wohnen mit der Nähe zu Schulen, Einkaufsmöglichkeiten, Restaurants und Freizeitangeboten. Dank der guten Verkehrsanbindung erreichen Sie auch die Autobahn in wenigen Minuten.
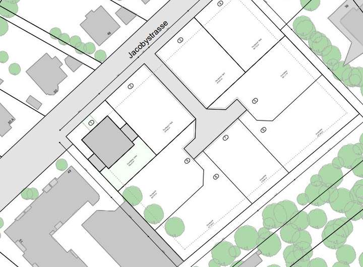
Aktuell verfügbare Beispielgrundstücke (gemäß Lageplan):
Beispielgrundstück Nr. 7: ca. 418 m² / 94.050€
Beispielgrundstück Nr. 8: ca. 517 m² / 116.325€
Beispielgrundstück Nr. 9: ca. 520 m² / 117.000€
Kontakt & Besichtigung:
Nutzen Sie die Gelegenheit und sichern Sie sich Ihr Wunschgrundstück. Gerne stellen wir Ihnen weitere Informationen bereit oder vereinbaren einen individuellen Besichtigungstermin. Unser Team begleitet Sie zuverlässig bei jedem Schritt bis zu Ihrem neuen Zuhause.
AM JACOBYBERG - Baugrundstücke in bester Wohnlage von 66482 Zweibrücken-Bubenhausen
66482 Zweibrücken
Die vollständige Adresse der Immobilie erhalten Sie vom Anbieter.
Auf Karte anzeigen
Die vollständige Adresse der Immobilie erhalten Sie vom Anbieter.
Finanzierungszertifikat
In nur zwei Minuten zu Ihrem persönlichen Finanzierungszertifkat.
Infos
| Vermarktungsart | Kaufen |
|---|---|
| Grundstücksfläche | 400 m2 |
| Bebaubar nach | Bebauungsplan |
| Verfügbar ab | ab sofort |
Kosten
| Miete pro Jahr |
0 € |
|---|---|
| Provision |
3,57 % inkl. MwSt. |
Finanzierungsrechner:
Kaufpreis:
600.000 €
Eigenkapital:
600.000 €
Monatliche Rate
0 €
Effektiver Jahreszins
0 %
Sollzinsbindung
10 Jahre
Beschreibung des Objekts
Lage
In Zweibrücken-Bubenhausen erwartet Sie die ideale Wohnlage für Ihr künftiges Zuhause. Das Baugrundstück befindet sich in einer ruhigen und gefragten Umgebung, die Familien, Paare und Einzelpersonen gleichermaßen anspricht und eine gelungene Balance zwischen Natur und urbanem Leben schafft.
Dank der ausgezeichneten Infrastruktur sind Schulen, Einkaufsmöglichkeiten, Gastronomie und Freizeitangebote schnell erreichbar. Auch die Anbindung an die Autobahn ist unkompliziert und gewährleistet eine optimale Mobilität.
Sonstige Angaben
Der Makler-Vertrag mit uns und/oder unserem Beauftragten kommt durch die Bestätigung der Inanspruchnahme unserer Maklertätigkeit in Textform zustande, wie z.B. insbesondere die Unterschrift des Suchkundenvertrages und/oder des Objekt-Exposés. Die Höhe der Courtage richtet sich nach den ab dem 23.12.2020 in Kraft getretenen gesetzlichen Regelungen zur Teilung der Maklercourtage. Hiernach wird die Courtage regelmäßig für beide Parteien (Eigentümer und Käufer) 3,57 % auf den Kaufpreis inklusive gesetzlicher Umsatzsteuer betragen und ist bei notariellem Vertragsabschluss verdient und fällig. Die Höhe der Bruttocourtage unterliegt einer Anpassung bei Steuersatzänderung. Immobilia GmbH und ggf. deren Beauftragte erhalten einen unmittelbaren Zahlungsanspruch gegenüber dem Käufer (Vertrag zugunsten Dritter, § 328 BGB). Wir haben mit dem Verkäufer einen Maklervertrag in gleicher Höhe abgeschlossen. Grunderwerbssteuer, Notar- und Gerichtskosten trägt der Käufer.
Alleinverkauf durch die Fa. Immobilia GmbH
Ihr Ansprechpartner : Immobilia GmbH , 66482 Zweibrücken , Poststraße 19 , Immobilienberater Kai Goedicke B.A. Architektur , Tel. Nr. 06332 - 903460 , Email : Kai.Goedicke@immo-gessner.de
Unsere Objekte befindet sich im freien Verkauf. Wir sind auch für den Eigentümer tätig.
Die Objektdaten wurden uns vom Eigentümer genannt und sind ohne Gewähr.
Die Fälligkeit der Provision entsteht mit dem Abschluss des Kauf bzw. Mietvertrages .
Es gelten die Provisionen wie im Exposé angezeigt.
Die in den Exposé und Beschreibungen u. a. enthaltenen Angaben basieren auf Informationen des Verkäufers. Zu eigenen Nachforschungen ist die Fa. Immobilia GmbH nicht verpflichtet. Sie übernimmt deshalb keine Haftung für die Richtigkeit und Vollständigkeit der Angaben, es sei denn, die Unrichtigkeit beruht auf grobem Verschulden der Fa. Immobilia GmbH.
Besichtigungstermine sind jederzeit nach Absprache möglich.