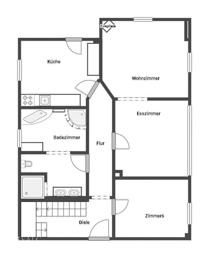
Beim Betreten dieses charmanten Hauses aus dem Jahr 1960, das sich über 240m² erstreckt, werden Sie von einem einladenden Flur empfangen. Von hier aus gelangen Sie in das großzügige Wohnzimmer, das mit großen Fenstern viel Tageslicht bietet. Angrenzend befindet sich das Esszimmer, das ausreichend Platz für gesellige Abende bietet.
Die Küche ist funktional gestaltet und bietet genügend Raum für kulinarische Kreationen. Ein Gäste-WC befindet sich ebenfalls im Erdgeschoss, was den Komfort für Besucher erhöht.
Über eine Treppe gelangen Sie in das Obergeschoss, wo sich mehrere Schlafzimmer befinden. Jedes Zimmer bietet ausreichend Platz und Flexibilität für individuelle Gestaltungsmöglichkeiten. Ein besonderes Highlight ist der Balkon, der einen schönen Blick auf den Garten bietet und zum Entspannen einlädt.
Das Badezimmer ist mit einer Badewanne und einer separaten Dusche ausgestattet, was den täglichen Komfort erhöht.
Im Untergeschoss finden Sie einen geräumigen Keller, der zusätzlichen Stauraum bietet. Hier befindet sich auch eine Sauna mit Entspannungsbereich, die für Wellness-Momente sorgt. Eine Waschküche rundet das Angebot ab.
Der Garten bietet viel Platz für Freizeitaktivitäten und ist ideal für Familien mit Kindern. Die Einfahrt bietet ausreichend Parkmöglichkeiten.
Dieses Haus vereint den Charme vergangener Zeiten mit modernen Annehmlichkeiten und bietet viel Raum für individuelle Entfaltung. Mit einem Kaufpreis von 630000 € und der Energieeffizienzklasse G ist es eine attraktive Option für Familien, die ein geräumiges Zuhause suchen.
Saniertes Einfamilienhaus in zentraler Lage
57074 Siegen
Die vollständige Adresse der Immobilie erhalten Sie vom Anbieter.
Auf Karte anzeigen
Die vollständige Adresse der Immobilie erhalten Sie vom Anbieter.
Finanzierungszertifikat
In nur zwei Minuten zu Ihrem persönlichen Finanzierungszertifkat.
Infos
| Haustyp | Sonstige |
|---|---|
| Etagenzahl | 2 |
| Wohnfläche ca. | 240 m2 |
| Grundstücksfläche | 405 m2 |
| Zimmer | 8 |
| Schlafzimmer | 6 |
| Badezimmer | 1 |
| Anzahl Garage/Stellplatz | 2 |
Kosten
| Kaufpreis |
630.000 € |
|---|---|
| Provision |
3,57 Abwälzung |
Finanzierungsrechner:
Kaufpreis:
600.000 €
Eigenkapital:
600.000 €
Monatliche Rate
0 €
Effektiver Jahreszins
0 %
Sollzinsbindung
10 Jahre
Bausubstanz & Energieausweis
| Baujahr | 1960 |
|---|---|
| Letzte Sanierung | 2013 |
| Bauphase | Haus fertig gestellt |
| Objektzustand | Saniert |
| Qualität der Austattung | Normal |
| Heizungsart | Gas-Heizung |
| Wesentliche Energieträger | Gas |
| Energieausweis | liegt vor |
| Energieausweistyp | Bedarfsausweis |
| Energieverbrauchskennwert | 206,3 kWh/(m²*a) |
| Energieeffizienzklasse | G |
206,3
kWh/(m²*a)
Energieeffizienzklasse G
- A+
- A
- B
- C
- D
- E
- F
- G
- H
- 0
- 25
- 50
- 75
- 100
- 125
- 150
- 175
- 200
- 225
- >250
Beschreibung des Objekts
Ausstattung
Im Jahre 2013 erfolgten umfassende Sanierungsmaßnahmen.
Erneurt wurden in diesem Zuge:
-Fenster mit 3-Fach Verglasung
-Vaillant Gastherme
-Kompletter Dachstuhl inkl. Dämmung
-alle Leitungen (Strom, Wasser, Abwasser, Heizungsrohre)
- Heizkörper
-Türen
-Treppenaufgang
-Badezimmer
-Gäste WC
Die Decken, Böden und Wände wurden ebenfalls erneuert. Die verwendeten Bodenbeläge sind Fliesen und Laminat.
Lage
Diese Immobilie bietet eine ideale Lage für ein komfortables Familienleben. In der unmittelbaren Umgebung finden sich zahlreiche Einrichtungen, die den Alltag erleichtern und bereichern.
Für die Kleinen ist die Evangelische Kindertagesstätte „Wirbelwind“ in bequemer Reichweite. Auch die schulische Bildung ist gesichert, mit der Realschule am Oberen Schloss und der Nordschule OGS in der Nähe. Diese Einrichtungen sind alle innerhalb eines kurzen Spaziergangs erreichbar und bieten eine hervorragende Bildungsbasis.
Für Freizeitaktivitäten und Erholung ist der Schlosspark ein wunderbarer Ort, um Zeit im Freien zu verbringen. Hier können Kinder spielen und Eltern die Natur genießen. Sportbegeisterte finden zudem in der Nähe Möglichkeiten, aktiv zu bleiben.
Die Anbindung an den öffentlichen Nahverkehr ist hervorragend, mit mehreren Bushaltestellen in unmittelbarer Nähe. Dies erleichtert den täglichen Pendelverkehr und ermöglicht es, die Stadt und ihre Umgebung bequem zu erkunden. Für längere Reisen ist der nächste Flughafen etwa 100 Kilometer entfernt und über die Autobahn gut erreichbar.
Einkaufsmöglichkeiten sind ebenfalls zahlreich vorhanden. Ein ALDI Nord ist nur einen kurzen Spaziergang entfernt, während EDEKA und REWE ebenfalls gut erreichbar sind. Diese Supermärkte bieten eine breite Auswahl an Produkten für den täglichen Bedarf.
Insgesamt bietet diese Lage eine ausgewogene Mischung aus Bildungseinrichtungen, Freizeitmöglichkeiten und praktischen Annehmlichkeiten, die den Alltag einer Familie angenehm gestalten.
Sonstige Angaben
Die Objektbeschreibung beruht ganz oder zum Teil auf Angaben des Eigentümers, der Text wurde teilweise mit Unterstützung künstlicher Intelligenz bearbeitet und überprüft. Für die Richtigkeit oder Vollständigkeit übernehmen wir keine Gewähr.
Beim ausgewiesenen Preis handelt es sich um den Angebotspreis, der sich durch Verhandlungen auch verändern kann. Bei diesem Objekt ist nicht vorgesehen, dass der Käufer mit uns eine eigenständige Provisionsvereinbarung trifft, sofern dieser als Verbraucher (§ 14 BGB) zu qualifizieren ist. Der Verkauf erfolgt nur an denjenigen, der sich bereit erklärt, einen Teil der vom Verkäufer zugesagten Provision zu übernehmen. Dieser Anteil beträgt in diesem Fall 3,57 % inkl. MwSt. vom Kaufpreis und ist nach Abschluss des Kaufvertrages zur Zahlung fällig.
Vereinbaren Sie noch heute einen unverbindlichen Besichtigungstermin und überzeugen Sie sich selbst! Terminvorschläge an: heilbronn@falcimmo.de. Da wir die Termine für Besichtigungen mit größter Sorgfalt planen, bitten wir Sie um Verständnis dafür, dass Termine ausschließlich in schriftlicher Form per E-Mail vereinbart werden können. Um fair und gerecht gegenüber jedem unserer Interessenten zu werden, ist dies unumgänglich. Wir freuen uns über Ihre Kontaktaufnahme! Geben Sie bitte immer die vollständige ADRESSE und RUFNUMMER an!
Ihr Ansprechpartner: Benjamin Tahric, Benjamin.tahric@falcimmo.de
Sie denken selbst über die Veräußerung Ihrer Immobilie nach oder möchten einfach nur wissen, was diese wert ist? Bei uns erhalten Sie kostenlos eine professionelle Wertermittlung! Gehen Sie hierzu auf: www.falcimmo.de/Das-ist-meine-Immobilie-wert.htm oder kontaktieren Sie uns.
Weitere Dokumente
360° Rundgang starten.pdfGrundriss
EG
>
>
OG
>
>
KG
>
>
Adresse
57074 Siegen
Interessante Orte
Preis- und Lageinformationen
Preistrend für Bestandsimmobilien in Siegen