Willkommen im Sunshine 143 von Livinghaus - Ihrem neuen Rückzugsort, der Licht und Lebensfreude in jeden Winkel bringt! Dieses charmante Einfamilienhaus vereint modernes Design mit einem warmen, einladenden Ambiente. Die großzügigen Fenster lassen die Sonne hereinströmen und schaffen eine helle, freundliche Atmosphäre, in der Sie sich sofort wohlfühlen werden.
Mit einer durchdachten Raumaufteilung bietet das Haus genügend Platz für gemeinsame Familienmomente und Rückzugsmöglichkeiten. Die offene Wohnküche ist der perfekte Ort für gesellige Abende und kulinarische Abenteuer. Hier wird jeder Tag zu einem besonderen Erlebnis!
Das Haus Sunshine 143 ist nicht nur ein Ort zum Wohnen, sondern ein Ort, an dem Erinnerungen geschaffen werden. Lassen Sie sich von der positiven Energie und dem harmonischen Design inspirieren und genießen Sie das Leben in Ihrem neuen Zuhause!
Energieeffizienter Neubau in Schalksmühle
58579 Schalksmühle
Die vollständige Adresse der Immobilie erhalten Sie vom Anbieter.
Auf Karte anzeigen
Die vollständige Adresse der Immobilie erhalten Sie vom Anbieter.
Finanzierungszertifikat
In nur zwei Minuten zu Ihrem persönlichen Finanzierungszertifkat.
Infos
| Haustyp | Einfamilienhaus |
|---|---|
| Etagenzahl | 2 |
| Wohnfläche ca. | 143 m2 |
| Nutzfläche | 143 m2 |
| Grundstücksfläche | 489 m2 |
| Zimmer | 5 |
| Schlafzimmer | 3 |
| Badezimmer | 2 |
Kosten
| Kaufpreis |
423.570 € |
|---|
Finanzierungsrechner:
Kaufpreis:
600.000 €
Eigenkapital:
600.000 €
Monatliche Rate
0 €
Effektiver Jahreszins
0 %
Sollzinsbindung
10 Jahre
Bausubstanz & Energieausweis
| Baujahr | unbekannt |
|---|---|
| Bauphase | Haus in Planung (projektiert) |
| Qualität der Austattung | Gehoben |
Beschreibung des Objekts
Ausstattung
Das Sunshine 143 von Livinghaus bietet eine hochwertige Ausstattung, die modernen Wohnkomfort mit funktionalem Design vereint. Hier sind einige der herausragenden Merkmale:
1. Architektur und Design:
- Modernes, zeitloses Design mit klaren Linien und großzügigen Fensterflächen.
- Offene Raumkonzepte, die Licht und Luftigkeit fördern.
2. Wohnräume:
- Helle, lichtdurchflutete Wohn- und Essbereiche, die eine einladende Atmosphäre schaffen.
- Hochwertige Bodenbeläge, wahlweise in Laminat oder Fliesen, die sowohl stilvoll als auch pflegeleicht sind.
3. Küche:
- Offene, moderne Einbauküche mit hochwertigen Geräten (z. B. Herd, Backofen, Kühlschrank).
- Viel Stauraum durch elegante Küchenmöbel und praktische Arbeitsflächen.
4. Badezimmer:
- Stilvolle Badezimmer mit modernen Sanitärobjekten und hochwertigen Armaturen.
- Möglichkeit zur individuellen Gestaltung, z. B. durch verschiedene Fliesenoptionen.
5. Schlafräume:
- Geräumige Schlafzimmer, die Ruhe und Erholung bieten.
- Ausreichend Platz für individuelle Möbelgestaltungen und persönliche Akzente.
6. Energieeffizienz:
- Energiesparende Bauweise mit modernen Dämmmaterialien.
- Heizsystem, das für ein angenehmes Raumklima sorgt und die Betriebskosten niedrig hält.
7. Außenbereich:
- Möglichkeit zur Gestaltung eines eigenen Gartens oder einer Terrasse, ideal für entspannte Stunden im Freien.
- Hochwertige Fassadengestaltung, die das Gesamtbild des Hauses abrundet.
8. Technik:
- Moderne Elektroinstallation mit ausreichend Steckdosen und Internetanschlüssen.
- Optionale Smart-Home-Technologien für mehr Komfort und Sicherheit.
Das Sunshine 143 von Livinghaus ist nicht nur ein Ort zum Wohnen, sondern ein Zuhause, das Lebensqualität und individuelle Gestaltungsmöglichkeiten bietet. Lassen Sie Ihrer Kreativität freien Lauf und gestalten Sie Ihr persönliches Wohlfühlparadies!
Lage
Die Bebauung entlang der Straße besteht hauptsächlich aus Einfamilienhäusern, die meist von gepflegten Gärten umgeben sind. Die Nachbarschaft ist ruhig, familienfreundlich und zeichnet sich durch ein angenehmes soziales Miteinander aus.
Das ebenerdige, erschlossene Grundstück (insgesamt ca. 1.100qm) lässt die Bebauung mit einem oder mehreren freistehenden Einfamilienhäusern zu, aktuell ist die Bebauung mit zwei Häusern geplant.
Sonstige Angaben
Der Grundstückspreis ist im Anzeigenpreis bereits enthalten.
Das Grundstück erwerben Sie direkt vom Eigentümer über einen Makler.
Ein Träumchen an Grundstück. :-)
Heimkommen - ankommen - herunterkommen - wohlfühlen
Vereinbaren Sie gleich Ihren persönlichen Beratungstermin und sichern Sie sich Ihrer Familie ein geniales Bauland für Ihr neues Zuhause mit Living Haus.
Jedoch bitte ich zu berücksichtigen:
Ich baue mit sehr viel Herz und Kompetenz Häuser. Im Interesse der jeweiligen Grundstückseigentümer sowie meiner Bauherren werde ich ohne ein persönliches Gespräch zum Thema Hausbau nie irgendwelche Grundstücksdaten weiterleiten. Keine Ausnahmen an dieser Stelle.
Und... natürlich ist es mir selbst mit bestem Willen nicht möglich, eine dauerhafte Verfügbarkeit der Grundstücke zu garantieren. Es gibt jedes Grundstück halt nur einmal - Leider.
Kennen Sie schon den Living Haus Beratungsservice? Nein? Dann rufen Sie uns an und wir stimmen einen kostenlosen persönlichen Termin ab. Ihr Wohl liegt uns am Herzen.
Die Architektenleistungen sind bereits enthalten.
Für die gesamte Bauphase und darüber hinaus ist Ihr Projekt versichert, diese Leistungen sind im Preis bereits inbegriffen. Fragen Sie Ihren Berater.
Das Grundstück wird über einen anderen Anbieter verkauft. Keine Gewähr auf Angaben. Der Preis versteht sich zzgl. Erwerbs und Baunebenkosten. Änderungen des Preises oder der Ausstattungen sowie Irrtümer oder Zwischenverkauf sind vorbehalten. Abbildungen und Grundrisse können Extras zeigen, die nicht im Angebot enthalten sind. Alle Angaben nach bestem Wissen und Gewissen, jedoch ohne Gewähr.
Finanzierungsberater stehen bei uns kostenlos zu Ihrer persönlichen Beratung bereit.
Wir laden Sie gerne zu einem persönlichen Gespräch an einen unserer 8 Standorten im Ruhrgebiet ein. Nur vollständig ausgefüllte Anfragen können auch beantwortet werden. Vereinbaren Sie noch heute einen Termin mit uns und kommen Sie Ihrem Traum von den eigenen 4 Wänden ein Stück näher.
Robin Freudenberg 0176 405 96 823 oder per Mail: robin.freudenberg@livinghaus.de
Auf Living Haus können Sie vertrauen!
Wir freuen uns auf Sie! :-)
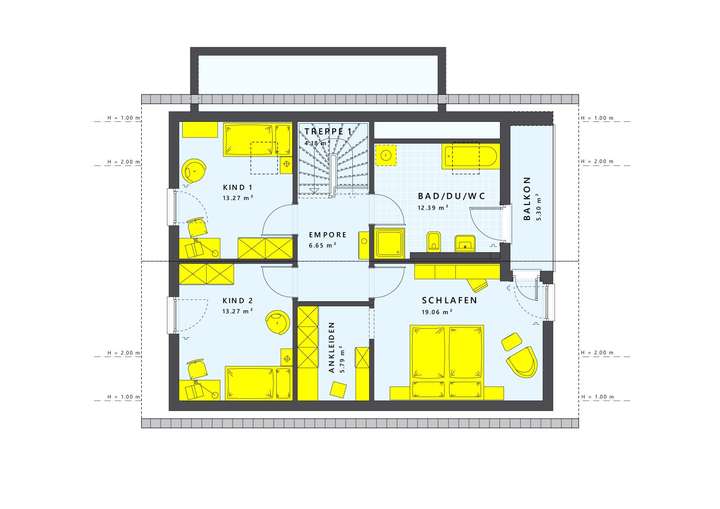
Grundriss
Grundriss EG
>
>
Grundriss OG
>
>
Adresse
58579 Schalksmühle
Interessante Orte
Preis- und Lageinformationen
Preistrend für Bestandsimmobilien in Schalksmühle