Das gesamte Grundstück hat ca. 589 qm befindet sich in Göggingen - Schafweidsiedlung - Rotkäppchenweg
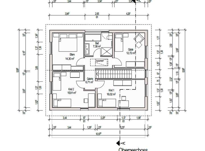
Die Baugenehmigung für das Einfamilienhaus wurde auf Grundlage einer hochwertigen Hausplanung des Modells ELK All-in-One 159 erteilt. Selbstverständlich kann das Gebäude unabhängig davon jederzeit auch in konventioneller Bauweise realisiert werden.
Bei der vorliegenden Baugenehmigung beträgt die Wohnfläche des EFH knapp 160 qm.
Die Lage ist ruhig & einzigartig und von der bekannten "Grünen Lunge Augsburgs" umgeben:
Das "Gögginger Wäldchen" ganz nah und alle notwendigen Geschäfte des täglichen Bedarfs sind schnell zu erreichen.
Grundstück für EFH inkl. Baugenehmigung in ruhiger Lage
86199 Augsburg
Die vollständige Adresse der Immobilie erhalten Sie vom Anbieter.
Auf Karte anzeigen
Die vollständige Adresse der Immobilie erhalten Sie vom Anbieter.
Finanzierungszertifikat
In nur zwei Minuten zu Ihrem persönlichen Finanzierungszertifkat.
Infos
| Vermarktungsart | Kaufen |
|---|---|
| Grundstücksfläche | 589 m2 |
| Empfohlene Nutzung | Einfamilienhaus |
| Bebaubar nach | wie Nachbarbebauung |
| Verfügbar ab | sofort |
Kosten
| Miete pro Jahr |
485.000 € |
|---|---|
| Provision |
17.314,50€ Bei Abschluss eines Kaufvertrages wird eine Vermittlungsprovision in Höhe von ca. 3,57 % inklusive Mehrwertsteuer vom Kaufpreis fällig. Wir weisen ausdrücklich darauf hin, dass ein wirtschaftliches Naheverhältnis zum Eigentümer besteht. |
Finanzierungsrechner:
Kaufpreis:
600.000 €
Eigenkapital:
600.000 €
Monatliche Rate
0 €
Effektiver Jahreszins
0 %
Sollzinsbindung
10 Jahre
Beschreibung des Objekts
Lage
Infrastruktur (im Umkreis von 3 km):
Apotheke, Lebensmittel-Discount, Allgemeinmediziner, Kindergarten, Grundschule, Hauptschule, Realschule, Gymnasium, Öffentliche Verkehrsmittel
Sonstige Angaben
Es handelt hier sich um ein nachverdichtetes Grundstücksteil mit Platz für ein Einfamilienhaus inkl. Zufahrt.
Für den Bereich der Zufahrt besteht eine Grunddienstbarkeit, die das Betretungsrecht sowie die Durchführung aller erforderlichen Versorgungs- und Entsorgungsmaßnahmen beider Grundstücke erlaubt.
Weitere Dokumente
AnsichtenWohnflächenberechnung