Suchen Sie ein neues Zuhause und möchten sofort einziehen? In 5 Zimmern auf 3 Etagen hat Ihre gesamte Familie genug Platz. Der Garten ist sehr pflegeleicht und ästhetisch angelegt!
Dieses schöne Haus wurde von den jetzigen Eigentümern durchgehend die letzten 5 Jahre modernisiert und entspricht somit in fast allen Belangen dem heutigen Anspruch an ein warmes und schönes Zuhause.
Ein sehr großes Plus ist, dass Sie in 2 min in Müllrose sind und von der gesamten sehr guten Infrastruktur profitieren.
Fragen Sie jetzt das ausführliche Exposé an.
RESERVIERT:Einziehen& wohlfühlen in 5 Zimmern – 1a Familienhaus mit großem Garten in Müllrose-Dubrow
15299 Müllrose
Die vollständige Adresse der Immobilie erhalten Sie vom Anbieter.
Auf Karte anzeigen
Die vollständige Adresse der Immobilie erhalten Sie vom Anbieter.
Finanzierungszertifikat
In nur zwei Minuten zu Ihrem persönlichen Finanzierungszertifkat.
Infos
| Haustyp | Einfamilienhaus |
|---|---|
| Etagenzahl | 3 |
| Wohnfläche ca. | 146 m2 |
| Nutzfläche | 66,83 m2 |
| Grundstücksfläche | 2.540 m2 |
| Bezugsfrei ab | Sofort |
| Zimmer | 5 |
| Schlafzimmer | 2 |
| Badezimmer | 1 |
| Garage/Stellplatz | Garage |
| Anzahl Garage/Stellplatz | 3 |
Kosten
| Kaufpreis |
375.000 € |
|---|---|
| Provision |
3,57% vom vereinbarten Kaufpreis Bitte beachten Sie die Provisionsvereinbarungen, welche Sie vor Erhalt des Exposés digital bestätigt haben werden. |
Finanzierungsrechner:
Kaufpreis:
600.000 €
Eigenkapital:
600.000 €
Monatliche Rate
0 €
Effektiver Jahreszins
0 %
Sollzinsbindung
10 Jahre
Bausubstanz & Energieausweis
| Baujahr | 1988 |
|---|---|
| Letzte Sanierung | 2020 |
| Objektzustand | Modernisiert |
| Qualität der Austattung | Gehoben |
| Heizungsart | Zentralheizung |
| Wesentliche Energieträger | Gas |
| Energieausweis | liegt vor |
| Energieausweistyp | Bedarfsausweis |
| Energieverbrauchskennwert | 107,2 kWh/(m²*a) |
| Energieeffizienzklasse | D |
107,2
kWh/(m²*a)
Energieeffizienzklasse D
- A+
- A
- B
- C
- D
- E
- F
- G
- H
- 0
- 25
- 50
- 75
- 100
- 125
- 150
- 175
- 200
- 225
- >250
Beschreibung des Objekts
Ausstattung
Dieses Zuhause lädt dazu ein, das Familienleben nach draußen zu verlagern: Eine umlaufende Terrasse bietet Platz für Frühstück in der Morgensonne, gesellige Grillabende oder einfach entspannte Stunden im Freien. Der gepflegte Garten mit Rasenflächen, Sträuchern und einem eigenen Kletterbereich für Kinder macht das Haus zu einem echten Rückzugsort für die ganze Familie.
Im Inneren erwarten Sie helle Räume mit großen Fensterflächen, die für viel Licht und ein angenehmes Wohnklima sorgen. Das Wohnzimmer mit Essbereich bildet den Mittelpunkt des Hauses und öffnet sich direkt zur Terrasse. Die Küche ist modern ausgestattet und bietet alles, was gemeinsames Kochen zum Vergnügen macht.
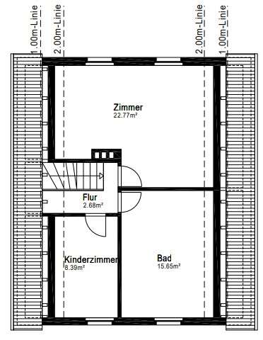
Das Bad wurde 2019 erneuert und verbindet Komfort mit zeitgemäßer Gestaltung: Wanne, Dusche und moderne Fliesen machen es zu einem Ort, an dem man den Tag entspannt beginnt oder ausklingen lässt. Ein separates Gäste-WC ergänzt die Ausstattung. Die weiteren Zimmer im Ober- und Dachgeschoss sind flexibel nutzbar – ob als Kinderzimmer, Schlafzimmer oder Homeoffice.
Der ausgebaute Keller eröffnet zusätzlichen Platz für Fitness, Hobbys oder Stauraum. Eine Garage und weitere Stellplätze sorgen dafür, dass auch der Alltag praktisch bleibt.
Dieses Haus ist sofort nutzbar, gepflegt und durch die jüngsten Modernisierungen in vielen Bereichen auf aktuellem Stand. Vor allem der große Garten mit seinen Gestaltungsmöglichkeiten macht es zu einer idealen Basis für Familien, die sich ein langfristiges Zuhause schaffen wollen.
Lage
Das Haus befindet sich im Ortsteil Dubrow der Gemeinde Müllrose – einem ländlich geprägten Wohnstandort mit Nähe zu Frankfurt (Oder), Fürstenwalde, Beeskow und dem Schlaubetal. Das Grundstück liegt direkt an der B246. Im Gegenzug profitieren Bewohner von einer sehr guten Erreichbarkeit und kurzen Wegen zur städtischen Infrastruktur sowie bezahlbarem Preis.
Alltagstauglich im Grünen – mit Nähe zur Stadt
+ Kita ca. 6 min
+ Grundschule Müllrose ca. 8 min
+ EDEKA, Netto, Apotheke, Bäckerei in rund 3,5 - 4 km Entfernung bzw. 5 min
+ Bushaltestelle „Dubrow“ ca. 350 m
+ Bahnhof Müllrose (RB36 Richtung Frankfurt (Oder) / Beeskow) ca. 4,3 km
+ A12 Auffahrt Müllrose in etwa 6 Minuten erreichbar
Leben am See und im Schlaubetal
Nur wenige Minuten entfernt liegen der Müllroser See sowie der Eingang zum Naturpark Schlaubetal – eine der landschaftlich reizvollsten Regionen Brandenburgs. Ob Baden, Bootfahren, Wandern oder einfach Spazierengehen: Familien finden hier zahlreiche Möglichkeiten zur naturnahen Freizeitgestaltung.
Der Immobilienmarkt ist durch eine stabile Nachfrage, moderate Preisentwicklung und eine solide soziale Struktur geprägt. Besonders Familien und Berufspendler schätzen die Kombination aus ruhigem Wohnumfeld, bezahlbarem Eigentum und guter Erreichbarkeit. Die Immobilienpreise sind in den letzten 10 Jahren um ca. 83% gestiegen (Quelle: Sprengnetter).
Sonstige Angaben
Ihr neues Zuhause – ganz nach Ihren Vorstellungen!
Ein neues Zuhause ist mehr als nur ein Haus – es ist der Ort, an dem Sie Ihre Persönlichkeit entfalten, Ihre Wohnträume verwirklichen und sich rundum wohlfühlen. Um Ihnen den perfekten Start in Ihr neues Heim zu erleichtern, möchten wir Ihnen anbieten auf unser Netzwerk an Maler- und Handwerksmeistern zurückzugreifen. Vielleicht erleichtert es Ihnen den Einstieg.
✔ Individuelle Farbgestaltung Ihrer Wände – von modernem Weiß bis hin zu stilvollen Akzentfarben
✔ Fachgerechte Ausführung durch Profis – sauber, schnell und mit hochwertigen Materialien
✔ Startklar für Ihr neues Leben – ohne zusätzlichen Aufwand, ohne Stress
Wir möchten, dass Sie sich von Anfang an zuhause fühlen!
Grundriss
EG
>
>
DG
>
>
Keller mit Arbeits- und Fitnes
>
>
Adresse
15299 Müllrose
Interessante Orte
Preis- und Lageinformationen
Preistrend für Bestandsimmobilien in Müllrose