In den klimafreundlichen „Karls Gärten“ erwartet Sie eine hochwertige 2-Zimmer-Neubauwohnung, die sich ideal für Kapitalanleger eignet. Die moderne Einheit überzeugt durch eine effiziente Grundrissgestaltung, eine sonnige Süd-West-Loggia mit Faltverglasung und zahlreiche Ausstattungsdetails wie bodentiefe Fenster, Parkett, Fußbodenheizung und eine bodengleiche Dusche. Besonderer Vorteil: Sie profitieren von einer kostenlosen 10-jährigen Mietgarantie, einem professionellen Vermietungsservice sowie der Möglichkeit zur erhöhten Abschreibung nach dem Wachstumschancengesetz. Dank Preisreduktion um 32.500 € und potenziell zweistelliger Eigenkapitalrendite ist dies eine Investition mit Weitblick.
Attraktive Kapitalanlage bei München: 2-Zimmer-Neubau mit Süd-West-Loggia & 10 Jahre Mietgarantie
Jägerstraße 29-31,
85757 Karlsfeld
Auf Karte anzeigen
Finanzierungszertifikat
In nur zwei Minuten zu Ihrem persönlichen Finanzierungszertifkat.
Infos
| Wohnungskategorie | Etagenwohnung |
|---|---|
| Etage | 1 von 3 |
| Wohnfläche ca. | 44 m2 |
| Bezugsfrei ab | 31.8.2027 |
| Zimmer | 2 |
| Garage/Stellplatz | Tiefgarage |
Kosten
| Kaufpreis |
446.000 € |
|---|---|
| Provision | Nein |
Finanzierungsrechner:
Kaufpreis:
600.000 €
Eigenkapital:
600.000 €
Monatliche Rate
0 €
Effektiver Jahreszins
0 %
Sollzinsbindung
10 Jahre
Bausubstanz & Energieausweis
| Baujahr | 2027 |
|---|---|
| Objektzustand | Erstbezug |
| Heizungsart | Fernwärme |
| Wesentliche Energieträger | Fernwärme |
| Energieausweis | liegt vor |
| Energieausweistyp | Bedarfsausweis |
| Energieverbrauchskennwert | 60,3 kWh/(m²*a) |
| Energieeffizienzklasse | B |
60,3
kWh/(m²*a)
Energieeffizienzklasse B
- A+
- A
- B
- C
- D
- E
- F
- G
- H
- 0
- 25
- 50
- 75
- 100
- 125
- 150
- 175
- 200
- 225
- >250
Beschreibung des Objekts
Ausstattung
•Klimafreundlicher Neubau (KfN)
•Effizienzhaus 40
•Gute Ökobilanz & reduzierter CO2-Ausstoss
•10 Jahre Mietgarantie inkl. Vermietungsservice
•Offener Wohn-, Koch- und Essbereich mit Süd-West-Loggia
•Loggia mit Faltverglasung
•Badezimmer mit WM-Anschluss
•Bodengleiche Dusche
•Parkett und Fußbodenheizung
•Videogegensprechanlage
•Aufzug
•Pkw-Stellplatz
•Kellerabteil
Lage
Hier, im südlichen Teil von Karlsfeld, erwartet Sie ein beschauliches Umfeld mit älteren und neueren Wohnhäusern auf großen, gepflegten Grundstücken. Stets sind es nur wenige Gehminuten bis zum geschützten Wander-, Spazier- und Radweg entlang des Würmkanals. Hohe Bäume spenden angenehmen Schatten und schaffen in den Sommermonaten eine malerische Idylle. Karlsfeld liegt direkt an der Grenze zu München, die von Karls Gärten nur gut 50 m entfernt ist. Der Süden von Karlsfeld profitiert von der Nähe zum S-Bahnhof Karlsfeld, wo die Linie S2 hält und eine direkte Verbindung in die Münchner Innenstadt herstellt. In den vergangenen 15 Jahren hat sich die Einwohnerzahl von Karlsfeld von 18.184 im Jahr 2008 auf zuletzt 22.196 (30.09.2023) erhöht. Prognose: bis 2042 weiter positiv, denn der Landkreis Dachau, wozu Karlsfeld gehört, zählt mit + 7,5 % oder mehr zu den 22 wachstumsstärksten Regionen Bayerns. Neben einer hervorragenden Kinderbetreuung, den zahlreichen Grün- und Freizeitanlagen und neuen Einkaufs- sowie Gesundheitsversorgungsangeboten tragen die TOP-Arbeitgeber MAN Truck & Bus AG und MTU Aero Engines maßgeblich zur Beliebtheit von Karlsfeld bei. Zudem soll am S-Bahnhof Karlsfeld ein neues Gewerbegebiet mit Büros, Läden, Gastronomie und Hotel entstehen: Prinzenpark West.
Sonstige Angaben
Mehr Investitionsvorteil mit der 5 % degressiven AfA!
Nutzen Sie höhere Abschreibungen in den ersten Jahren, senken Sie Ihre Steuerlast und sichern Sie sich mehr Liquidität für neue Investitionen. Jetzt clever profitieren!
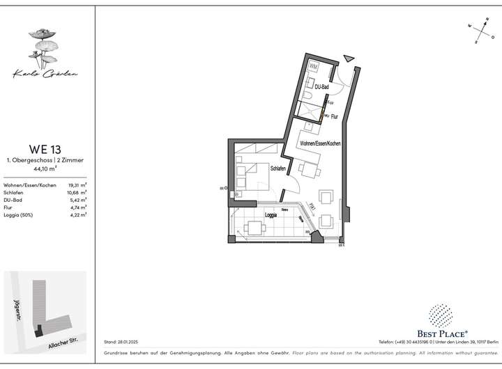
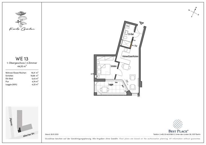
Grundriss
Vetriebsgrundrisse Karlsfeld.i
>
>
Adresse
Jägerstraße 29-31, 85757 Karlsfeld
Interessante Orte
Preis- und Lageinformationen
Preistrend für Bestandsimmobilien in Karlsfeld