Das Speicherhaus zeichnet sich durch seine luxuriöse Innenausstattung aus und wurde 2025 fertiggestellt.
Ob als exklusiver Hauptwohnsitz, stilvolles Feriendomizil oder renditestarke Ferienimmobilie - diese Immobilie bietet Ihnen vielfältige Möglichkeiten in einer der beliebtesten Ostseeregionen.
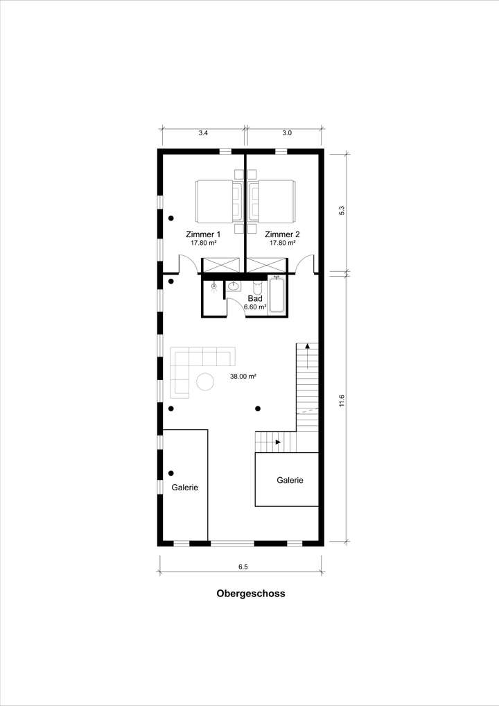
Zwei Badezimmer und ein separates Gäste-WC zählen neben sieben großen wie hellen Zimmern und einer offenen Galerie zu dem Haus.
Für den Umbau dieser denkmalgeschützten Speicheranlage zu einem exklusiven Wohnhaus wurden sämtliche Decken und Fachwerkbalken aufgearbeitet und in den Wohnraum integriert. Von der Betonsohle über die Außenwände bis hin zum Dachziegel ist alles neu verbaut.
Die gesamte Fassade des Gebäudes wurde ebenfalls neu verfugt.
Virtueller Rundgang über den folgenden Link möglich :
https://my.matterport.com/show/?m=AHCGrMfJSQo
Besonderheiten dieser Immobilie :
Fußbodenheizung in allen Räumen und Etagen
Echtholz-Dielenboden Eiche in allen Wohnräumen
Decken-Spots LED in allen Räumen und Etagen
Deckenhöhe in allen Räumen ca. 3,00m
Ökologische Dachdämmung Holzfaser mit Aufdachdämmplatte .
Gedämmter Spitzboden mit Bodentreppe
Holzfenster Dreifachverglasung, innen weiß außen anthrazit
Elektrische Dachflächenfenster, Dreifachverglasung mit elektrischen Verdunkelungsrollos
Sämtliche Fensterbänke aus Echtstein
Furnierinnentüren mit schwarzen Beschlägen und Aufhängung
Fliesen als Großformat 1,20m × 1,20m als Wand- und Bodenfliesen
Hochwertige Industrie-Metallverglasung im Eingangsbereich und im Dachgeschoss
Industrie-Metalltreppen mit Echtholzstufen in Eiche
Glasfaser / Breitband für schnelles Internet.
Entkalungsanlage Salz fürs Trinkwasser
Pellet Heizungsanlage mit 27 Tonnen Speicher
Real geteiltes Grundstück. Keine WEG-Verpflichtungen
Der Gesamtpreis des angebotenen Grundstücks mit Objekt beträgt 740.000 Euro.
Die Möblierung erfolgte zur Veranschaulichung digital.
!!!Keine Makleranfragen !!!
Luxuriöses Speicherhaus Nähe Boltenhagen/ Erstbezug von PRIVAT
23946 Boltenhagen
Die vollständige Adresse der Immobilie erhalten Sie vom Anbieter.
Auf Karte anzeigen
Die vollständige Adresse der Immobilie erhalten Sie vom Anbieter.
Finanzierungszertifikat
In nur zwei Minuten zu Ihrem persönlichen Finanzierungszertifkat.
Infos
| Etagenzahl | 3 |
|---|---|
| Wohnfläche ca. | 230 m2 |
| Grundstücksfläche | 180 m2 |
| Zimmer | 7 |
| Schlafzimmer | 4 |
| Badezimmer | 2 |
| Anzahl Garage/Stellplatz | 2 |
Kosten
| Kaufpreis |
650.000 € |
|---|---|
| Provision | Nein |
Finanzierungsrechner:
Kaufpreis:
600.000 €
Eigenkapital:
600.000 €
Monatliche Rate
0 €
Effektiver Jahreszins
0 %
Sollzinsbindung
10 Jahre
Bausubstanz & Energieausweis
| Letzte Sanierung | 2025 |
|---|---|
| Bauphase | Haus fertig gestellt |
| Objektzustand | Erstbezug |
| Qualität der Austattung | Luxus |
| Heizungsart | Holz-Pelletheizung |
| Wesentliche Energieträger | Pelletheizung |
| Energieausweis | liegt zur Besichtigung vor |
Beschreibung des Objekts
Lage
Die Immobilie liegt in Damshagen in der Nähe von Boltenhagen. Fußläufig vom Objekt entfernt erreichen Sie einen Einkaufsmarkt, eine Buslinie und einen Arzt. Der Strand ist in ca. 5 min mit dem Auto
erreichbar.
Lübeck, Hamburg, Wismar und Rostock sind gut angebunden.
Grundriss
Grundriss Obergeschoss
>
>
Grundriss Erdgeschoss
>
>
Grundriss Dachgeschoss
>
>
Adresse
23946 Boltenhagen
Interessante Orte
Preis- und Lageinformationen
Preistrend für Bestandsimmobilien in Boltenhagen