Das Grundstück bietet die Möglichkeit, ein freistehendes Einfamilienhaus nach Ihren eigenen Vorstellungen zu errichten. Es ist teilerschlossen und fügt sich harmonisch in die bestehende Wohnbebauung ein. Die Größe des Grundstücks erlaubt eine familienfreundliche Bauweise mit Garten und genügend Raum zur individuellen Gestaltung. Die Bebaubarkeit richtet sich nach §34 BauGB (Umgebungsbebauung). Damit können Sie Ihr neues Zuhause in einem gewachsenen Wohngebiet realisieren.
**Hier könnte Ihr Traumhaus entstehen – Baugrundstück in ruhiger Lage**
44388 Dortmund
Die vollständige Adresse der Immobilie erhalten Sie vom Anbieter.
Auf Karte anzeigen
Die vollständige Adresse der Immobilie erhalten Sie vom Anbieter.
Finanzierungszertifikat
In nur zwei Minuten zu Ihrem persönlichen Finanzierungszertifkat.
Infos
| Vermarktungsart | Kaufen |
|---|---|
| Grundstücksfläche | 402 m2 |
| Erschließung | Teilerschlossen |
| Empfohlene Nutzung | Einfamilienhaus |
| Bebaubar nach | wie Nachbarbebauung |
Kosten
| Miete pro Jahr |
198.000 € |
|---|---|
| Provision |
4,76 % inkl. 19 % gesetzl. MwSt. aus dem Kaufpreis, zahlbar für den Käufer nach Vertragsabschluss. |
Finanzierungsrechner:
Kaufpreis:
600.000 €
Eigenkapital:
600.000 €
Monatliche Rate
0 €
Effektiver Jahreszins
0 %
Sollzinsbindung
10 Jahre
Beschreibung des Objekts
Lage
Das Grundstück befindet sich in Dortmund-Lütgendortmund, einem beliebten Stadtteil im Westen der Stadt. Das Umfeld ist geprägt von ruhigen Wohnstraßen mit Ein- und Zweifamilienhäusern sowie gepflegten Reihenhausanlagen. Einkaufsmöglichkeiten, Schulen, Kindergärten und Ärzte sind in wenigen Minuten erreichbar. Die Anbindung an den ÖPNV ist sehr gut, zudem sorgen die nahegelegenen Autobahnen A40 und A45 für schnelle Verbindungen ins gesamte Ruhrgebiet. Grünflächen und Naherholungsgebiete wie der Volksgarten Lütgendortmund bieten einen hohen Freizeitwert und machen die Lage besonders attraktiv für Familien und Paare. Wer Ruhe sucht, profitiert von der angenehmen Wohnatmosphäre, ohne auf die Nähe zu urbanen Angeboten verzichten zu müssen.
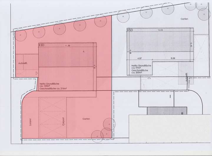
Grundriss
001 Grundstück (rot)
>
>