Diese charmante Doppelhaushälfte in Wuppertal-Küllenhahn wurde im Jahr 1960 erbaut. Das Haus besticht durch seinen klassischen Stil und bietet ausreichend Platz für eine Familie. Auf einem großzügigen Grundstück mit einem wunderschönen Garten gelegen, verfügt das Haus über eine Wohnfläche von ca. 97 m² und eine zusätzliche Nutzfläche von ca. 20 m² im Dachgeschoss.
Mit insgesamt 5 Zimmern bietet die Doppelhaushälfte genug Raum zur individuellen Gestaltung und zur Erfüllung verschiedenster Wohnbedürfnisse. Das Haus ist voll unterkellert und bietet somit zusätzlichen Stauraum. Außerdem parken Sie Ihr Auto bequem in einer der beiden Garagen am Haus.
Wir laden Sie zu einer Besichtigung ein, um die Möglichkeiten dieser Immobilie persönlich zu entdecken. Entdecken Sie den Charme und das Potenzial dieses Hauses und machen Sie es zu Ihrem neuen Zuhause.
DHH IN W-KÜLLENHAHN MIT DOPPELGARAGE UND WUNDERSCHÖNEM GARTEN
42349 Wuppertal
Die vollständige Adresse der Immobilie erhalten Sie vom Anbieter.
Auf Karte anzeigen
Die vollständige Adresse der Immobilie erhalten Sie vom Anbieter.
Finanzierungszertifikat
In nur zwei Minuten zu Ihrem persönlichen Finanzierungszertifkat.
Infos
| Haustyp | Doppelhaushaelfte |
|---|---|
| Wohnfläche ca. | 97 m2 |
| Nutzfläche | 98 m2 |
| Grundstücksfläche | 623 m2 |
| Bezugsfrei ab | nach Absprache |
| Zimmer | 5 |
| Badezimmer | 1 |
| Garage/Stellplatz | Garage |
| Anzahl Garage/Stellplatz | 2 |
Kosten
| Kaufpreis |
345.000 € |
|---|---|
| Provision |
3,57% |
Finanzierungsrechner:
Kaufpreis:
600.000 €
Eigenkapital:
600.000 €
Monatliche Rate
0 €
Effektiver Jahreszins
0 %
Sollzinsbindung
10 Jahre
Bausubstanz & Energieausweis
| Baujahr | 1960 |
|---|---|
| Heizungsart | Öl-Heizung |
| Wesentliche Energieträger | Öl |
| Energieausweis | liegt vor |
| Energieausweistyp | Bedarfsausweis |
| Energieverbrauchskennwert | 162,2 kWh/(m²*a) |
| Energieeffizienzklasse | F |
162,2
kWh/(m²*a)
Energieeffizienzklasse F
- A+
- A
- B
- C
- D
- E
- F
- G
- H
- 0
- 25
- 50
- 75
- 100
- 125
- 150
- 175
- 200
- 225
- >250
Beschreibung des Objekts
Ausstattung
- Ölzentralheizung aus dem Jahr 1989
- Kunststoff-Isolierglasfenster
- 2 Garagen mit vorgelagertem Kfz-Stellplatz
Folgende Modernisierungsmaßnahmen wurden zuletzt 2021 am Haus vorgenommen:
- Modernisierung von Bad und Gäste-WC
- Erneuerung der Elektrik
- Erneuerung der Bodenbeläge
Besondere Hinweise:
Die Photovoltaikanlage auf dem Dach ist derzeit nicht nutzbar.
Die Bekleidung des Hauses mit Fassadentafeln weist Spuren von Asbest auf.
Das Dach des Wintergartens sowie das der Garage muss erneuert werden.
Der Balkonbelag im OG. muss erneuert werden.
Lage
Die Doppelhaushälfte befindet sich in gefragter Höhenlage von Wuppertal-Cronenberg - Grenze zu Elberfeld (Küllenhahn). Schulen, Kindergärten und die Universität sind ganz in der Nähe. Die Autobahnanbindung ist ausgezeichnet. Auch die Nähe zur Samba-Trasse bieten einen enormen Mehrwert.
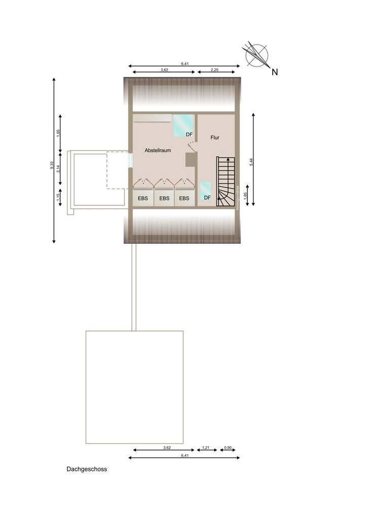
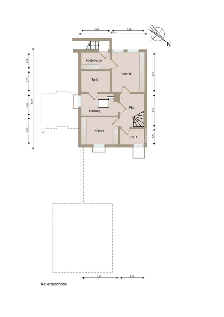
Grundriss
Grundriss_KG.
>
>
Grundriss EG.
>
>
Grundriss OG.
>
>
Grundriss DG.
>
>
Adresse
42349 Wuppertal
Interessante Orte
Preis- und Lageinformationen
Preistrend für Bestandsimmobilien in Cronenberg