Das angebotene Grundstück befindet sich in der idyllischen Gemeinde Widdern im Landkreis Heilbronn in Baden-Württemberg.
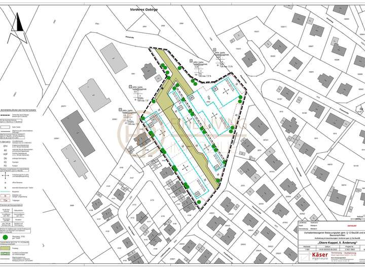
Das insgesamt 5.000 m² große Grundstück bietet viel Platz für individuelle Bebauungsmöglichkeiten und ist somit ideal für die Verwirklichung Ihres Projektes geeignet.
Für dieses Grundstück wurden bereits 5 Doppelhäuser projektiert. Nach diesen Projektierungen hat die Gemeinde Widdern den Bebauungsplan erstellt! Das bedeutet für Sie, als Käufer einen großen Vorteil zu haben.
Die Projektierungen müssen auch nicht übernommen werden. Somit sind Sie nach wie vor mit Ihrer Gestaltung frei gemäß Bebauungsplan.
Für die projektierten Doppelhäuser liegen auch beantragte KfW-Förderungen vor, deren Einreichungsfrist auf 3 Jahre verlängert wurde.
Ein weiterer Vorteil, den Sie hier als Käufer haben!
Die Infrastruktur in Widdern ist sehr gut ausgebaut. Einkaufsmöglichkeiten, Schulen, Kindergärten und Ärzte sind schnell und bequem zu erreichen.
Auch die Anbindung an den öffentlichen Nahverkehr sowie die A81 ist optimal.
Ein großer Arbeitgeber in der Nähe ist das Logistikzentrallager von Kaufland.
Sie sind neugierig geworden? Für weitere Informationen und einen Besichtigungstermin stehen wir Ihnen jederzeit gerne zur Verfügung.
Wir freuen uns auf Ihre Nachricht.
Bitte haben Sie Verständnis dafür, dass wir nur Anfragen mit vollständiger Adressangabe, Email und erreichbarer Handynummer bearbeiten können.
Baugrundstück mit 5000m² - Vorprojektiert, aber auch frei planbar mit DHH, EFH oder MFH!
74259 Widdern
Die vollständige Adresse der Immobilie erhalten Sie vom Anbieter.
Auf Karte anzeigen
Die vollständige Adresse der Immobilie erhalten Sie vom Anbieter.
Finanzierungszertifikat
In nur zwei Minuten zu Ihrem persönlichen Finanzierungszertifkat.
Infos
| Vermarktungsart | Kaufen |
|---|---|
| Grundstücksfläche | 5.000 m2 |
| Erschließung | Unerschlossen |
| Empfohlene Nutzung | Doppelhaus, Einfamilienhaus, Mehrfamilienhaus |
| Bebaubar nach | Bebauungsplan |
| Verfügbar ab | sofort |
Kosten
| Miete pro Jahr |
629.000 € |
|---|---|
| Provision |
3,57 % des Kaufpreises inkl. 19% MwSt. |
Finanzierungsrechner:
Kaufpreis:
600.000 €
Eigenkapital:
600.000 €
Monatliche Rate
0 €
Effektiver Jahreszins
0 %
Sollzinsbindung
10 Jahre
Beschreibung des Objekts
Lage
Im Nordosten des Landkreises Heilbronn gelegen, erstreckt sich das 25,23 qkm große Stadtgebiet größtenteils über die Kocher-Jagst-Ebenen, konkret das Jagsttal und die Seckach-Kessach-Riedel; im Nordosten hat die Gemeinde Anteil am Bauland.
Hauptgewässer ist die Jagst, die das Gelände in drei Schlingen von Osten nach Westen durchläuft; ihr fließt in der Kernstadt von Norden die Kessach zu. An der Grenze gegen Möckmühl im Westen markiert die Jagst auf etwa 176 m NN den tiefsten Punkt der Gemeinde. Im Süden erreicht das Gelände am Oberberg auf rd. 351,4 m NN das Höhenmaximum.
Eine kleine Gemeinde mit rund 2.000 Einwohnern an der Mündung der Kessach in die Jagst
Widdern gilt als eine der kleinsten Städte Baden-Württembergs. Das Örtchen präsentiert sich als romantisches Idyll par excellence, harmonisch eingebettet in die freundliche und waldreiche Natur des Jagst- und Kessachtals.
Hier laden Wiesen, Wälder und Weinberge zum Wohlfühlerlebnis ein. Besonders beim Radeln auf dem Kocher-Jagst-Radweg oder dem Kessachtalradweg oder beim Angeln kommen Freizeitsportler und Frischluftfreunde voll auf ihre Kosten.
Sonstige Angaben
Gerne weisen wir darauf hin, dass wir im Sinne von §652 BGB für Sie als Interessenten mit Provision tätig sind. Bitte haben Sie Verständnis dafür, dass wir nur Anfragen mit vollständiger Adressangabe und erreichbarer Handynummer bearbeiten können.
Sie möchten Ihre Immobilie verkaufen - und suchen den passenden Käufer? Dann sind wir Ihr Partner.
GELDWÄSCHE: HR Fine Living Immobilien ist nach § 2 Abs. 1 Nr. 14 und § 11 Abs. 1, 2 Geldwäschegesetz (GwG) dazu verpflichtet, bei der Begründung einer Geschäftsbeziehung die Identität des Vertragspartners festzustellen und zu überprüfen, bzw. sobald ein ernsthaftes Interesse an der Durchführung des Immobilienkaufvertrages besteht. Hierzu ist es erforderlich, dass wir nach § 11 Abs. 4 GwG die relevanten Daten Ihres Personalausweises festhalten (wenn Sie als natürliche Person handeln) – beispielsweise mittels einer Kopie. Bei einer juristischen Person benötigen wir eine Kopie des Handelsregisterauszugs, aus welchem der wirtschaftlich Berechtigte hervorgeht. Das Geldwäschegesetz sieht vor, dass der Makler die Kopien bzw. Unterlagen fünf Jahre aufbewahren muss. Als unser Vertragspartner haben Sie auch eine Mitwirkungspflicht nach § 11 Abs. 6 GwG.
HAFTUNG: Wir weisen darauf hin, dass die von uns weitergegebenen Objektinformationen, Unterlagen, Pläne etc. vom Verkäufer bzw. Vermieter stammen. Eine Haftung für die Richtigkeit oder Vollständigkeit der Angaben übernehmen wir daher nicht. Es obliegt daher unseren Kunden, die darin enthaltenen Objektinformationen und Angaben auf ihre Richtigkeit hin zu überprüfen. Alle Immobilienangebote sind freibleibend und vorbehaltlich Irrtümer, Zwischenverkauf- und Vermietung oder sonstiger Zwischenverwertung.