Zum Verkauf steht ein sonniges, ruhiges Grundstück (906 m²), das derzeit mit einem gepflegten Zweifamilienhaus aus dem Jahr 1958 bebaut ist. Das Haus bietet eine Gesamtwohnfläche von rund 151 m², verteilt auf 2 Wohnungen mit insgesamt 8 Räumen.
Der Bodenrichtwert (2024) liegt bei 2.500 €/ m². Auf dieser Basis würde sich rein rechnerisch ein Wert des Grundstücks von 2.265.000 € ergeben. Der Kaufpreiserwartung des Verkäufers liegt bei 1.475.000 €.
Das Grundstück bietet die Möglichkeit einer Bebauung mit einem großen Doppelhaus oder einem Mehrfamilienhaus. Hier kann mit einer Wohnfläche von ca. 425 m² bzw. 400 m² kalkuliert werden.
Die derzeitige Immobilie verfügt aktuell über 2 Wohneinheiten, die sich wie folgt aufteilen:
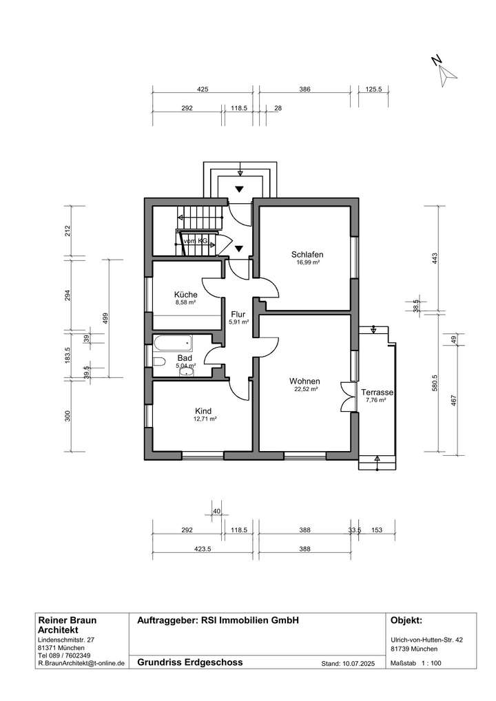
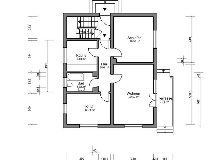
Erdgeschosswohnung: 4 Räume, inkl. Küche, Wohnfläche ca. 75,6 m², herrliche Süd-West-Terrasse (ca. 8 m²). Sie ist derzeit nicht vermietet und sofort nutzbar – ideal zur Eigennutzung oder zur Neuvermietung.
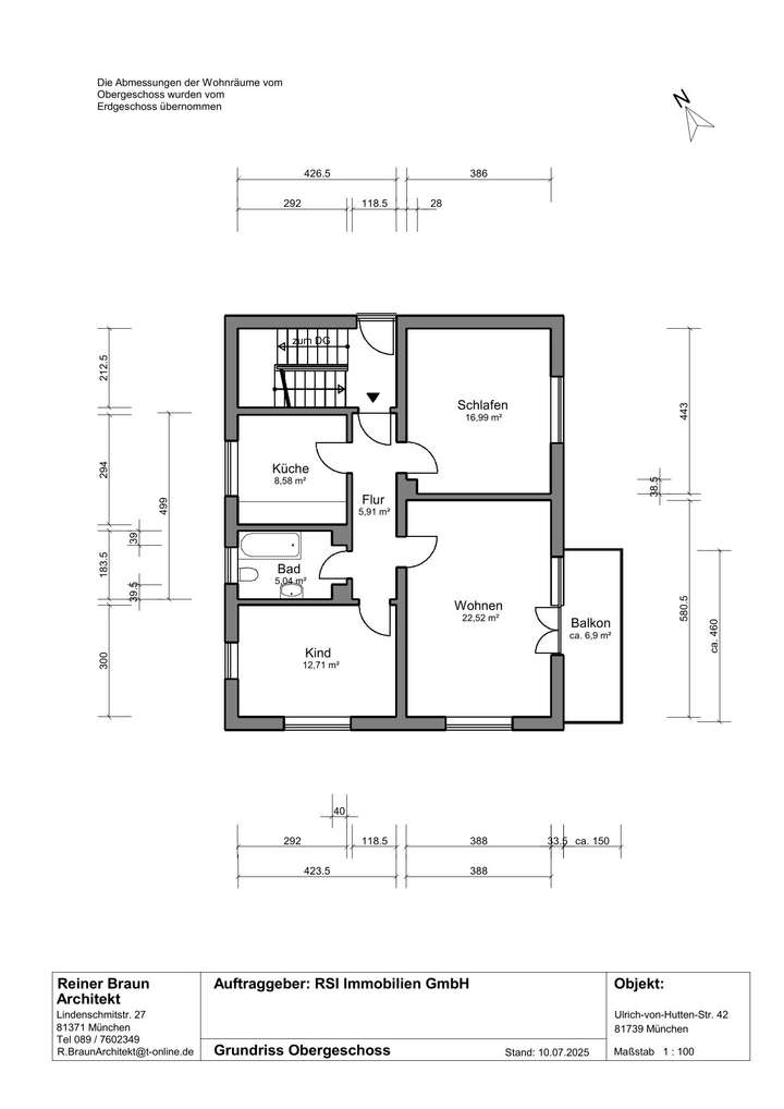
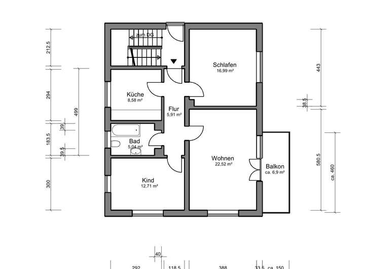
Obergeschosswohnung: der Grundriss entspricht grundsätzlich dem der Erdgeschosswohnung. Somit ebenfalls 4 Zimmer, inkl. Küche, und eine Wohnfläche von ca. 75,2 m². Zudem verfügt sie über einen sonnigen Süd-West-Balkon. Sie wird derzeit von sehr zuverlässigen Mieter bewohnt.
Dachgeschoss: bislang nicht ausgebaut.
Das Haus präsentiert sich in einem für sein Alter gepflegten Gesamtzustand und überzeugt durch eine solide Bauweise. Das große Grundstück mit ca. 906 m² bietet einen traumhaft großen Garten mit vielfältigen Nutzungsmöglichkeiten – ob als Spielfläche für Kinder, zur Gartengestaltung oder für weitere individuelle Ideen.
Dieses Angebot ist sowohl für private wie auch gewerbliche Bauherren interessant.
Großzügiges, sonniges Grundstück mit Zweifamilienhaus in grüner und ruhiger Wohnlage
81739 München
Die vollständige Adresse der Immobilie erhalten Sie vom Anbieter.
Auf Karte anzeigen
Die vollständige Adresse der Immobilie erhalten Sie vom Anbieter.
Finanzierungszertifikat
In nur zwei Minuten zu Ihrem persönlichen Finanzierungszertifkat.
Infos
| Vermarktungsart | Kaufen |
|---|---|
| Grundstücksfläche | 906 m2 |
Kosten
| Miete pro Jahr |
1.475.000 € |
|---|---|
| Provision |
2,98 % inkl. 19% MwSt. |
Finanzierungsrechner:
Kaufpreis:
600.000 €
Eigenkapital:
600.000 €
Monatliche Rate
0 €
Effektiver Jahreszins
0 %
Sollzinsbindung
10 Jahre
Beschreibung des Objekts
Lage
Das Zweifamilienhaus befindet sich in einer ruhigen Wohngegend im Stadtteil Waldperlach im Südosten Münchens. Die Umgebung ist geprägt von gepflegten Ein- und Zweifamilienhäusern mit viel Grün und familienfreundlichem Flair.
Die Anbindung an den öffentlichen Nahverkehr ist sehr gut: Die Bushaltestellen „Putzbrunner Straße“ und „Waldheimplatz“ (Linien 55 und 221) befinden sich nur wenige Gehminuten entfernt und ermöglichen den schnellen Anschluss zur S-Bahn-Station „Neuperlach Süd“ (S7).
Für den täglichen Bedarf stehen in der Nähe diverse Einkaufsmöglichkeiten zur Verfügung, darunter das „PEP-Einkaufs-Center Neuperlach“ mit zahlreichen Geschäften, Supermärkten und Gastronomieangeboten.
Kindergärten, Grundschulen (z. B. Gänselieselstraße) sowie weiterführende Schulen wie das Heinrich-Heine-Gymnasium befinden sich in direkter Umgebung. Auch die medizinische Versorgung ist durch nahegelegene Arztpraxen und Apotheken sichergestellt.
Zahlreiche Freizeitmöglichkeiten wie der Perlacher Forst, Spielplätze und Sportvereine bieten Erholung und Aktivität im Grünen – ideal für Familien und naturverbundene.
Sonstige Angaben
Dieses Grundstück wird von der RSI Immobilien GmbH im Alleinauftrag angeboten.
Hinweis auf Provisionspflicht:
Bei Zustandekommen eines rechtsgültigen, notariellen Kaufvertrages besteht seitens der RSI Immobilien GmbH Anspruch auf eine Käufer-Provision in Höhe von 2,98 % inkl. 19 % MwSt. aus dem verbrieften Kaufpreis.
Die Provisionspflicht entsteht erst mit dem Zustandekommen eines notariellen Kaufvertrages, auf Basis des durch Ihre Anfrage rechtsgültig geschlossenen Maklervertrages betreffend die von uns angebotene Immobilie.
Ihr Ansprechpartner:
Andreas Baumann
Geschäftsleitung
Grundriss
Grundriss EG
>
>
Grundriss OG
>
>