"Ihr neues Zuhause mit 6 Zimmern für die ganze Familie"
Diese moderne Stadtvilla überzeugt durch zeitlose Architektur, kluge Raumaufteilung und hochwertige Bauweise. Auf ca. 150 m² Wohnfläche stehen Ihnen insgesamt 6 lichtdurchflutete Zimmer zur Verfügung - ideal für Familien, die Wert auf Platz, Komfort und ein stilvolles Zuhause legen.
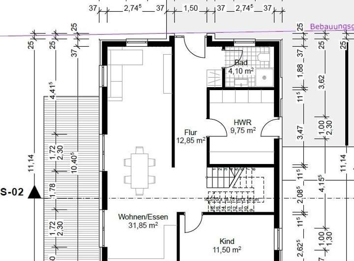
Das Erdgeschoss besticht durch einen offenen Wohn- und Essbereich mit direktem Zugang zur Terrasse und in den Garten. Große Fensterfronten sorgen für eine helle, freundliche Atmosphäre. Die Küche kann nach Ihren Vorstellungen eingeplant werden. Ein zusätzliches Zimmer im Erdgeschoss eignet sich perfekt als Büro oder Gästezimmer.
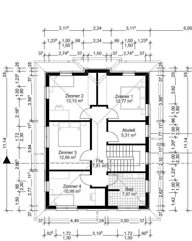
Im Obergeschoss erwarten Sie ein großzügiges Schlafzimmer, mehrere Kinderzimmer sowie ein modernes Familienbad. Hochwertige Materialien, energieeffiziente Bauweise und eine durchdachte Planung machen dieses Haus zu einem wertbeständigen Lebensmittelpunkt.
Die Stadtvilla entsteht auf dem Gelände der ehemaligen Gärtnerei in Sanitz - in ruhiger und doch mit bester Anbindung. Ein perfekter Ort, um modernes Wohnen mit Familienfreundlichkeit und naturnahem Umfeld zu verbinden.
Baubeginn: Moderne Stadtvilla in Sanitz
18190 Sanitz
Die vollständige Adresse der Immobilie erhalten Sie vom Anbieter.
Auf Karte anzeigen
Die vollständige Adresse der Immobilie erhalten Sie vom Anbieter.
Finanzierungszertifikat
In nur zwei Minuten zu Ihrem persönlichen Finanzierungszertifkat.
Infos
| Haustyp | Einfamilienhaus |
|---|---|
| Etagenzahl | 2 |
| Wohnfläche ca. | 150 m2 |
| Grundstücksfläche | 450 m2 |
| Bezugsfrei ab | 01.02.2026 |
| Zimmer | 6 |
| Badezimmer | 2 |
| Anzahl Garage/Stellplatz | 2 |
Kosten
| Kaufpreis |
512.000 € |
|---|---|
| Provision | Nein |
Finanzierungsrechner:
Kaufpreis:
600.000 €
Eigenkapital:
600.000 €
Monatliche Rate
0 €
Effektiver Jahreszins
0 %
Sollzinsbindung
10 Jahre
Bausubstanz & Energieausweis
| Baujahr | 2025 |
|---|---|
| Bauphase | Haus fertig gestellt |
| Objektzustand | Erstbezug |
| Qualität der Austattung | Normal |
| Heizungsart | Fußbodenheizung |
| Energieausweis | laut Gesetz nicht erforderlich |
Beschreibung des Objekts
Ausstattung
* ca. 150 m²
* 6 Zimmer (optional 5 Zimmer)
* Massive Bauweise (Wände in Kalksandstein, EG-Decke, Treppe zum OG)
* Wärmedämmverbundsystem, Farbe nach Wahl
* 30° Dachneigung, Flachdachziegel anthrazit
* Kunststofffenster 3-fach-Wärmeschutzverglasung (innen weiß, außen farbig)
* Betontreppe mit Holzstufen massive Eiche, geölt
* Luft-Wasser-Wärmepumpe in Kombination mit Fußbodenheizung
* Zirkulationsleitung, Vorbereitung Photovoltaikanlage
* Bad-EG mit bodengleicher Dusche 0,90x1,20m, Klarglas ESG
* Bad-OG mit Badewanne 1,80x0,80m und bodengleicher Dusche 0,90x1,20m
* Elektroplanung in Abstimmung mit den Käufern sowie Vorrüstung für Wallbox
* HWRaum/Technik im EG (Anschluss Waschmaschine, Ausgussbecken)
* Zahlung nach MaBV (Baufortschritt)
* Vertragsgrundlage ist die Bauleistungsbeschreibung (Stand 03.09.2025)
Lage
Sanitz: Familienfreundliche Lage nahe Rostock mit kompletter Infrastruktur
Sanitz liegt etwa 17 km östlich der Hansestadt Rostock und zählt rund 6.500 Einwohner. Die Gemeinde bietet eine sehr gute Anbindung: Über die B110 erreichen Sie Rostock schnell, die nahe A20 bindet überregional an, und der Bahnhof mit der RB 11 (Wismar-Rostock-Tessin) stellt stündlich Zugverbindungen sicher - ideal für Pendler.
Die Infrastruktur ist hervorragend ausgebaut:
Einkaufsmöglichkeiten, Ärzte, Apotheken, Post, Bankfilialen sowie diverse Dienstleister befinden sich direkt im Ort.
Familien profitieren von kurzen Wegen:
Sanitz verfügt über eine Grundschule, eine Regionale Schule sowie ein modernes Gymnasium. Mehrere Kitas und eine Bibliothek runden das Angebot ab. Auch das Freizeit- und Kulturleben ist vielseitig. Sportvereine sowie Freizeitangebote bieten zahlreiche Aktivitäten für Jung und Alt.
Sanitz vereint ländliche Ruhe mit der Nähe zur Ostsee und zur Großstadt Rostock - ein idealer Wohnort für Familien, Berufspendler und alle, die naturnah und zugleich stadtnah wohnen möchten.
Sonstige Angaben
Bitte sehen Sie vom eigenständigen Betreten der Baustelle ab. Vereinbaren Sie gerne einen Besichtigungstermin - wir freuen uns darauf.
Alle Angaben haben wir vom Auftraggeber erhalten. Für deren Richtigkeit können wir keine Gewähr übernehmen. Einen Zwischenverkauf behält sich der Auftraggeber/Verkäufer ausdrücklich vor. Wir bitten um Verständnis, dass wir nur vollständige, schriftliche Anfragen (E-Mail, Fax, Brief) mit Namen, Anschrift und Telefonnummer (tagsüber) beantworten können. Gerne stehen wir Ihnen auch zu einer persönlichen Beratung zur Verfügung.
Die gezeigten Ansichten und Visualisierungen dienen ausschließlich der Illustration. Möblierungen, Farben, Materialien und Ausstattungsdetails können abweichen. Einrichtungsgegenstände sind beispielhaft dargestellt und nicht Teil des Kaufgegenstands. Maßgeblich ist ausschließlich die vertraglich vereinbarte Bau- und Ausstattungsbeschreibung.
Unser gesamtes Immobilienangebot sowie Informationen zu unseren günstigen Finanzierungskonditionen finden Sie auf www.ospa.de/immo. AKTUELLES ANGEBOT: Bei Erwerb einer Immobilie über das OSPA ImmobilienZentrum sparen Sie bei einer Sparkassen Baufinanzierung die Schätzkosten.
Grundriss
Erdgeschoss
>
>
Obergeschoss
>
>
Adresse
18190 Sanitz
Interessante Orte
Preis- und Lageinformationen
Preistrend für Bestandsimmobilien in Sanitz