Helles Raumwunder - Naturidylle mit Bachlauf - vereint Ruhe und Nähe zur Stadt
Dieses charmante Reiheneckhaus, das im Jahr 1977 erstmals bezogen wurde, liegt in einer ruhigen und begehrten Randlage im sympathischen Süden von Altötting. Auf einer Grundstücksfläche von ca. 419 m² bietet das Wohnhaus eine beachtliche Wohnfläche von ca. 250 m², die sich auf drei Etagen erstreckt. Die Lage vereint das Beste aus beiden Welten: kurze Wege ins Stadtzentrum und gleichzeitig die Nähe zur Natur, sodass Sie das ruhige Leben am Stadtrand genießen können, ohne auf urbane Annehmlichkeiten verzichten zu müssen.
Etwas tiefer gelegen als das Wohnhaus und über ein paar Treppenstufen zu erreichen, befindet sich ein malerischer Grünstreifen mit eigenem Zugang zum Sickenbach, der die naturnahe Randlage dieser Immobilie perfekt abrundet. Alle relevanten Einrichtungen des täglichen Bedarfs sind schnell erreichbar, vieles davon fußläufig, und die Autobahn A94 bietet eine schnelle Anbindung Richtung München.
Im Erdgeschoss mit ca. 95 m² Wohnfläche erwartet Sie beim Betreten der Immobilie ein praktischer Windfang, der als Garderobe dient und Zugang zum Gäste-WC sowie zur Diele bietet. Die Diele ermöglicht neben dem Treppenhaus auch den Zugang zur Küche mit separatem Esszimmer und zum geräumigen Wohnzimmer mit einem zweiten Essbereich. Vom Wohnzimmer gelangen Sie sowohl über die sonnige, überdachte Terrasse in den herrlich angelegten und schön eingewachsenen Garten als auch in einen weiteren Raum, der im Stil eines Wintergartens gestaltet ist und sich ideal als Arbeits- oder Lesezimmer anbietet.
Das Obergeschoss bietet mit ca. 100 m² Wohnfläche noch mehr Platz als das ohnehin schon großzügige Erdgeschoss. Es verfügt über fünf Zimmer, ein Badezimmer sowie einen nach Süden ausgerichteten Balkon.
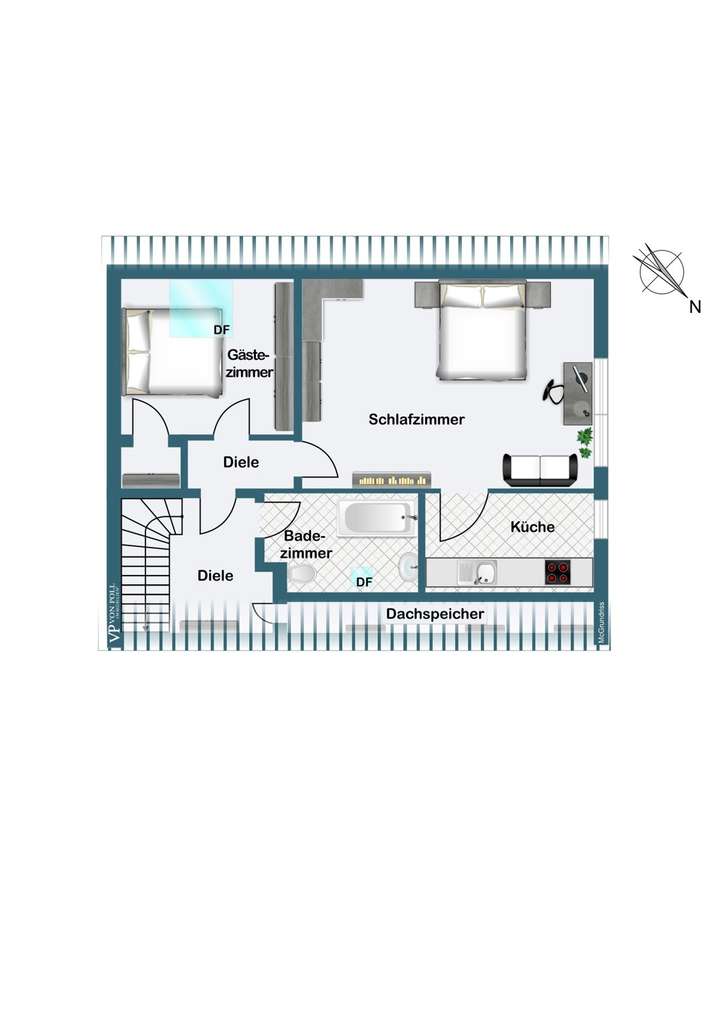
Das Raumangebot wird im Dachgeschoss um zwei weitere Zimmer mit kleiner Küche und separatem Bad ergänzt. Diese Etage mit ca. 55 m² Wohnfläche kann hervorragend als Einliegerwohnung oder geräumige Gästewohnung genutzt werden.
Auch der Keller dieser Immobilie überrascht mit einem überdurchschnittlichen Platzangebot. Neben dem Heizungsraum, dem Tankraum und einem Vorratsraum stehen drei sehr gepflegte und wohnlich gestaltete Kellerräume zur Verfügung, die ideal für Hobbys, eine Werkstatt oder als Arbeitsräume geeignet sind.
Die Ölheizung im Haus ist aus dem Jahr 1995 und der Tankraum befindet sich unter der sehr großzügigen Garage des Hauses. Die Fenster im Haus wurden bis auf wenige Ausnahmen 2007 erneuert und einige Bodenbeläge sowie teilweise die sanitäre Einrichtung sind ebenfalls modernisiert worden.
Die naturnahe Randlage am romantischen Bachlauf, die maximale Privatsphäre im wunderschön eingewachsenen Gartenidyll, das beeindruckende Platzangebot zum Wohnen und Leben sowie die gute Erreichbarkeit aller relevanten Einrichtungen des täglichen Lebens sind nur einige der Highlights, die dieses Haus zu einem besonderen Ort und einem echten Zuhause machen.
Gerne stellen wir Ihnen dieses charmante Zuhause persönlich vor. Im ersten Schritt bitten wir Sie um eine schriftliche Anfrage (über das Immobilienportal, unsere Homepage oder per E-Mail) mit Angabe Ihrer vollständigen Kontaktdaten.
Wir freuen uns auf Ihre Nachricht!
Hier geht es zur virtuellen Besichtigung (360° Tour):
https://tour.ogulo.com/VSys
Helles Raumwunder - Naturidylle mit Bachlauf - vereint Ruhe und Nähe zur Stadt
84503 Altötting
Die vollständige Adresse der Immobilie erhalten Sie vom Anbieter.
Auf Karte anzeigen
Die vollständige Adresse der Immobilie erhalten Sie vom Anbieter.
Finanzierungszertifikat
In nur zwei Minuten zu Ihrem persönlichen Finanzierungszertifkat.
Infos
| Haustyp | Reiheneckhaus |
|---|---|
| Etagenzahl | 3 |
| Wohnfläche ca. | 251 m2 |
| Nutzfläche | 126 m2 |
| Grundstücksfläche | 419 m2 |
| Zimmer | 10 |
| Schlafzimmer | 6 |
| Badezimmer | 2 |
| Garage/Stellplatz | Garage |
| Anzahl Garage/Stellplatz | 1 |
Kosten
| Kaufpreis |
499.000 € |
|---|---|
| Provision |
Käuferprovision beträgt 3,57 % (inkl. MwSt.) des beurkundeten Kaufpreises |
Finanzierungsrechner:
Kaufpreis:
600.000 €
Eigenkapital:
600.000 €
Monatliche Rate
0 €
Effektiver Jahreszins
0 %
Sollzinsbindung
10 Jahre
Bausubstanz & Energieausweis
| Baujahr | 1977 |
|---|---|
| Letzte Sanierung | 2007 |
| Bauphase | Haus fertig gestellt |
| Objektzustand | Gepflegt |
| Qualität der Austattung | Normal |
| Heizungsart | Zentralheizung |
| Wesentliche Energieträger | Öl |
| Energieausweis | liegt vor |
| Energieausweistyp | Bedarfsausweis |
| Energieverbrauchskennwert | 194,9 kWh/(m²*a) |
| Energieeffizienzklasse | F |
194,9
kWh/(m²*a)
Energieeffizienzklasse F
- A+
- A
- B
- C
- D
- E
- F
- G
- H
- 0
- 25
- 50
- 75
- 100
- 125
- 150
- 175
- 200
- 225
- >250
Beschreibung des Objekts
Ausstattung
Hier geht es zur virtuellen Besichtigung (360° Tour):
https://tour.ogulo.com/VSys
Lage
Altötting liegt malerisch im Alpenvorland, umgeben von den Städten München, Passau und Salzburg sowie in unmittelbarer Nähe des idyllischen Chiemsees. Die Kreisstadt, mit rund 13.000 Einwohnern, gehört zum gleichnamigen Landkreis im Regierungsbezirk Oberbayern und befindet sich etwa 90 Kilometer östlich von München.
Die Landeshauptstadt ist über die Autobahn A94 in nur etwa 45 Minuten erreichbar, wodurch Altötting besonders attraktiv für Berufspendler wird. Zusätzlich gewährleistet die Bahnlinie Mühldorf-Burghausen eine hervorragende Anbindung an zahlreiche weitere Städte. Altötting verfügt zudem über einen eigenen Bahnhof. Das Stadtzentrum lädt mit einer Vielzahl von Annehmlichkeiten, darunter einladende Bäckereien und Supermärkte, zum Verweilen und Entdecken ein.
Der Landkreis Altötting, das "A und Ö in Bayern", ist nicht nur die Heimat des bedeutendsten Wallfahrtsortes Bayerns, sondern auch der längsten Burganlage der Welt in Burghausen, die mit ihren 1.051 Metern einen Besuch wert ist. Jährlich ziehen die Marienwallfahrt und die Gnadenkapelle in Altötting rund eine Million Pilger an. Zudem ist das Geburtshaus des verstorbenen Papstes Benedikt XVI. in Marktl am Inn ein weiterer Anziehungspunkt.
Der Landkreis ist flächenmäßig klein, beheimatet aber etwa 106.000 Einwohner und umfasst die wichtigen Städte Alt- und Neuötting sowie Burghausen. Durch die perfekte Lage hat sich die Region zu einem Hightech-Zentrum mit international anerkanntem technischem Know-how entwickelt und ist ein Aushängeschild für die wirtschaftliche Leistungsfähigkeit Bayerns.
Die Umgebung besticht durch eine hohe Lebensqualität: Die sanfte Hügellandschaft, die den Inn und die Salzach umgibt, schafft ein wunderschönes Landschaftsbild. Neun wertvolle Natur- und Landschaftsschutzgebiete sowie über 100 Naturdenkmäler bereichern die Region. Die Freizeitangebote sind vielfältig und reichen von Badeseen und Trimmpfaden über eine Kartbahn und Golfplätze bis hin zu fast 400 Kilometern Rad- und Wanderwegen. Für Liebhaber der bayerischen Lebensart, Volksmusik und gemütlichen Biergärten bietet die Region zahlreiche Möglichkeiten. Kulturelle Veranstaltungen, wie die im Schloss Tüßling oder das jährliche Burghauser Jazz-Festival, runden das Angebot ab.
Altötting – ein Ort, der nicht nur durch seine Lage besticht, sondern auch durch seine vielfältigen kulturellen und natürlichen Angebote.
Sonstige Angaben
GELDWÄSCHE: Als Immobilienmaklerunternehmen ist die von Poll Immobilien GmbH nach § 2 Abs. 1 Nr. 14 und § 11 Abs. 1, 2 Geldwäschegesetz (GwG) dazu verpflichtet, bei der Begründung einer Geschäftsbeziehung die Identität des Vertragspartners festzustellen und zu überprüfen, bzw. sobald ein ernsthaftes Interesse an der Durchführung des Immobilienkaufvertrages besteht. Hierzu ist es erforderlich, dass wir nach § 11 Abs. 4 GwG die relevanten Daten Ihres Personalausweises festhalten (wenn Sie als natürliche Person handeln) – beispielsweise mittels einer Kopie. Bei einer juristischen Person benötigen wir eine Kopie des Handelsregisterauszugs, aus welchem der wirtschaftlich Berechtigte hervorgeht. Das Geldwäschegesetz sieht vor, dass der Makler die Kopien bzw. Unterlagen fünf Jahre aufbewahren muss. Als unser Vertragspartner haben Sie auch eine Mitwirkungspflicht nach § 11 Abs. 6 GwG.
HAFTUNG: Wir weisen darauf hin, dass die von uns weitergegebenen Objektinformationen, Unterlagen, Pläne etc. vom Verkäufer bzw. Vermieter stammen. Eine Haftung für die Richtigkeit oder Vollständigkeit der Angaben übernehmen wir daher nicht. Es obliegt daher unseren Kunden, die darin enthaltenen Objektinformationen und Angaben auf ihre Richtigkeit hin zu überprüfen. Alle Immobilienangebote sind freibleibend und vorbehaltlich Irrtümer, Zwischenverkauf- und Vermietung oder sonstiger Zwischenverwertung.
UNSER SERVICE FÜR SIE ALS EIGENTÜMER:
Planen Sie den Verkauf oder die Vermietung Ihrer Immobilie, so ist es für Sie wichtig, deren Marktwert zu kennen. Lassen Sie kostenfrei und unverbindlich den aktuellen Wert Ihrer Immobilie professionell durch einen unserer Immobilienspezialisten einschätzen. Unser bundesweites und internationales Netzwerk ermöglicht es uns, Verkäufer bzw. Vermieter und Interessenten bestmöglich zusammenzuführen.
Grundriss
Erdgeschoss
>
>
Obergeschoss
>
>
Dachgeschoss
>
>
Kellergeschoss
>
>
Adresse
84503 Altötting
Interessante Orte
Preis- und Lageinformationen
Preistrend für Bestandsimmobilien in Altötting