Diese traumhafte, unter Denkmalschutz stehende Immobilie direkt an der Elbe wurde ca. 1875 erbaut und im Jahr 2010 vollständig kernsaniert. Auf insgesamt ca. 328 m² Wohnfläche, verteilt auf drei Ebenen (EG/OG/DG), findet man hier sowohl Modernität als auch historischen Charme. Die zusätzlichen Nutzflächen im Kellergeschoss sowie im Außenbereich runden das positive Gesamtbild dieses einzigartigen Hauses ab. Die Eigentümer führen in den Räumlichkeiten des Erdgeschosses aktuell eine renommierte Pension mit drei Doppelzimmern, die jeweils mit einem Bad ausgestattet sind. Die luxuriösen Wohnräume im Obergeschoss mit Balkon werden derzeit als Ferienwohnung angeboten. Die aktuell privat genutzte, stilvolle Wohnung im Dachgeschoss lässt keine Wünsche offen. Von der charmanten Küche und dem Arbeitszimmer mit Terrassenzugang über das erstklassige Masterbad, das elbseitige Schlafzimmer mit Ankleide bis hin zum großzügigen Wohnzimmer mit Essbereich genießen Sie hier höchsten Wohnkomfort. Das ca. 770 m² große Grundstück mit eigenem Weinberg sowie die zwei beschaulichen Terrassen sind zudem ideale Rückzugsorte für anspruchsvolle Familien.
Historisches Juwel mit eigenem Weinberg und Blick auf die Elbe
01662 Meißen
Die vollständige Adresse der Immobilie erhalten Sie vom Anbieter.
Auf Karte anzeigen
Die vollständige Adresse der Immobilie erhalten Sie vom Anbieter.
Finanzierungszertifikat
In nur zwei Minuten zu Ihrem persönlichen Finanzierungszertifkat.
Infos
| Etagenzahl | 3 |
|---|---|
| Wohnfläche ca. | 328 m2 |
| Grundstücksfläche | 770 m2 |
| Zimmer | 10 |
| Badezimmer | 5 |
| Garage/Stellplatz | Außenstellplatz |
| Anzahl Garage/Stellplatz | 4 |
Kosten
| Kaufpreis |
0 € |
|---|---|
| Provision |
3,57 % inkl. ges. MwSt. bezogen auf den Kaufpreis |
Finanzierungsrechner:
Kaufpreis:
600.000 €
Eigenkapital:
600.000 €
Monatliche Rate
0 €
Effektiver Jahreszins
0 %
Sollzinsbindung
10 Jahre
Bausubstanz & Energieausweis
| Baujahr | 1875 |
|---|---|
| Denkmalschutzobjekt | Ja |
| Objektzustand | Gepflegt |
| Heizungsart | Zentralheizung |
| Wesentliche Energieträger | Gas |
| Energieausweis | laut Gesetz nicht erforderlich |
Beschreibung des Objekts
Ausstattung
_ Baujahr: 1875 / Kernsanierung: 2010
_ Denkmalschutz
_ Wohnfläche: ca. 328 m²
_ Grundstücksgröße: ca. 770 m²
_ Wohnräume: 10
_ Badezimmer: 5
_ Küchen: 3
_ Haustür und Innentüren aus Echtholz
_ Historische, aufgearbeitete Steinböden im EG
_ Eichenparkettböden sowie stilvolle Sichtbetonböden im OG und DG
_ Drei Gästezimmer im EG, jeweils mit Bad inkl. Dusche, WC und Waschbecken
_ Tageslicht-Bad im OG, ausgestattet mit Dusche, WC und Waschbecken
_ Tageslicht-Masterbad im DG mit Eckbadewanne, Dusche, WC, und Waschbecken
_ Hochwertige Küchen im OG und DG, jeweils ausgestattet mit Backofen, ILVE-Gasherd, Spüle, Abzug, SMEG-Kühlschrank und Geschirrspüler
_ Balkon im OG mit direktem Blick auf die Elbe
_ Zwei beschauliche Terrassen mit Elbblick und Zugang zum eigenen Weinberg
_ Arbeitszimmer im DG mit direktem Terrassen-Zugang
_ Dachboden zur Unterbringung diverser Habseligkeiten
_ Kellerbereich (vollunterkellert) mit Frühstücksraum und Weinkeller
_ Energiesparende Hybrid-Zentralheizung (Gas/Holz)
_ Lagerräume im Außenbereich
_ Koi-Teich im Innenhof
Lage
Umgeben von beschaulichen Weinbergen befindet sich die zum Verkauf stehende Immobilie im Süden der Kreisstadt Meißen direkt an der Elbe, was einen einzigartigen Blick auf den Fluss und das Elbtal ermöglicht. Hier genießen Sie ein Höchstmaß an Lebensqualität und wohnen in einer der schönsten Regionen in ganz Sachsen. Das nahegelegene Zentrum von Meißen mit seinem historischen Marktplatz können Sie bequem mit dem Fahrrad oder Auto in wenigen Minuten erreichen. Vor Ort befinden sich attraktive Läden, gemütliche Cafés und Restaurants sowie Lebensmittelgeschäfte und Einrichtungen des täglichen Bedarfs. Ärztehäuser sowie das Elblandklinikum Meißen sind ebenfalls nur wenige Fahrminuten entfernt. Die Bereiche Kindergarten, Schule und Jugend sind gut abgedeckt und mit einem sich den aktuellen Entwicklungen anpassenden Kindergarten- und Grundschulangebot ist die Elementarerziehung in Meißen sichergestellt. Über ein komplettes Angebot an weiterführenden Schulen verfügt die Stadt ebenfalls. Durch den Flughafen Dresden International (ca. 30 Fahrminuten entfernt) sowie durch den Anschluss an das europäische Hochgeschwindigkeitsnetz der Deutschen Bahn ist man in Meißen zudem sehr gut angebunden.
Sonstige Angaben
Nähere Informationen zur Immobilie finden Sie in unserem ausführlichen Exposé, welches wir Ihnen gern auf Anfrage zusenden.
Alle Angaben beruhen auf Auskünften des Eigentümers bzw. Verkäufers. Wir können daher keine Gewähr für die Richtigkeit der Verkäuferangaben übernehmen. Sollten Sie Vorkenntnis über die hier angebotene Kaufgelegenheit haben, ist uns dies mitzuteilen.
DAHLER Dresden hat mit dem Eigentümer/Verkäufer dieser Immobilie einen Vertrag in gleicher Provisionshöhe abgeschlossen.
Bitte beachten Sie, dass eine Besichtigung erst nach einem persönlichen Gespräch und ausschließlich mit einer aktuellen Finanzierungsbestätigung möglich ist.
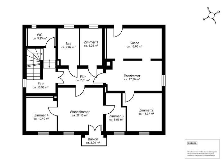
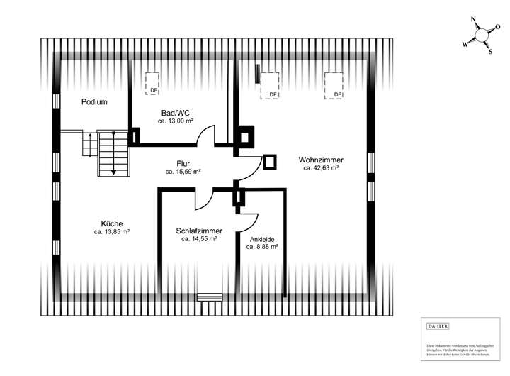
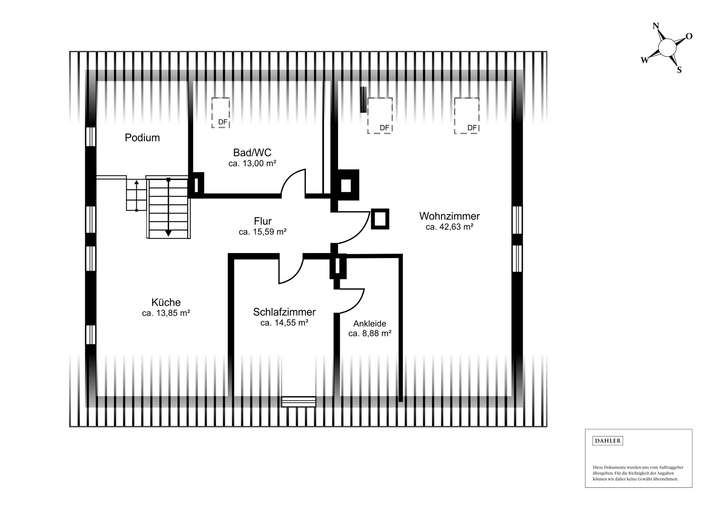
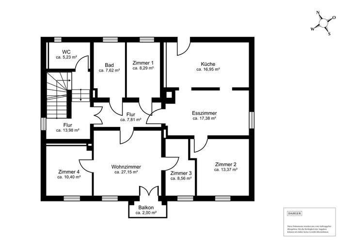
Grundriss
Grundriss Erdgeschoss
>
>
Grundriss Obergeschoss
>
>
Grundriss Dachgeschoss
>
>
Adresse
01662 Meißen
Interessante Orte
Preis- und Lageinformationen
Preistrend für Bestandsimmobilien in Meißen