Dieses charmante Mehrfamilienhaus befindet sich in Feldkirchen bei München, einem begehrten Vorort nahe der östlichen Stadtgrenze Münchens. Es liegt attraktiv inmitten Einfamilienhäusern und kleinen Wohnanlagen in ruhiger Lage. Insgesamt umfasst das Haus 6 Wohnungen, die alle vermietet sind. Das Grundstück ist ca. 958 m² groß und in idealer fußläufiger Nähe zur S-Bahn gelegen.
Im Vordergebäude befinden sich 2 geräumige 3-Zimmer-Wohnungen im Erdgeschoss und OG, eine dieser Wohnungen verfügt über eine Terrasse, eine über einen Balkon. Die Wohnung im Erdgeschoss wurde 1993 komplett saniert, die Wohnung in Obergeschoss 1999/2000 komplett renoviert. Das Dachgeschoss des Vordergebäudes wurde 1998 ausgebaut, es entstand die 3. Wohnung im Vorderhaus, eine neue 2-Zimmer-Wohnung.
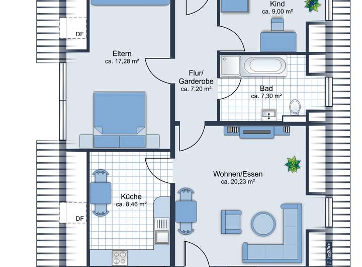
1996 wurde das Haus erweitert um das Rückgebäude, welches weitere drei Wohnungen in den entstandenen Etagen EG / OG und DG umfasst. Eine 3-Zimmer-Wohnung mit Terrasse und Garten sowie einem Hobbyraum (Zugang über eine Treppe vom Wohnzimmer) und einem zusätzlichen, abgeschlossenen Hobbyraum befindet sich im Erdgeschoss. Diese wurde 2015 sehr exklusiv renoviert. Eine 3-Zimmer-Wohnung mit Balkon befindet sich im Obergeschoss und eine 3-Zimmer-Wohnung mit Balkon im Dachgeschoss.
Den Mietern stehen 3 Einzelgaragen sowie 3 Stellplätze zur Verfügung, weiterhin Kellerräume/-abteile in Vorderhaus und Rückgebäude, im Rückgebäude ist zusätzlich ein Waschkeller für die Mieter dieses Hausteils vorhanden mit Plätzen für Waschmaschine und Trockner je Partei des RGB.
Ein großer gepflegter Garten mit Gartenhaus und alten Obstbäumen vervollständigen das Mehrfamilienhaus.
Die Immobilie ist in einem gepflegten Zustand und wurde von den Eigentümern stetig renoviert und instandgehalten.
Zum Schutz der Privatsphäre der Mieter können wir keine Fotos der Mietwohnungen zeigen.
Kontaktieren Sie uns über eine qualifizierte Anfrage für weitere Informationen oder einen Besichtigungstermin.
Mehrfamilienhaus mit 6 Wohnungen in guter Lage
85622 Feldkirchen
Die vollständige Adresse der Immobilie erhalten Sie vom Anbieter.
Auf Karte anzeigen
Die vollständige Adresse der Immobilie erhalten Sie vom Anbieter.
Finanzierungszertifikat
In nur zwei Minuten zu Ihrem persönlichen Finanzierungszertifkat.
Infos
| Haustyp | Mehrfamilienhaus |
|---|---|
| Wohnfläche ca. | 488 m2 |
| Nutzfläche | 145,98 m2 |
| Grundstücksfläche | 958 m2 |
| Zimmer | 18 |
| Garage/Stellplatz | Garage |
| Anzahl Garage/Stellplatz | 3 |
Kosten
| Kaufpreis |
2.250.000 € |
|---|---|
| Provision | Nein |
Finanzierungsrechner:
Kaufpreis:
600.000 €
Eigenkapital:
600.000 €
Monatliche Rate
0 €
Effektiver Jahreszins
0 %
Sollzinsbindung
10 Jahre
Bausubstanz & Energieausweis
| Baujahr | 1968 |
|---|---|
| Qualität der Austattung | Normal |
| Heizungsart | Zentralheizung |
| Wesentliche Energieträger | Gas |
| Energieausweis | liegt vor |
| Energieausweistyp | Verbrauchsausweis |
| Energieverbrauchskennwert | 93,3 kWh/(m²*a) |
Beschreibung des Objekts
Ausstattung
VGB: Baujahr 1903 / Anbau und Sanierung 1968 / Ausbau DG 1998
EG: 3-Zimmer-Wohnung mit Terrasse, komplett renoviert 1993
OG: 3-Zimmer-Wohnung mit Balkon, komplett renoviert 1999/2000
DG: 2-Zimmer-Wohnung, Ausbau 1998
RGB: Baujahr 1996
EG: 3-Zimmer-Wohnung mit Terrasse und Garten sowie 2 Hobbyräumen, exklusiv renoviert 2015
OG: 3-Zimmer-Wohnung mit Balkon
DG: 3-Zimmer-Wohnung mit Balkon
3 Einzelgaragen
3 Stellplätze
1 Gartenhaus
Energiedaten:
VGB / RGB Energieausweis Verbrauchsausweis
VGB / RGB Gültig bis 28.10.2031
VGB Energieeffizienzklasse E / RGB Energieeffizienzklasse C
VGB Endenergieverbrauch 141,4 kWh / RGB Endenergieverbrauch 93,3 kWh
VGB / RGB BJ Energieerzeuger 1989
Lage
Das Mehrfamilienhaus liegt in der modernen und aufstrebenden Gemeinde Feldkirchen bei München, etwa 1 km östlich der Landeshauptstadt. Feldkirchen bietet eine ausgezeichnete Infrastruktur: Einkaufsmöglichkeiten wie Edeka, Penny und REWE sind ebenso wie Ärzte, Bäckereien und weitere Geschäfte schnell erreichbar. Die Riem Arcaden sind per Auto in 7 Minuten, per Bus oder Fahrrad in 15 Minuten erreichbar.
Familienfreundlichkeit wird hier großgeschrieben: Kinderkrippen, Kindergärten und die Grundschule Feldkirchen befinden sich in direkter Nähe, ebenso Sporteinrichtungen und das Jugendzentrum „upstairs“. Weiterführende Schulen liegen in den Nachbargemeinden. Zahlreiche Restaurants, darunter ein griechischer Biergarten, ein bayerisches Lokal und das beliebte FLUGWERK mit eigener Brauerei, sorgen für das leibliche Wohl.
Für Freizeit und Erholung bieten der nahe Heimstettener See (ca. 850 m entfernt) mit Biergarten und Tischtennisplatten sowie der Roberto Beach mit Wassersportmöglichkeiten ideale Bedingungen.
Feldkirchen ist hervorragend an die S-Bahn S2 angebunden, die in ca. 20 Minuten den Münchner Marienplatz erreicht. Mehrere Buslinien und die Nähe zur Autobahn A94, A99 und zum Flughafen München (ca. 20 Minuten) runden die verkehrsgünstige Lage ab.
Sonstige Angaben
Alle Angaben sind freibleibend, unverbindlich, ohne Gewähr und basieren ausschließlich auf Informationen, die uns von unserem Auftraggeber mitgeteilt wurden. Wir übernehmen keine Gewähr für Vollständigkeit, Richtigkeit und Aktualität.
Grundriss
VGB EG
>
>
VGB OG
>
>
VGB DG
>
>
VGB UG
>
>
RGB EG
>
>
RGB OG
>
>
RGB DG
>
>
RGB UG
>
>
Adresse
85622 Feldkirchen
Interessante Orte
Preis- und Lageinformationen
Preistrend für Bestandsimmobilien in Feldkirchen