Großzügiges Einfamilienhaus mit hochwertiger Ausstattung, Terrasse & Swim-Spa in Bruchköbel
Dieses im Jahr 2003 erbaute Einfamilienhaus überzeugt durch seine großzügige Raumaufteilung und gehobene Ausstattung. Auf einer Wohnfläche von ca. 160 m² und einem Grundstück von 394 m² bietet die Immobilie viel Platz für Familie, Freizeit und Komfort.
Raumaufteilung:
Erdgeschoss: Offener Wohn- und Essbereich mit angrenzender Küche, Gäste-WC sowie ein weiteres Zimmer – ideal als Büro oder Spielzimmer für die kleinen.
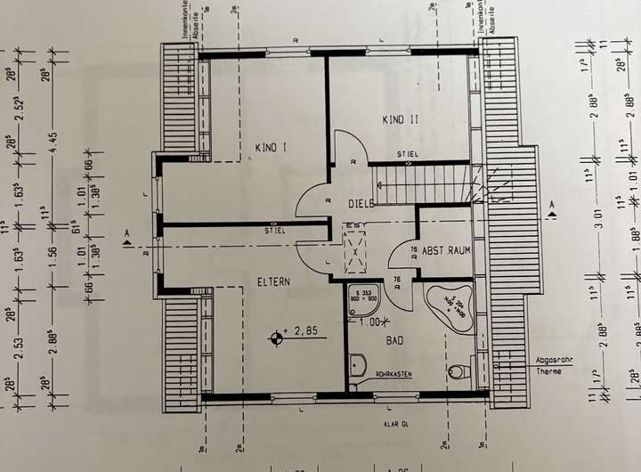
Obergeschoss: Drei helle Schlafzimmer, ein modernes Bad und ein praktischer Abstellraum.
Kellergeschoss: Voll unterkellert mit separatem Zugang, Waschküche mit Tageslichtbad, Vorratsraum sowie zwei ausgebaute Zimmer – vielseitig nutzbar, z. B. als Gäste-Hobby- oder Arbeitsräume.
Ausstattung & Highlights:
Klimaanlage in allen Wohnräumen
neu angelegter Außenbereich mit großer Terrasse
weitere überdachte Sitzfläche hinter der Garage
Swim-Spa für bis zu 8 Personen mit Gegenstromanlage
Neue Gasheizung (2024)
Enthärtungsanlage und Zisterne zur Gartenbewässerung und Toilettenspülung
Zwei Außenstellplätze vor der Garage
Garage mit zwischengang am Haus Zugang über Terrasse
XXL-Briefkasten
Das Haus ist ab dem 1. Oktober 2025 bezugsfrei und eignet sich perfekt für Familien, die ein modernes Zuhause mit Komfort und Wohlfühlatmosphäre suchen.
Einfamilienhaus mit 7 Zimmern und Garage in Bruchköbel
63486 Bruchköbel
Die vollständige Adresse der Immobilie erhalten Sie vom Anbieter.
Auf Karte anzeigen
Die vollständige Adresse der Immobilie erhalten Sie vom Anbieter.
Finanzierungszertifikat
In nur zwei Minuten zu Ihrem persönlichen Finanzierungszertifkat.
Infos
| Haustyp | Einfamilienhaus |
|---|---|
| Etagenzahl | 2 |
| Wohnfläche ca. | 160 m2 |
| Grundstücksfläche | 394 m2 |
| Bezugsfrei ab | 1.10.2025 |
| Zimmer | 7 |
| Schlafzimmer | 4 |
| Badezimmer | 3 |
| Garage/Stellplatz | Garage |
| Anzahl Garage/Stellplatz | 1 |
Kosten
| Kaufpreis |
890.000 € |
|---|---|
| Provision | Nein |
Finanzierungsrechner:
Kaufpreis:
600.000 €
Eigenkapital:
600.000 €
Monatliche Rate
0 €
Effektiver Jahreszins
0 %
Sollzinsbindung
10 Jahre
Bausubstanz & Energieausweis
| Baujahr | 2003 |
|---|---|
| Letzte Sanierung | 2024 |
| Bauphase | Haus fertig gestellt |
| Objektzustand | Neuwertig |
| Qualität der Austattung | Gehoben |
| Heizungsart | Gas-Heizung |
| Wesentliche Energieträger | Gas |
Beschreibung des Objekts
Lage
Bruchköbel, gelegen im Main-Kinzig-Kreis, bietet eine gute Infrastruktur mit Einkaufsmöglichkeiten für den täglichen Bedarf sowie Ärzten und Schulen. Die Anbindung an das öffentliche Verkehrsnetz ist gegeben, und die Autobahnen A45 und A66 sind schnell erreichbar, was Pendler schätzen. Die Umgebung lädt zu Freizeitaktivitäten im Grünen ein, mit Parks und Wäldern in der Nähe.
Grundriss
Erdgeschoss
>
>
tempImagewQ0UQg
>
>
Keller
>
>
Adresse
63486 Bruchköbel
Interessante Orte
Preis- und Lageinformationen
Preistrend für Bestandsimmobilien in Bruchköbel