In einer der begehrtesten Wohnlagen Lüneburgs, im grünen Stadtteil Wilschenbruch, befindet sich dieses großzügige Ein- bis Zweifamilienhaus aus dem Jahr 1954. Auf einem 1.107 m² großen Grundstück bietet es viel Platz für individuelle Wohnideen und verbindet modernen Wohnkomfort mit einer hervorragenden Lage. Aktuell wird das Haus als Zweifamilienhaus genutzt, kann jedoch ebenso ideal als großzügiges Einfamilienhaus bewohnt werden. Nach einer umfassenden Renovierung im Jahr 2018 präsentiert sich die Immobilie in einem modernen und sehr gepflegten Zustand, sodass ein sofortiger Einzug möglich ist.
Im Erdgeschoss bildet das große und lichtdurchflutete Wohn- und Esszimmer mit angrenzender Küche das besondere Herzstück. Von hier genießen Sie den direkten Blick in den Garten und auf den Pool. Zwei weitere Schlafräume sowie ein hochwertig modernisiertes Badezimmer runden das Raumangebot auf dieser Ebene ab. Große Fensterfronten sorgen dabei für eine helle und einladende Wohnatmosphäre.
Das Obergeschoss beherbergt eine eigenständige Wohnung, die viel Platz und einen hohen Wohnkomfort bietet. Vom Balkon aus hat man einen schönen Blick über den Garten. Die Wohnung umfasst eine gemütliche kleine Küche, ein großzügiges Wohnzimmer, ein separates Esszimmer, ein Schlafzimmer sowie eine charmante Bibliothek, die auch als Arbeits- oder Gästezimmer genutzt werden kann.
Im Souterrain befindet sich derzeit eine ausgebaute Ferienwohnung, die sich sowohl für Gäste als auch als zusätzliche Einnahmequelle eignet. Ergänzt wird dieser Bereich durch einen Keller, der reichlich Stauraum bietet.
Der Garten teilt sich in zwei charaktervolle Bereiche. Vorderseitig liegt der repräsentative Teil mit Pool, Terrasse und einem überdachten Outdoorküchenbereich, der perfekt für gesellige Stunden im Sommer geeignet ist. Hinter dem Haus erstreckt sich eine ruhige, grüne Gartenfläche, die zum Entspannen und Erholen einlädt.
Mit seiner exklusiven und dennoch ruhigen Lage im beliebten Wilschenbruch, der Nähe zur Innenstadt und der guten Anbindung an Einkaufsmöglichkeiten, Schulen, Kindergärten sowie Freizeitangebote bietet dieses Haus eine seltene Gelegenheit. Ob als großzügiges Einfamilienhaus, als Mehrgenerationenhaus oder mit zusätzlicher Vermietungsmöglichkeit – diese Immobilie vereint flexible Nutzungsmöglichkeiten, eine hochwertige Ausstattung und eine traumhafte Gartenanlage in einer der gefragtesten Wohngegenden Lüneburgs.
Weitere Informationen erhalten Sie gern telefonisch oder bei einer Besichtigung.
Charmantes Ein- bis Zweifamilienhaus in gefragter Lage von Lüneburg-Wilschenbruch
21337 Lüneburg
Die vollständige Adresse der Immobilie erhalten Sie vom Anbieter.
Auf Karte anzeigen
Die vollständige Adresse der Immobilie erhalten Sie vom Anbieter.
Finanzierungszertifikat
In nur zwei Minuten zu Ihrem persönlichen Finanzierungszertifkat.
Infos
| Haustyp | Einfamilienhaus |
|---|---|
| Wohnfläche ca. | 226 m2 |
| Grundstücksfläche | 1.107 m2 |
| Zimmer | 8 |
| Garage/Stellplatz | Garage |
| Anzahl Garage/Stellplatz | 1 |
Kosten
| Kaufpreis |
829.000 € |
|---|---|
| Provision |
3,57 % inkl. MwSt. |
Finanzierungsrechner:
Kaufpreis:
600.000 €
Eigenkapital:
600.000 €
Monatliche Rate
0 €
Effektiver Jahreszins
0 %
Sollzinsbindung
10 Jahre
Bausubstanz & Energieausweis
| Baujahr | 1954 |
|---|---|
| Objektzustand | Renovierungsbedürftig |
| Heizungsart | Gas-Heizung |
| Wesentliche Energieträger | Gas |
| Energieausweis | liegt vor |
| Energieausweistyp | Bedarfsausweis |
| Energieverbrauchskennwert | 240,8 kWh/(m²*a) |
| Energieeffizienzklasse | G |
240,8
kWh/(m²*a)
Energieeffizienzklasse G
- A+
- A
- B
- C
- D
- E
- F
- G
- H
- 0
- 25
- 50
- 75
- 100
- 125
- 150
- 175
- 200
- 225
- >250
Beschreibung des Objekts
Lage
Lüneburg mit seinen beinahe 80 000 Einwohnern überzeugt vor allem durch eine sehr hohe Lebensqualität und sein wunderschönes historisches Stadtbild. Deshalb haben in den vergangenen Jahren auch immer mehr Pendler die „kleine“ Hansestadt als Wohnort für sich entdeckt. Zudem ist die große Hanse-Schwester Hamburg mit öffentlichen Verkehrsmitteln und über verschiedene Autobahnen gut und schnell zu erreichen. Die Bevölkerung der Hansestadt ist in den letzten Jahren stetig gestiegen. Lüneburg zählt heute zu den schnell wachsenden Städten in Deutschland. Dazu beigetragen hat auch die expandierende Universität Lüneburg.
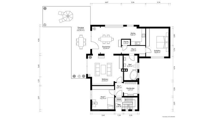
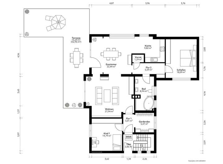
Grundriss
Grundriss EG
>
>
Grundriss DG
>
>
Adresse
21337 Lüneburg
Interessante Orte
Preis- und Lageinformationen
Preistrend für Bestandsimmobilien in Lüneburg