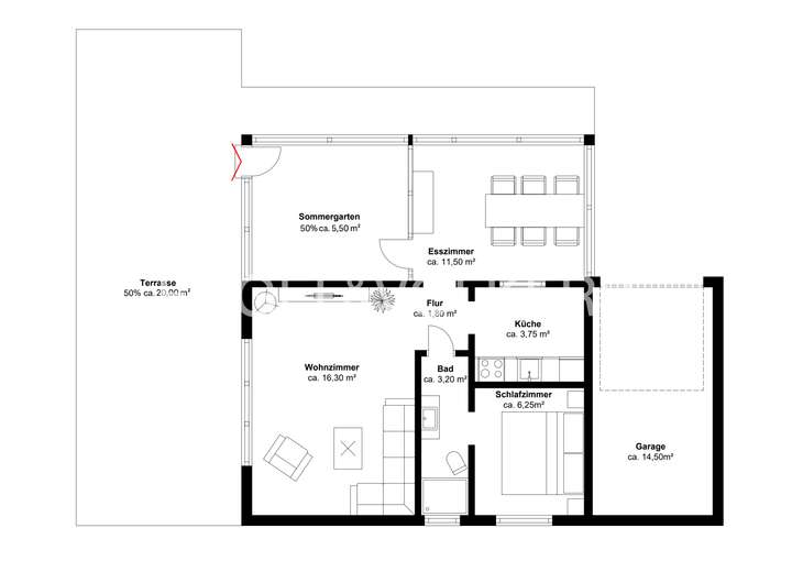
Dieser sehr gepflegte Bungalow mit einer Wohnfläche von ca. 68 m² befindet sich in bevorzugter und ruhiger Lage im beliebten Küstenort Loissin, weniger als 100 Meter vom Sandstrand entfernt. Die Nähe zur Ostsee macht das Haus zu einer idealen Ferienimmobilie, einem Wochenenddomizil oder einem Rückzugsort für Naturliebhaber. Selbstverständlich sind eine ganzjährige Nutzung, eine externe Vermietung sowie die Nutzung als Erst- oder Zweitwohnsitz gestattet. Bisher wurde die Immobilie zur Vermietung an Feriengäste und für die eigene Familie genutzt. Das im Jahr 1978 erbaute Haus steht auf einem ca. 300 m² großen Grundstück. Betritt man das Haus, gelangt man zunächst in den hellen Sommergarten und das daran anschließende Esszimmer. Die beiden lichtdurchfluteten Räume schaffen durch ihre Fensterfronten eine harmonische Verbindung zwischen Innen- und Außenbereich. Neben dem Esszimmer befinden sich eine voll ausgestattete Küche, ein gemütliches Wohnzimmer mit Blick ins Grüne und einem Kamin, ein geräumiges Schlafzimmer und ein gepflegtes Badezimmer mit Dusche. Im Badezimmer ist eine elektrische Fußbodenheizung verbaut. Alle Räume wurden mit Liebe zum Detail gestaltet und spiegeln den maritimen Stil wider. Glasfaser liegt bereits im Haus an. Das Mobiliar ist im Kaufpreis enthalten. Der pflegeleicht angelegte Garten bietet viele individuelle Gestaltungsmöglichkeiten. Die nach Süden ausgerichtete Terrasse eignet sich hervorragend für entspannte Stunden im Freien. Zum Grundstück gehören außerdem zwei praktische Schuppen, die zusätzlichen Stauraum bieten. Zudem gibt es eine Garage, die bereits mit einer modernen Wallbox ausgestattet ist. Nutzen Sie diese einmalige Gelegenheit und verwirklichen Sie Ihren Traum vom Wohnen am Wasser!
Das Leben genießen: Top-Bungalow in Strandnähe
17509 Loissin
Die vollständige Adresse der Immobilie erhalten Sie vom Anbieter.
Auf Karte anzeigen
Die vollständige Adresse der Immobilie erhalten Sie vom Anbieter.
Finanzierungszertifikat
In nur zwei Minuten zu Ihrem persönlichen Finanzierungszertifkat.
Infos
| Haustyp | Bungalow |
|---|---|
| Wohnfläche ca. | 68 m2 |
| Nutzfläche | 27 m2 |
| Grundstücksfläche | 300 m2 |
| Bezugsfrei ab | sofort verfügbar |
| Zimmer | 3 |
| Schlafzimmer | 1 |
| Badezimmer | 1 |
| Anzahl Garage/Stellplatz | 2 |
Kosten
| Kaufpreis |
245.000 € |
|---|---|
| Provision |
3.57 % inkl. gesetzl. MwSt. |
Finanzierungsrechner:
Kaufpreis:
600.000 €
Eigenkapital:
600.000 €
Monatliche Rate
0 €
Effektiver Jahreszins
0 %
Sollzinsbindung
10 Jahre
Bausubstanz & Energieausweis
| Baujahr | 1978 |
|---|---|
| Letzte Sanierung | 2020 |
| Objektzustand | Neuwertig |
| Heizungsart | Ofenheizung |
| Wesentliche Energieträger | Strom |
| Energieausweis | liegt vor |
| Energieausweistyp | Verbrauchsausweis |
| Energieverbrauchskennwert | 31,2 kWh/(m²*a) |
| Energieeffizienzklasse | A |
31,2
kWh/(m²*a)
Energieeffizienzklasse A
- A+
- A
- B
- C
- D
- E
- F
- G
- H
- 0
- 25
- 50
- 75
- 100
- 125
- 150
- 175
- 200
- 225
- >250
Beschreibung des Objekts
Ausstattung
Einbauküche
Blick ins Grüne
Laminat
Fliesen
Fußbodenheizung
Kamin
Lage
Diese reizvolle Immobilie liegt in einer ruhigen Bungalowsiedlung, nur einen Katzensprung vom Ufer des Greifswalder Boddens entfernt, und gehört zur etwa zwei Kilometer entfernten Gemeinde Loissin. Der nahe gelegene Naturstrand ist ein beliebter Treffpunkt für Erholungssuchende und Einheimische. An sonnigen Tagen spenden die Kiefern des Küstenwaldes angenehmen Schatten, während Sie den atemberaubenden Blick über den Bodden genießen. Dieser Küstenabschnitt mit seinem flachen Wasser in der Dänischen Wiek und dem Greifswalder Bodden bietet ideale Bedingungen für begeisterte Kite- und Surfer. Zahlreiche attraktive Ausflugsziele lassen sich bequem auf der verkehrsberuhigten Straße und dem direkt daran anschließenden Ostseeküsten-Radweg mit dem Fahrrad erkunden. Die nächst größere Ortschaft Lubmin mit einer ausgezeichneten Infrastruktur, die unter anderem Kindergärten, Schulen, Ärzte und vielfältige Einkaufsmöglichkeiten umfasst, ist mit dem Auto in nur etwa 15 Minuten erreichbar. Das Seebad Lubmin, ein beliebter Ferien- und Badeort, lockt zudem mit einer guten Auswahl an Restaurants. Loissin liegt nicht weit von der Hansestadt Greifswald entfernt und ist mit dem Auto in etwa 20 Minuten erreichbar. Der Greifswalder Hauptbahnhof mit ICE-Anschluss sowie die ca. 40 km entfernte Autobahn A20 gewährleisten eine optimale Anbindung an den überregionalen Verkehr.
Sonstige Angaben
Der Makler-Vertrag mit uns und/oder unserem Beauftragten kommt durch die Bestätigung der Inanspruchnahme unserer Maklertätigkeit in Textform zustande, wie z.B. insbesondere die Unterschrift des Suchkundenvertrages und/oder des Objekt-Exposés. Die Höhe der Courtage richtet sich nach den ab dem 23.12.2020 in Kraft getretenen gesetzlichen Regelungen zur Teilung der Maklercourtage. Hiernach wird die Courtage regelmäßig für beide Parteien (Eigentümer:in und Käufer:in) in Höhe von 3 % zuzüglich Umsatzsteuer in jeweils geltender Höhe, derzeit also insgesamt 3,57 % des Kaufpreises einschließlich Umsatzsteuer bei notariellem Vertragsabschluss verdient und fällig. Die Höhe der Bruttocourtage unterliegt einer Anpassung bei Steuersatzänderung. Grunderwerbssteuer, Notar- und Gerichtskosten trägt der Käufer:in.
Grundriss
e528e47b-9f41-4936-8125-8665f6
>
>
Adresse
17509 Loissin
Interessante Orte
Preis- und Lageinformationen
Preistrend für Bestandsimmobilien in Loissin