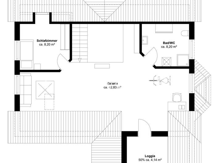
Dieses gepflegte Einfamilienhaus aus dem Jahr 1996 bietet auf ca. 172m² Wohnfläche und einem ca. 3.192 m² großen Grundstück ein komfortables und idyllisches Wohnambiente. Im Erdgeschoss empfängt Sie eine großzügige und helle Diele, von der aus Sie alle Räumlichkeiten erreichen können. Von der Küche aus gelangen Sie über den Essbereich in das helle Wohnzimmer, das durch einen attraktiven Erker besticht. Vom Wohnzimmer aus treten Sie direkt auf die Terrasse, die zum Entspannen im Freien einlädt. Im Erdgeschoss befinden sich außerdem zwei Schlafzimmer und ein Badezimmer mit Wanne. Über die Treppe in der Diele erreichen Sie die weitläufige Galerie im Dachgeschoss, die vielfältige Gestaltungsmöglichkeiten bietet. Hier finden Sie ein weiteres Zimmer und ein Badezimmer. Von der Galerie aus gelangen Sie auf die Loggia, von der aus Sie eine schöne Aussicht auf die Boddenlandschaft haben. Sowohl die Loggia als auch die Terrasse sind nach Süden ausgerichtet und garantieren somit viele Sonnenstunden. Das Haus verfügt über doppelt verglaste Holzfenster, die im Jahr 2017 mit Aluminium verkleidet wurden. Der großzügige Dachboden dient als zusätzlicher praktischer Stauraum. Auf dem Grundstück stehen eine Garage und ein Carport mit jeweils zwei PKW-Stellplätzen zur Verfügung. Eine massive und überdachte Grillterrasse lädt zu geselligen Abenden ein. Auf dem Garagendach befindet sich eine Photovoltaikanlage mit 9,75 kWp, die gemäß Vergütungsvertrag jährliche Einnahmen von ca. 700 € generiert. Besonders hervorzuheben sind die Wallbox im Carport und der Glasfaseranschluss im Haus, welche die moderne Ausstattung unterstreichen. Im Jahr 2021 wurde eine neue Heiztherme installiert, der Gastank ist erdverbaut. Genießen Sie die Ruhe und Idylle, umgeben von viel Natur, und den herrlichen Blick auf den Greifswalder Bodden.
Familientraum auf idyllischem Grundstück mit Boddenblick und vielen Annehmlichkeiten
17509 Loissin
Die vollständige Adresse der Immobilie erhalten Sie vom Anbieter.
Auf Karte anzeigen
Die vollständige Adresse der Immobilie erhalten Sie vom Anbieter.
Finanzierungszertifikat
In nur zwei Minuten zu Ihrem persönlichen Finanzierungszertifkat.
Infos
| Haustyp | Einfamilienhaus |
|---|---|
| Wohnfläche ca. | 172 m2 |
| Grundstücksfläche | 3.192 m2 |
| Zimmer | 4 |
| Schlafzimmer | 3 |
| Badezimmer | 2 |
| Anzahl Garage/Stellplatz | 6 |
Kosten
| Kaufpreis |
495.000 € |
|---|---|
| Provision |
3.57 % inkl. gesetzl. MwSt. |
Finanzierungsrechner:
Kaufpreis:
600.000 €
Eigenkapital:
600.000 €
Monatliche Rate
0 €
Effektiver Jahreszins
0 %
Sollzinsbindung
10 Jahre
Bausubstanz & Energieausweis
| Baujahr | 1996 |
|---|---|
| Letzte Sanierung | 2021 |
| Objektzustand | Gepflegt |
| Heizungsart | Zentralheizung |
| Wesentliche Energieträger | Gas, Strom |
| Energieausweis | liegt vor |
| Energieausweistyp | Verbrauchsausweis |
| Energieverbrauchskennwert | 75,5 kWh/(m²*a) |
| Energieeffizienzklasse | C |
75,5
kWh/(m²*a)
Energieeffizienzklasse C
- A+
- A
- B
- C
- D
- E
- F
- G
- H
- 0
- 25
- 50
- 75
- 100
- 125
- 150
- 175
- 200
- 225
- >250
Beschreibung des Objekts
Ausstattung
Einbauküche
Grillplatz
Blick ins Grüne
unverbaut
Wasserblick
Fliesen
Teppich
Laminat
Parkett
Lage
Tauchen Sie ein in die malerische Idylle Ludwigsburgs, einem charmanten Ortsteil der Gemeinde Loissin in Mecklenburg-Vorpommern. Dieses verträumte Dorf besticht durch sein historisches, weitgehend original erhaltenes Schloss und die beeindruckende Gutshofanlage, die es zu einem besonderen Ausflugsziel machen. Das hier angebotene Einfamilienhaus befindet sich in ruhiger Randlage der Ortschaft und ist lediglich ca.1,8 km vom Strandbad entfernt. Der Ludwigsburger Strand ist ein beliebter Anlaufpunkt für Urlauber und Einheimische. An warmen Sommertagen spenden die Kiefern des Küstenwaldes angenehmen Schatten, während Sie den herrlichen Blick über den Bodden genießen. Für begeisterte Kite- und Surfer bietet der Strand mit dem flachen Wasser der Dänischen Wiek und des Greifswalder Boddens optimale Bedingungen. Zahlreiche Ausflugsziele lassen sich bequem über die verkehrsberuhigte Straße und den hier verlaufenden Ostseeküsten-Radweg mit dem Fahrrad erkunden. Den nächstgrößeren Ort Lubmin und erreichen Sie mit dem Auto in nur ca. 15 Minuten. Dort finden Sie eine hervorragende Infrastruktur mit Kindergärten, Schulen, Ärzten und vielfältigen Einkaufsmöglichkeiten. Das Seebad Lubmin ist zudem als bekannter Ferien- und Badeort bekannt und lockt mit einer Auswahl an Restaurants. Ludwigsburg ist auch hervorragend an die Hansestadt Greifswald angebunden. Die Innenstadt erreichen Sie mit dem Auto in etwa 20 Minuten. Eine optimale Anbindung an den überregionalen Verkehr gewährleisten der Greifswalder Hauptbahnhof mit ICE-Anschluss sowie die Autobahn A20, die ca. 40 km von Ludwigsburg entfernt liegt.
Sonstige Angaben
Der Makler-Vertrag mit uns und/oder unserem Beauftragten kommt durch die Bestätigung der Inanspruchnahme unserer Maklertätigkeit in Textform zustande, wie z.B. insbesondere die Unterschrift des Suchkundenvertrages und/oder des Objekt-Exposés. Die Höhe der Courtage richtet sich nach den ab dem 23.12.2020 in Kraft getretenen gesetzlichen Regelungen zur Teilung der Maklercourtage. Hiernach wird die Courtage regelmäßig für beide Parteien (Eigentümer:in und Käufer:in) in Höhe von 3 % zuzüglich Umsatzsteuer in jeweils geltender Höhe, derzeit also insgesamt 3,57 % des Kaufpreises einschließlich Umsatzsteuer bei notariellem Vertragsabschluss verdient und fällig. Die Höhe der Bruttocourtage unterliegt einer Anpassung bei Steuersatzänderung. Grunderwerbssteuer, Notar- und Gerichtskosten trägt der Käufer:in.
Grundriss
Erdgeschoss
>
>
Dachgeschoss
>
>
Adresse
17509 Loissin
Interessante Orte
Preis- und Lageinformationen
Preistrend für Bestandsimmobilien in Loissin