Nur wenige Schritte von der Nordsee und direkt am Kurpark gelegen, empfängt Sie dieses großzügige Zuhause auf einem ca. 731 m² großen Grundstück – ein Wohlfühlort, der Raum, Ruhe und beste Lage harmonisch verbindet. Das Wohnhaus (Baujahr ca. 1966, Erweiterung ca. 1987) bietet rund 185 m² Wohnfläche* mit einem Keller und präsentiert sich in einem teils modernisierten Zustand.
Im Erdgeschoss entfaltet sich der Platz des Hauses – ein Windfang mit Garderobe und einem Duschbad, eine moderne Küche mit Kochinsel und edler Granitarbeitsplatte, mit direktem Zugang auf die überdachte Terrasse. Über das Wohnzimmer verlängert sich der Wohnraum zum Esszimmer und weiter ins gemütliche Kaminzimmer – perfekt für lange Abende am Feuer. Ergänzt wird die Ebene durch ein Gästezimmer, sowie den Hauswirtschaftsraum.
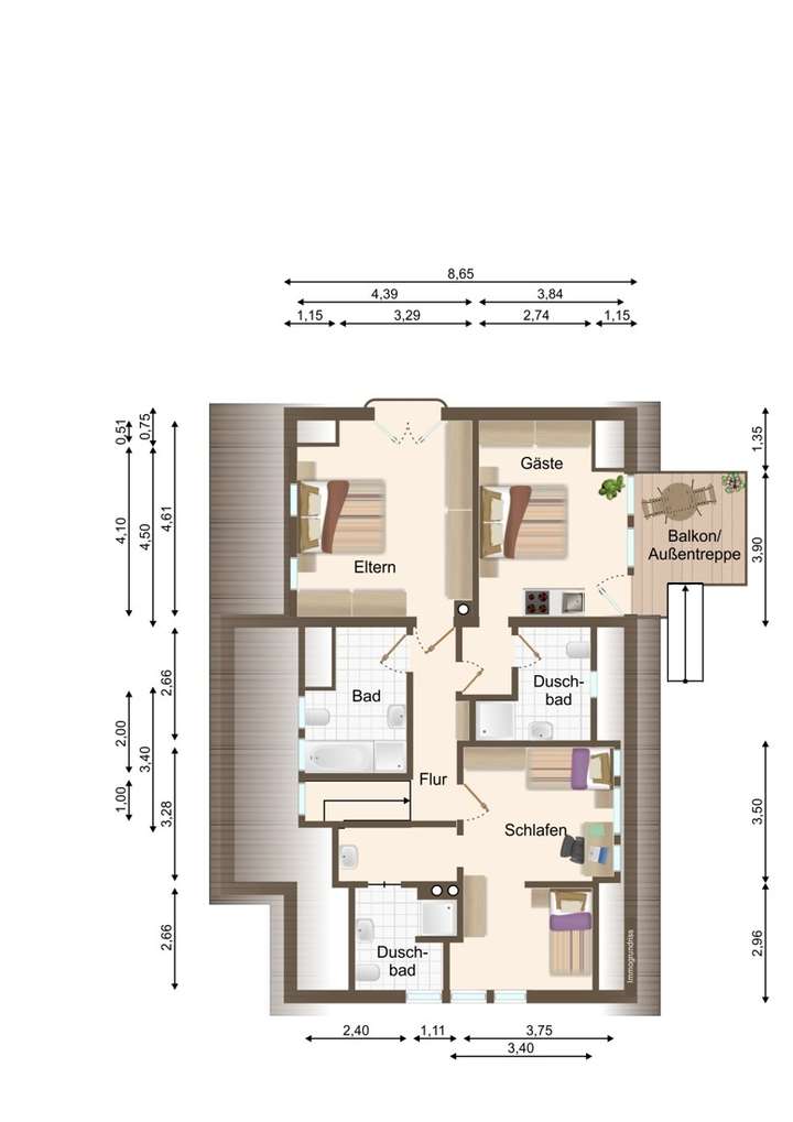
Im Dachgeschoss erwarten Sie zwei Schlafzimmer, eines davon mit eigenem Duschbad. Ein weiteres Gästezimmer mit Pantryküche verfügt über den Zugang auf den Balkon und ebenfalls über ein angrenzendes Duschbad – ideal für Besucher, heranwachsende Kinder oder als ruhige Homeoffice-Suite. Ein komfortables Vollbad rundet die Ebene ab. Praktisch: Der gedämmte Dachboden schafft zusätzlichen Stauraum und hält die Wohnbereiche frei.
Der Außenbereich ist ein echtes Plus: Die überdachte Terrasse wird zum zweiten Wohnzimmer in der warmen Jahreszeit, der Garten lädt zum Entspannen ein. Ein Gartenhaus mit kleiner Sauna sorgt für private Wellnessmomente, der Geräteschuppen für Ordnung. Zwei Kfz-Stellplätze im Freien sowie eine Garage bieten bequem Platz für Fahrzeuge und Freizeitutensilien.
In den vergangenen Jahren wurden sinnvolle Modernisierungen umgesetzt – u. a. teilweise neue Böden, Erneuerungen in der Elektrik, teilweise Fenster sowie die hochwertige Einbauküche. Die Immobilie steht auf einem Grundstück mit Erbbaurecht (ca. 475 € / Quartal).
Kurz: ein großzügiges, stilsicheres Zuhause in Toplage – nur wenige Meter zur Nordsee, direkt am Kurpark. Wer Wert auf Atmosphäre, Platz und eine Lage mit Seltenheitswert legt, wird sich hier auf Anhieb zuhause fühlen. Gerne lassen wir Ihnen weitere Details zukommen oder vereinbaren einen Besichtigungstermin.
nah am Meer: großes Wohnhaus mit Kaminzimmer, Garage & Garten
25761 Büsum
Die vollständige Adresse der Immobilie erhalten Sie vom Anbieter.
Auf Karte anzeigen
Die vollständige Adresse der Immobilie erhalten Sie vom Anbieter.
Finanzierungszertifikat
In nur zwei Minuten zu Ihrem persönlichen Finanzierungszertifkat.
Infos
| Haustyp | Einfamilienhaus |
|---|---|
| Wohnfläche ca. | 185 m2 |
| Grundstücksfläche | 731 m2 |
| Bezugsfrei ab | sofort |
| Zimmer | 7 |
| Schlafzimmer | 4 |
| Badezimmer | 4 |
Kosten
| Kaufpreis |
339.000 € |
|---|---|
| Provision |
2,38 % inkl. MwSt. |
Finanzierungsrechner:
Kaufpreis:
600.000 €
Eigenkapital:
600.000 €
Monatliche Rate
0 €
Effektiver Jahreszins
0 %
Sollzinsbindung
10 Jahre
Bausubstanz & Energieausweis
| Baujahr | 1966 |
|---|---|
| Objektzustand | Modernisiert |
| Qualität der Austattung | Normal |
| Heizungsart | Zentralheizung |
| Wesentliche Energieträger | Gas |
| Energieausweis | liegt vor |
| Energieausweistyp | Bedarfsausweis |
| Energieverbrauchskennwert | 108,6 kWh/(m²*a) |
| Energieeffizienzklasse | D |
108,6
kWh/(m²*a)
Energieeffizienzklasse D
- A+
- A
- B
- C
- D
- E
- F
- G
- H
- 0
- 25
- 50
- 75
- 100
- 125
- 150
- 175
- 200
- 225
- >250
Beschreibung des Objekts
Ausstattung
Sehr gute, ruhige Lage: nur wenige Meter zur Nordsee, direkt am Kurpark
Grundstück: ca. 731 m²
Wohnfläche: ca. 185 m²*
Baujahr ca. 1966, Erweiterung ca. 1987
unterkellert
Windfang mit Garderobe
Duschbad
Gästezimmer
Hauswirtschaftsraum
Moderne Küche mit Kochinsel & Granitarbeitsplatte, direkter Zugang zur überdachten Terrasse
Esszimmer und Wohnzimmer
Kaminzimmer, ebenfalls mit Terrassenzugang
2 Schlafzimmer (davon eines mit en-suite Duschbad)
Gästezimmer mit Pantryküche, Balkonzugang und angrenzendem Duschbad
Zusätzliches Vollbad
Gedämmter Dachboden (praktischer Stauraum)
Überdachte Terrasse
Gartenhaus mit kleiner Sauna
Geräteschuppen
Gepflegter Garten
Garage
2 Kfz-Stellplätze im Freien
Modernisierungen (Auszug)
Teilweise neue Bodenbeläge
Teilweise erneuerte Elektrik
Teilweise Fenster erneuert
Einbau einer hochwertigen, modernen Küche
Lage
Durch die gute Lage nur wenige Gehminuten vom Zentrum des Ortes, der Familienlagune und dem Hafen entfernt. Die Nordsee ist nur wenige Meter entfernt.
Direkt an der Nordsee liegt das 4.900 Einwohner zählende Nordseeheilbad Büsum. Nur 70 Autominuten von Hamburg entfernt (Autobahnabfahrt Heide/Büsum). Büsum hat eine gute Infrastruktur mit allen Einkaufsmöglichkeiten des täglichen Lebens, Geschäften, Ärzten, Restaurants sowie eine Bahnverbindung im Stundentakt nach Heide, Hamburg - Westerland und eine Fährverbindung nach Helgoland. Der nahe Strand, das Meerwasserschwimmbad, diverse Sportarten, wie Schwimmen, Radfahren, Reiten, Segeln und Golfspielen laden zum Verweilen ein.
Sonstige Angaben
Die Besichtigung ist jederzeit möglich, jedoch nach vorheriger Terminabsprache! Bitte wahren Sie die Diskretion und sehen Sie vom Betreten des Grundstücks ohne Begleitung des Immobilienberaters ab. Sämtliche Unterlagen und Angaben wurden uns vom Auftraggeber übergeben / mitgeteilt. Für die Richtigkeit dieser Angaben können wir daher keine Gewähr übernehmen. Irrtum und Zwischenverkauf vorbehalten.
Es gelten die Allgemeinen Geschäftsbedingungen.
Finanzierung: Sie haben noch keine Finanzierung? Sprechen Sie uns an wir vermitteln Ihnen gern einen kompetenten Ansprechpartner, der für Sie ein unverbindliches Angebot ausarbeitet.
Bitte haben Sie Verständnis dafür, dass wir nur die E-Mails beantworten, in denen die vollständige Anschrift sowie die Telefonnummer des Absenders angegeben wird.
Weitere Objekte finden Sie auf unserer Homepage www.werth-immobilien.de
HINWEIS*:
Die Angaben Wohn- und Nutzfläche: Eine Überprüfung der Flächen und eine Berechnung nach WoFlV hat nicht stattgefunden. Die Maße beziehen sich auf die Grundflächen.
Die Grundrisse im Exposé dienen zur Orientierung. Die Maße, die Darstellung des Inventars und die Raumaufteilungen können ggf. vom Ist-Zustand abweichen.
Grundriss
EG
>
>
DG
>
>
Adresse
25761 Büsum
Interessante Orte
Preis- und Lageinformationen
Preistrend für Bestandsimmobilien in Büsum