Dieses außergewöhnliche Anwesen vereint großzügiges Wohnen, Privatsphäre und attraktive Ertragsmöglichkeiten. Auf einem ca. 1.900 m² großen Grundstück erwarten Sie ein modernes Einfamilienhaus, ein stilvolles Dreifamilienhaus, ein weitläufiger Garten mit Pool sowie ein Poolhaus. Alle Wohneinheiten befinden sich in einem neuwertigen Zustand und sind sofort bezugsbereit.
Die Immobilie eignet sich ideal für Mehrgenerationenwohnen mit ausreichend Rückzugsmöglichkeiten – oder für Eigennutzer, die gleichzeitig von soliden Mieteinnahmen profitieren möchten.
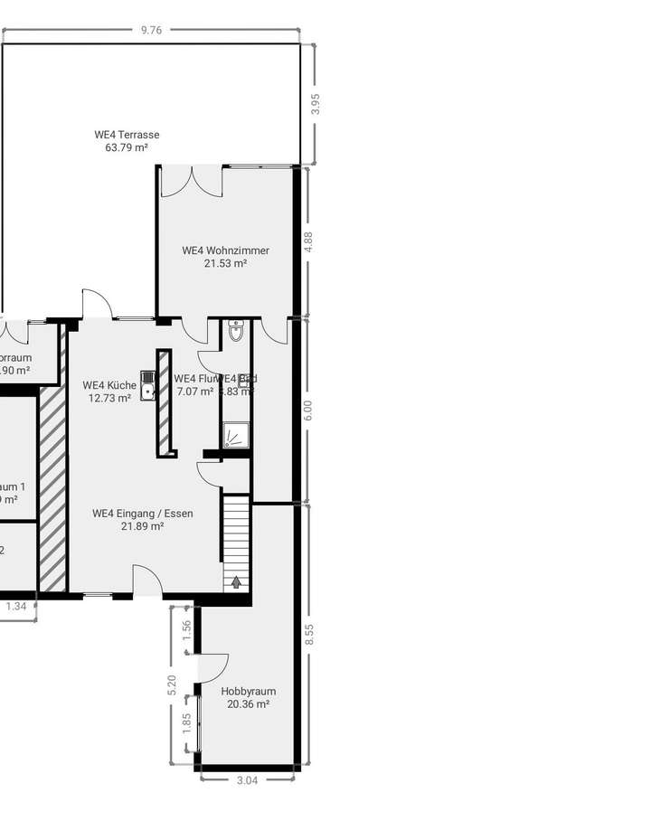
Das Einfamilienhaus (ca. 132 m² Wohnfläche + Anbau):
Das Einfamilienhaus besticht durch eine moderne Architektur, helle Räume und direkten Zugang zum Garten.
Erdgeschoss:
Offener Essbereich mit Zugang zur modernen Küche
Heller Wohnbereich mit großer Glasfront und Terrassenzugang
Gäste-WC mit Dusche
Obergeschoss:
Großzügiges Badezimmer mit Dusche und Badewanne
Zwei Schlafzimmer
Dachgeschoss:
Großes Studio mit eigenem Badezimmer
Anbau:
Separater Hobbybereich, aktuell als Fitnessstudio genutzt
Der direkte Zugang in den großzügigen Garten mit Pool macht dieses Haus zum Mittelpunkt des Familienlebens.
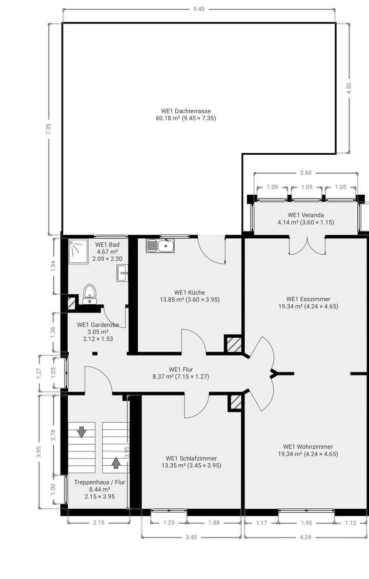
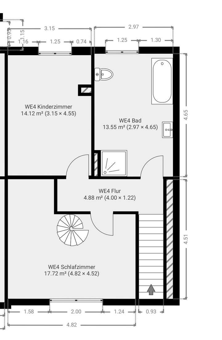
Das Dreifamilienhaus (insgesamt ca. 242 m² Wohnfläche):
1. Obergeschoss (ca. 99,58 m²):
Großzügiger Wohn-Essbereich (ca. 40 m²), modern gestaltet
Ein Schlafzimmer
Küche
Neuwertiges Badezimmer
Dachterrasse (ca. 60 m², 25 % in WF berücksichtigt)
2. Obergeschoss (ca. 86 m²):
Wohnbereich
Zwei Schlafzimmer
Küche
Badezimmer
Kleine verglaste Veranda
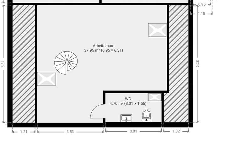
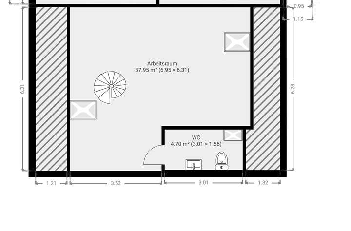
Dachgeschoss (ca. 56 m²):
Offener Wohnbereich mit freigelegten Holzbalken
Küche
Ein Schlafzimmer
Neuwertiges Badezimmer
Alle Wohnungen sind stilvoll, lichtdurchflutet und hochwertig ausgestattet – ideal zur Eigennutzung oder Vermietung.
Zusätzliche Highlights
- Gartenbereich: Weitläufig angelegt mit Swimmingpool
- Poolhaus: Separates 2-Zimmer-Haus mit eigenem Badezimmer – vielseitig nutzbar (z. B. Gästehaus, Büro oder Freizeitbereich)
- Carport: 5 überdachte Stellplätze
- mehrere Gartenhäuser
- das gesamte Anwesen ist eingezäunt
Exklusives Anwesen mit Einfamilienhaus & Dreifamilienhaus auf 1.900 m² Grundstück
75175 Pforzheim
Die vollständige Adresse der Immobilie erhalten Sie vom Anbieter.
Auf Karte anzeigen
Die vollständige Adresse der Immobilie erhalten Sie vom Anbieter.
Finanzierungszertifikat
In nur zwei Minuten zu Ihrem persönlichen Finanzierungszertifkat.
Infos
| Haustyp | Mehrfamilienhaus |
|---|---|
| Wohnfläche ca. | 377 m2 |
| Nutzfläche | 247 m2 |
| Grundstücksfläche | 1.904 m2 |
| Bezugsfrei ab | sofort |
| Zimmer | 13 |
| Schlafzimmer | 7 |
| Badezimmer | 6 |
| Garage/Stellplatz | Carport |
| Anzahl Garage/Stellplatz | 5 |
Kosten
| Kaufpreis |
1.195.000 € |
|---|---|
| Provision |
3,57% inkl. MwSt. |
Finanzierungsrechner:
Kaufpreis:
600.000 €
Eigenkapital:
600.000 €
Monatliche Rate
0 €
Effektiver Jahreszins
0 %
Sollzinsbindung
10 Jahre
Bausubstanz & Energieausweis
| Baujahr | 1948 |
|---|---|
| Bauphase | Haus fertig gestellt |
| Objektzustand | Neuwertig |
| Qualität der Austattung | Gehoben |
| Heizungsart | Fernwärme |
| Wesentliche Energieträger | Fernwärme |
| Energieausweis | liegt vor |
| Energieverbrauchskennwert | 164,3 kWh/(m²*a) |
Beschreibung des Objekts
Ausstattung
Mehrfamilienhaus (MFH)
Letzte umfangreiche Sanierung: 2023
Dach neu eingedeckt mit Betonziegel – 2000
Wärmedämmung Dach, Steinwolle – 2000
Wasserrohre Kupfer – 1995
Heizungsrohre Kupfer – 1995
Sprossenfenster Straßenseite – 2004
Sprossenfenster Gartenseite – 2008
Sprossenfenster Treppenhaus – 2008
Terrassentüre – 2014
Loggia komplett neu – 2018
Verteilerkasten umgesetzt und Elektrik erneuert/ergänzt – 2023
Schmutzwasser-Abflussrohr Nordseite erneuert – 2024
Einfamilienhaus (EFH)
Letzte umfangreiche Sanierung: 2014–2018
Dach neu eingedeckt mit Betonziegel – 2000
Wärmedämmung Dach, Steinwolle – 2014
Heizungsrohre Stahl – (Jahr nicht angegeben)
Wasserrohre Alu-Kunststoff – 2015
Sprossenfenster Straßenseite 1. OG – 2004
Eingangstüre und Fenster Straßenseite – 2015
Terrassentüre und Fenster (Küche) – 2015
Wohnzimmer-Fensterelement – 2015
Sprossenfenster Gartenseite 1. OG – 2008
Velux Dachflächenfenster – 2014
Elektrik komplett neu – 2015
Bäder und WC neu – 2015–2017, 2023 neue Wanne und Waschtisch
Allgemein (beide Häuser / Außenbereich)
Wärmedämmung Außenwände, WGL 032 – 2011 (Nov.)
Heizungsanlage für beide Häuser, Fernwärme & Warmwasseraufbereitung erneuert – 2015
Neues elektrisches Tor – 2023
Klingelanlage außen – 2020
Klingelanlage innen – 2023
Lage
Die Immobilie liegt in unmittelbarer Nähe des Enzauenparks, einem der bekanntesten Naherholungsgebiete Pforzheims. Mit weitläufigen Grünflächen, Spazierwegen und Spielplätzen bietet der Park zahlreiche Möglichkeiten für Freizeit und Erholung.
Das Anwesen befindet sich etwas abseits größerer Wohngebiete und überzeugt durch den Blick ins Grüne. Gleichzeitig liegt es verkehrsgünstig, sodass das Stadtzentrum und die wichtigsten Versorgungseinrichtungen schnell erreicht werden können.
In direkter Nachbarschaft befindet sich zudem das Heizkraftwerk Pforzheim, das die Immobilie mit Fernwärme versorgt.
Grundriss
Grundriss_EFH_EG
>
>
Grundriss_EFH_OG
>
>
Grundriss_EFH_DG
>
>
Grundriss_MFH_1_OG
>
>
Grundriss_MFH_2_OG
>
>
Grundriss_MFH_DG
>
>
Adresse
75175 Pforzheim
Interessante Orte
Preis- und Lageinformationen
Preistrend für Bestandsimmobilien in Oststadt