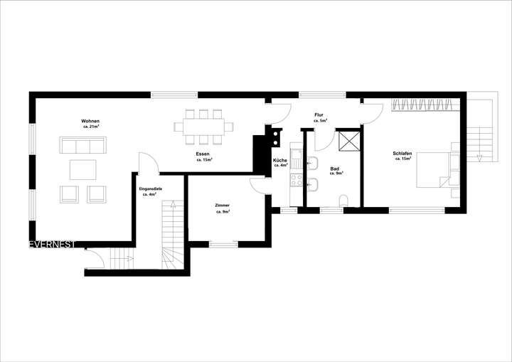
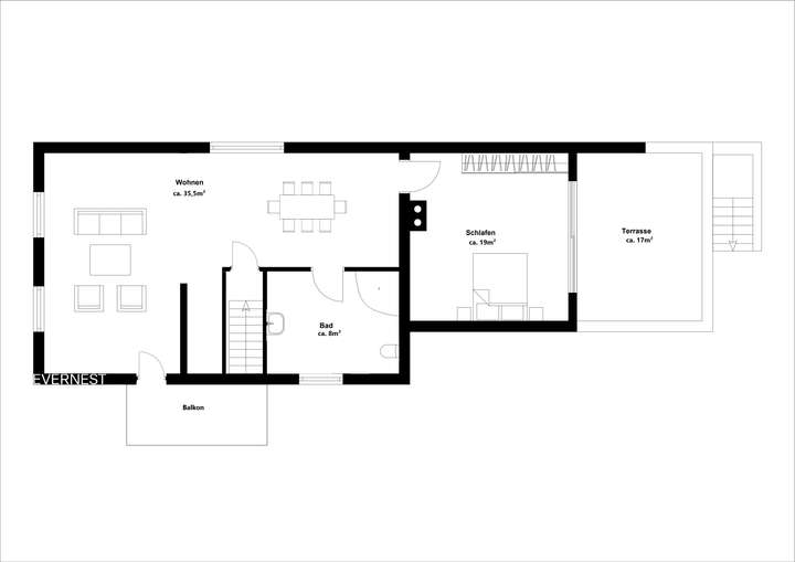
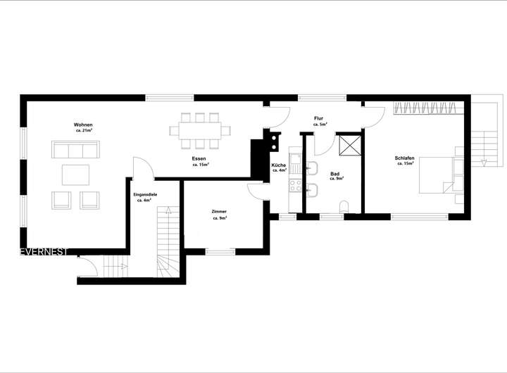
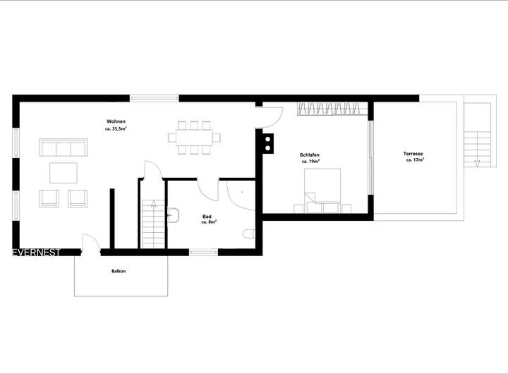
In einer ruhigen Wohnstraße im Herzen der historischen Schöfferstadt präsentiert sich ein charaktervolles 2-Familienhaus aus dem Jahr 1900, das 1985 zu seiner heutigen Form erweitert wurde. Diese vielseitige Immobilie bietet mit ihren zwei getrennten Wohneinheiten und dem außergewöhnlichen Grundstück vielfältige Entwicklungsmöglichkeiten für visionäre Investoren und Eigennutzer. Das Objekt umfasst eine untere Wohneinheit mit ca. 82 m² und drei Zimmern sowie eine obere Wohnung mit ca. 70 m² und zwei Zimmern. Besonders hervorzuheben ist die großzügige Dachterrasse der oberen Einheit, die vom Schlafzimmer aus zugänglich ist und einen schönen Blick in den ruhigen Innenhof bietet. Die getrennte Aufteilung beider Wohnungen ermöglicht vielfältige Nutzungskonzepte, von der reinen Kapitalanlage bis hin zur Kombination aus Eigennutzung und Vermietung. Das wahre Highlight dieser Immobilie liegt jedoch in den außergewöhnlichen Gestaltungsmöglichkeiten des Grundstücks. Im hinteren Bereich befindet sich eine große, historische Scheune, die vielfältige Optionen eröffnet: Sie eignet sich hervorragend für einen durchdachten Anbau zur Wohnraumerweiterung, könnte nach einem möglichen Abriss Platz für einen weitläufigen Garten schaffen oder lässt sich für ganz andere kreative Nutzungskonzepte entwickeln. Diese Flexibilität macht das Anwesen zu einer seltenen Gelegenheit in zentraler Stadtlage. Die Immobilie befindet sich in einem Zustand, der eine umfassende Modernisierung erfordert und bietet somit die perfekte Gelegenheit, ein Objekt ganz nach den eigenen Vorstellungen und Bedürfnissen zu gestalten. Durch gezielte Investitionen in die Renovierung können Sie sowohl den Wohnkomfort als auch das Wertsteigerungspotenzial optimal ausschöpfen. Die solide Bausubstanz aus verschiedenen Epochen bildet dabei eine verlässliche Grundlage für eine zukunftsorientierte Entwicklung. Diese besondere Immobilie richtet sich an Käufer, die das Potenzial einer durchdachten Sanierung zu schätzen wissen und die seltene Chance nutzen möchten, in begehrter Lage ein Objekt nach eigenen Wünschen zu entwickeln. Die Kombination aus zentraler Lage, flexibler Raumaufteilung und den außergewöhnlichen Erweiterungsmöglichkeiten macht dieses Anwesen zu einer wertvollen Investition in die Zukunft.
Zentrale Lage - Viele Möglichkeiten
64579 Gernsheim
Die vollständige Adresse der Immobilie erhalten Sie vom Anbieter.
Auf Karte anzeigen
Die vollständige Adresse der Immobilie erhalten Sie vom Anbieter.

Finanzierungszertifikat
In nur zwei Minuten zu Ihrem persönlichen Finanzierungszertifkat.
Infos
Haustyp | Einfamilienhaus |
---|---|
Etagenzahl | 3 |
Wohnfläche ca. | 152 m2 |
Nutzfläche | 27 m2 |
Grundstücksfläche | 515 m2 |
Zimmer | 5 |
Badezimmer | 2 |
Garage/Stellplatz | Außenstellplatz |
Anzahl Garage/Stellplatz | 2 |
Kosten
Kaufpreis |
375.000 € |
---|---|
Provision |
3.57 % inkl. MwSt. Bei Abschluss eines notariellen Kaufvertrages ist eine Käuferprovision vom Käufer in Höhe von 3.57 % inkl. MwSt. aus dem Kaufpreis fällig. |
Finanzierungsrechner:
Kaufpreis:
600.000 €
Eigenkapital:
600.000 €
Monatliche Rate
0 €
Effektiver Jahreszins
0 %
Sollzinsbindung
10 Jahre
Bausubstanz & Energieausweis
Baujahr | 1985 |
---|---|
Objektzustand | Renovierungsbedürftig |
Qualität der Austattung | Einfach |
Heizungsart | Gas-Heizung |
Energieausweis | liegt vor |
Energieausweistyp | Bedarfsausweis |
Energieverbrauchskennwert | 286,8 kWh/(m²*a) |
Energieeffizienzklasse | H |
286,8
kWh/(m²*a)
Energieeffizienzklasse H
- A+
- A
- B
- C
- D
- E
- F
- G
- H
- 0
- 25
- 50
- 75
- 100
- 125
- 150
- 175
- 200
- 225
- >250
Beschreibung des Objekts
Ausstattung
- Voll unterkellert - Dachterrasse - Große Scheune - 2 Wohneinheiten
Lage
In der historischen Schöfferstadt am malerischen Rhein erleben Sie eine einzigartige Verbindung aus traditionsreicher Geschichte und modernem Lebensgefühl. Diese charmante südhessische Stadt vereint das Beste aus zwei Welten: die Ruhe und Naturnähe einer idyllischen Rheinlage mit der komfortablen Anbindung an die pulsierende Metropolregion Rhein-Main-Neckar. Die privilegierte Lage in einer ruhigen Wohnstraße im Herzen der Stadt verbindet Privatheit mit komfortabler Nähe zu allen wichtigen Einrichtungen des täglichen Bedarfs. Von hier aus erreichen Sie mühelos das malerische Rheinufer mit seinen vielfältigen Freizeitmöglichkeiten - ob entspannte Spaziergänge entlang der Uferpromenade, Radtouren durch das idyllische Ried oder erholsame Stunden im grünen Stadtwald. Die nahegelegene Rheinfähre und der lebendige Hafen verleihen diesem Ort seinen maritimen Charakter und schaffen eine besondere Atmosphäre, während Sie selbst in einer ruhigen Umgebung mit nachbarschaftlichem Charme wohnen. Trotz der ruhigen Wohnlage sind Sie bestens an die wichtigen Zentren der Region angebunden. Die günstige Verkehrslage ermöglicht es Ihnen, sowohl die wirtschaftsstarken Ballungsräume als auch die kulturellen Highlights zwischen Frankfurt und Mannheim mühelos zu erreichen. Ein gut ausgebautes Bildungsangebot, vielfältige Sport- und Kultureinrichtungen sowie eine lebendige Gemeinschaft mit traditionellen Festen schaffen ein Umfeld, in dem sich Jung und Alt wohlfühlen. Diese besondere Lage vereint Lebensqualität mit Zukunftsperspektive und bietet sowohl heute als auch für kommende Generationen ideale Voraussetzungen für ein erfülltes Leben im Herzen einer der attraktivsten Regionen Deutschlands.
Grundriss
KG
>

EG
>

OG
>

Adresse
64579 Gernsheim
Interessante Orte
Preis- und Lageinformationen
Preistrend für Bestandsimmobilien in Gernsheim