Diese Neubau-Wohneinheit verfügt über ca. 142 m² Wohnfläche und bietet viel Platz für individuelle Wohnideen.
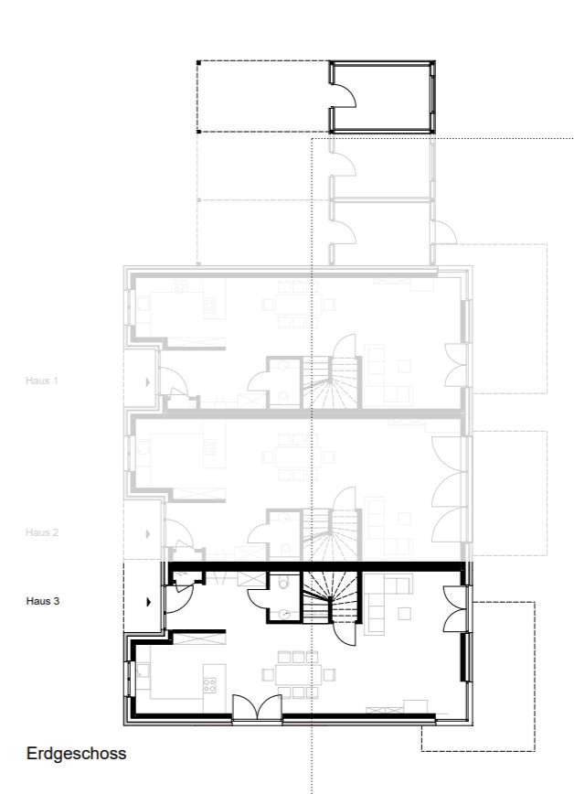
Im Erdgeschoss befindet sich ein offener Wohn-, Ess- und Kochbereich mit Zugang zur Terrasse – ideal für entspannte Stunden im Freien. Ein Gäste-WC ist im Eingangsbereich untergebracht.
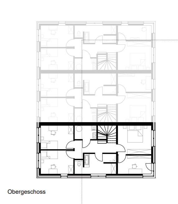
Das Obergeschoss bietet vier Zimmer, die flexibel genutzt werden können – z. B. als Schlaf- oder Kinderzimmer, Büro oder Ankleide.
Zusätzlich stehen ein Badezimmer und ein separater Technikraum zur Verfügung.
Die Ausstattung umfasst eine Fußbodenheizung in allen Räumen sowie elektrische Jalousien.
Ein Carport mit integriertem Abstellraum gehört ebenfalls zur Einheit und bietet praktischen Stauraum.
Ob als Familienwohnsitz oder modernes Zuhause mit viel Platz – diese Einheit eignet sich für alle, die großzügiges Wohnen im Neubau suchen.
Eine Einbauküche wird vom Vermieter gestellt und kostet zusätzlich 80,00€/ Monat.
Strom, Internet, Wasser und Wärme müssen vom Mieter selbständig angemeldet werden!
Leben im Neubau: Großzügige 5-Zimmer-Reihenendhaus mit Terrasse und Carport
26125 Oldenburg (Oldenburg)
Die vollständige Adresse der Immobilie erhalten Sie vom Anbieter.
Auf Karte anzeigen
Die vollständige Adresse der Immobilie erhalten Sie vom Anbieter.
Infos
| Haustyp | Reihenmittelhaus |
|---|---|
| Wohnfläche ca. | 142 m2 |
| Nutzfläche | 23,52 m2 |
| Grundstücksfläche | 195,98 m2 |
| Bezugsfrei ab | 01.01.2026 |
| Zimmer | 5 |
| Schlafzimmer | 4 |
| Badezimmer | 1 |
| Garage/Stellplatz | Carport |
| Anzahl Garage/Stellplatz | 1 |
Kosten
| Kaltmiete |
1.990 € |
|---|---|
| Nebenkosten | + 260 € |
| Heizkosten | keine Angabe |
| Gesamtmiete | 2.250 € (zzgl. Heizkosten) |
| Kaution o. Genossenschaftsanteile | 3.980,00 |
Weiter mieten oder doch kaufen?
Wer in Miete wohnt, überweist dem Vermieter im Laufe der Jahre hohe Summen, die sich
auch in die eigenen vier Wände investieren lassen könnten.
Bausubstanz & Energieausweis
| Baujahr | 2025 |
|---|---|
| Objektzustand | Erstbezug |
| Heizungsart | Fußbodenheizung |
Beschreibung des Objekts
Ausstattung
+ Luft-/Wasser-/ Wärmepumpe
+ Fußbodenheizung
+ Carportstellplatz
+ Fahrrad-/ Geräteschuppen
+ Terrasse
+ el. Jalousien
+ EBK optional
Lage
Die Immobilie befindet sich in begehrter Lage im Oldenburger Stadtteil Ohmstede.
Der Mühlenhofsweg ist eine ruhige Seitenstraße mit gepflegter Einfamilienhausbebauung und einem hohen Grünanteil. Die Umgebung ist familienfreundlich, ruhig und dennoch hervorragend angebunden.
Ohmstede überzeugt durch seine gewachsene Infrastruktur und die Nähe zur Innenstadt. Einkaufsmöglichkeiten, Kindergärten, Schulen und Ärzte befinden sich in fußläufiger Entfernung. Der Flötenteich mit seinem Naherholungsgebiet ist nur wenige Minuten entfernt und lädt zu Spaziergängen und Freizeitaktivitäten ein. Die Oldenburger Innenstadt erreichen Sie in rund 10 Minuten mit dem Fahrrad oder den gut angebundenen öffentlichen Verkehrsmitteln.
Auch für Pendler ist die Lage ideal: Die Auffahrt zur A293 ist in wenigen Minuten erreichbar und bietet eine schnelle Anbindung an das überregionale Straßennetz.
Insgesamt bietet die Lage am Mühlenhofsweg eine attraktive Kombination aus ruhigem Wohnen im Grünen und städtischer Nähe – ideal für Familien, Berufstätige und alle, die die Vorzüge Oldenburgs in einer angenehmen Nachbarschaft genießen möchten.
Sonstige Angaben
Unsere Immobilienangebote verstehen sich freibleibend und unverbindlich. Zwischenvermittlung ausdrücklich vorbehalten. Die Angaben zum Objekt basieren auf erteilten Informationen Dritter. Für die Richtigkeit und Vollständigkeit kann deshalb keine Haftung übernommen werden.
Die erforderlichen Energieangaben wurden entweder bereits im Exposé eingetragen oder der Energieausweis befindet sich derzeit in Bearbeitung.
Alle in dieser Anzeige gemachten Angaben, insbesondere zu den Energieverbrauchswerten, beruhen auf den Informationen aus dem uns vorliegenden Energieausweis. Trotz sorgfältiger Prüfung können unvollständige oder fehlende Angaben nicht vollständig ausgeschlossen werden. Für die Richtigkeit und Vollständigkeit der Angaben übernehmen wir daher keine Gewähr. Der vollständige Energieausweis kann jederzeit angefordert und eingesehen werden. Sollten Angaben im Exposé fehlen oder unvollständig sein, bitten wir höflich um Mitteilung, damit wir diese ergänzen können. Maßgeblich sind in jedem Fall die Daten aus dem vorliegenden Energieausweis.
Wir können Anfragen nur mit vollständig angegebenem Namen, Adresse und Telefonnummer bearbeiten. Wir bitten um Ihr Verständnis.
Energieausweis in Bearbeitung !
Grundriss
Erdgeschoss
>
>
Obergeschoss
>
>
Adresse
26125 Oldenburg (Oldenburg)
Interessante Orte
Preis- und Lageinformationen
Preistrend für Bestandsimmobilien in Ohmstede