Ein Kulturdenkmal mit Herz – Für Visionäre und Liebhaber echter Substanz Einmalig, authentisch, voller Geschichte: Dieses beeindruckende und imposante Anwesen vereint mit einer Grundstücksfläche von 1.352 qm den rustikalen Charme eines rheinhessischen Hakenhofs mit der Substanz eines denkmalgeschützten Weinguts. In der herrlichen, vielseitigen Landschaft der Nahe-Region präsentiert sich der Gutshof als lebendiges Zeugnis ländlicher Architekturtradition. Das Objekt ist geprägt durch das Haupthaus mit seiner markanten Bruchsteinfassade, dem romantisch bewachsenen Innenhof, einem größeren, eindrucksvollen Weinkellergewölbe, stilvollen historischen Wohnräumen sowie einem herrlichen, von einer Bruchsteinmauer umschlossenen Garten. Zusammen mit dem Nebenhaus, einem zweiten, kleineren Weinkellergewölbe und verbindender Scheune bietet dieses Ensemble eine seltene Gelegenheit für Liebhaber, Familien, Investoren oder Kulturschaffende. Tradition erleben – Räume mit Geschichte, Seele & Charakter Der denkmalgeschützte Gutshof wurde 1835 errichtet und diente der aus Berlin stammenden Familie seinerzeit als Sommerresidenz. Er überzeugt auf 371 qm Wohnfläche und 372 qm Nutzfläche mit seiner charakteristischen Winkelform: Wohnhaus, Kelterhaus, Scheune, Werkstatt und Nebenhaus formen gemeinsam einen geschützten Innenhof mit hervorragender Privatsphäre. Originale Dielenböden, traditionelle Kachelöfen, Sprossenfenster, antike Zimmertüren und liebevoll gestaltete Holzvertäfelungen verleihen dem charmanten Natursteinbau seinen historischen Charakter. Großzügig wohnen mit historischem Flair Großzügige Wohnbereiche prägen das Erdgeschoss des Hauptgebäudes durch imposante Salons, eine Bibliothek im neueren Stil sowie eine große Küche mit zusätzlichem, gemauertem Gusskachelofen. Ein stilvolles Raumangebot, das durch ein komfortables Bad und ein Gästebad ideal abgerundet wird. Für angenehme Wärme im Obergeschoss sorgten früher die Lüftungsschächte des Ofens in der Küche und im Esszimmer, Erdgeschoss und Obergeschoss werden heute durch eine installierte Brennwert-Gaszentralheizung versorgt. Ein weiteres Tageslichtbad auf der 1. Etage lässt den Nutzungsmöglichkeiten dieser besonderen Immobilie viel Spielraum. Auf der Vorderseite der Gebäude befindet sich der Innenhof mit 4-6 Parkmöglichkeiten, ein weiteres Highlight ist der lichtdurchflutete Wintergarten auf der Rückseite des Hauses, der sich harmonisch zum großen Garten im hinteren Bereich des Anwesens hin öffnet. Wie der Innenhof ist auch der uneinsehbare Garten umringt von einer Natursteinmauer, d.h. blickfrei durch zusätzlich angrenzende Scheunen sowie Bewuchs. Hof und Garten verfügen jeweils über einen gemauerten Brunnen. Ein weiteres Highlight ist der sagenhafte Blick in Richtung Rhein-Nahe-Mündung, Niederwalddenkmal Schloss Johannisberg und natürlich auf den Bosenberg. Zweites Wohnhaus – bereit für Ihre Ideen Vielfältiges Flächenpotenzial bietet auch das angrenzende zweite Wohnhaus, das über die Werkstatt, Scheune und Kelterhaus mit dem Haupttrakt verbunden ist. Während das Obergeschoss bereits renoviert wurde, wartet das Erdgeschoss noch auf Ihre kreativen Ideen – sei es als Atelier, ruhiger Arbeitsbereich oder stilvoller Empfang mit Garderobe. In das erste OG gelangt man über eine wunderschöne Holztreppe. Dort befinden sich Wohnzimmer, Arbeitszimmer, Esszimmer, Küche, Bad, 2 Abstellräume und eine Brennwert-Gaszentralheizung, sowie ein Balkon mit Blick auf den Bosenberg. Das ausgebaute Dachgeschoss verfügt über ein großes, helles Studio und ein weiteres Schlafzimmer/ Kinderzimmer. Innenhofromantik & Scheunenvisionen Mit Kopfstein- und Natursteinpflaster, der umfriedenden Natursteinmauer mit Blumenbeeten und Büschen gestaltet sowie dem gemauerten Brunnen schafft der Hof eine in sich geschlossene Atmosphäre, ideal für Blumenliebhaber, gastronomische Konzepte oder als stilvolle Empfangs- und Eventfläche. Eben
Historisches Weingut mit großem Weinkeller, zweitem Wohngebäude, Innenhof, Scheune & Garten
55545 Bad Kreuznach
Die vollständige Adresse der Immobilie erhalten Sie vom Anbieter.
Auf Karte anzeigen
Die vollständige Adresse der Immobilie erhalten Sie vom Anbieter.

Finanzierungszertifikat
In nur zwei Minuten zu Ihrem persönlichen Finanzierungszertifkat.
Infos
Haustyp | Besondere Immobilie |
---|---|
Etagenzahl | 3 |
Wohnfläche ca. | 371 m2 |
Grundstücksfläche | 1.352 m2 |
Bezugsfrei ab | nach Vereinbarung |
Zimmer | 17 |
Schlafzimmer | 8 |
Badezimmer | 4 |
Anzahl Garage/Stellplatz | 3 |
Kosten
Kaufpreis |
890.000 € |
---|---|
Provision |
3,57% inkl. gesetzlicher Umsatzsteuer |
Finanzierungsrechner:
Kaufpreis:
600.000 €
Eigenkapital:
600.000 €
Monatliche Rate
0 €
Effektiver Jahreszins
0 %
Sollzinsbindung
10 Jahre
Bausubstanz & Energieausweis
Baujahr | 1835 |
---|---|
Bauphase | Haus fertig gestellt |
Denkmalschutzobjekt | Ja |
Objektzustand | Renovierungsbedürftig |
Qualität der Austattung | Gehoben |
Energieausweis | laut Gesetz nicht erforderlich |
Beschreibung des Objekts
Ausstattung
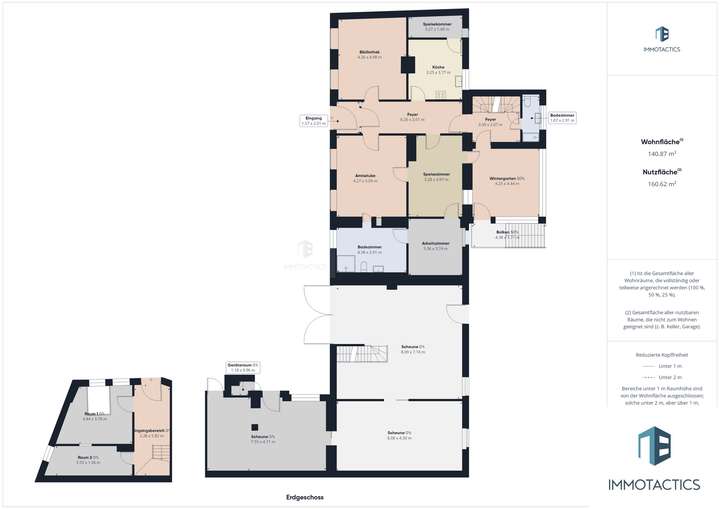
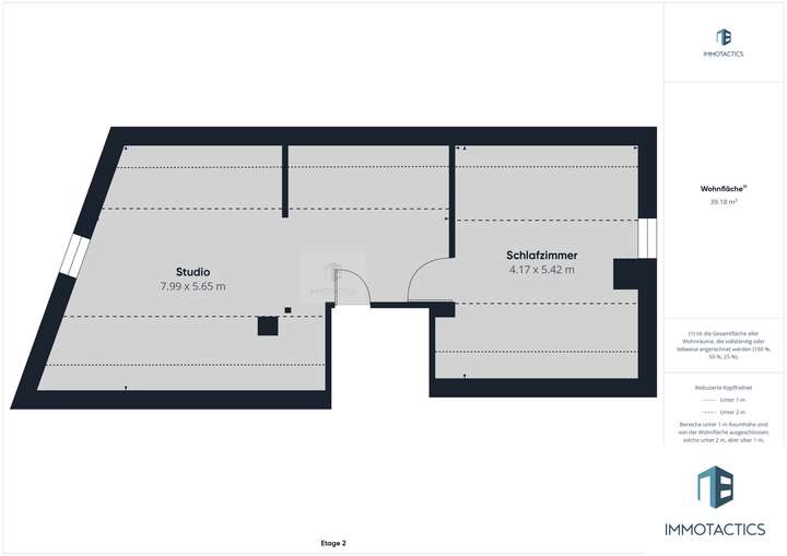
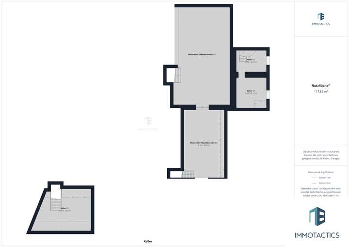
Allgemein: Denkmalgeschützter Hakenhof (Baujahr ca. 1835) Ensemble aus Wohnhaus, Scheune, Garten & Innenhof 371 qm Gesamtwohnfläche 372 qm Nutzfläche 1.352 qm Grundstück Innenhof in Winkelform mit Kopfsteinpflaster & viel Privatsphäre Teilweise renoviert Hauptgebäude: 270 qm Wohnfläche 12 Zimmer Originale Dielenholzböden Sprossenfenster mit Holzläden Antike Zimmertüren & Wandverkleidungen Großzügige Salons & historisches Lesezimmer/Bibliothek Küche mit historischem Flair & Holzofen Gemauerter Gusskachelofen in der Küche mit Warmluftführung Brennwert - Gas- Zentralheizung 3 Tageslichtbäder Hohe Decken & helle Räume Wintergarten Weinkeller: Beeindruckendes, tonnengewölbtes Natursteingewölbe Großzügiger Lagerraum für Wein oder Eventnutzung Ehemalige Weinfässer vorhanden Zweites Wohnhaus ca. 101 qm Wohnfläche 5 Zimmer OG überwiegend renoviert Dielenholzböden Einbauküche inkl. E-Geräte 1 renoviertes Tageslichtbad Helles Studio im Dachgeschoss Balkon Gaszentralheizung Außenbereiche & Nebengebäude: Romantischer Innenhof mit Natursteinmauer, Natursteinpflaster & Grünbewuchs Große Scheune und Speicher mit Ausbaupotenzial (Lager, Werkstatt, Garage, Galerie, zusätzlicher Wohn-/Arbeits-/Büroraum) Ehemalige Weinlagerräume, Lagerräume und Werkstatt mit vielfältigen Nutzungsmöglichkeiten Historischer Eindruck bewahrt, teilweise mit Schindelverkleidung (ehemaliges Verwalterhaus von 1835) Großer Garten hinter dem Haus Besonderheiten: Kulturdenkmal mit Geschichte & prominenter Familienhistorie Ruhige Lage im alten Ortskern eines Weindorfs Nahezu uneinsehbar & sehr atmosphärisch Historischer Charme mit viel Seele & Substanz Ideal für Liebhaber, Künstler, Familien oder Investoren Optional können 20.000 m² Weinberg im Kreuznacher Paradies, in der besten Lage auf dem Bosenberg erworben werden.
Lage
Gelegen im historischen Ortskern eines typischen Weinorts der Nahe-Region fügt sich das Anwesen harmonisch in ein Dorfbild ein, das von malerischen Fachwerkhäusern, alten Gutshöfen und traditionsreichen Kirchen geprägt ist. Weinberge, Wiesen und Felder umgeben die Lage und schaffen eine ländliche Idylle – verbunden mit einer zugleich hervorragenden Anbindung an die Stadt. Nur wenige Minuten entfernt befindet sich Bad Kreuznach mit seinem renommierten Kurgebiet, vielfältigen Einkaufsmöglichkeiten, einem breiten Bildungs- und Freizeitangebot sowie umfassender medizinischer Versorgung. Besonders hervorzuheben ist das Bäderhaus, eines der schönsten Wellness- und Saunalandschaften Deutschlands, das Erholung und Entspannung auf höchstem Niveau bietet. Die Stadt wartet zudem mit optimalen Verkehrsverbindungen auf: Über den Bahnhof sowie die nahegelegene Autobahn A61 sind Mainz, Koblenz und das gesamte Rhein-Main-Gebiet schnell erreichbar. Auch Deutschlands größter Flughafen, der Rhein-Main-Airport in Frankfurt, ist bequem in kurzer Fahrzeit angebunden. Bosenheim selbst bewahrt trotz seiner Eingliederung nach Bad Kreuznach seinen dörflichen Charme und punktet mit guter lokaler Infrastruktur. Neben Grundschule, Kindergarten, Schwimmbad, Sportverein und Gemeinschaftseinrichtungen prägt ein lebendiges Miteinander das Ortsleben. Die Naheregion steht zudem für hohe Lebensqualität, traditionsreiche Weinkultur, zahlreiche Wander- und Radwege sowie ein wachsendes kreatives Milieu.
Sonstige Angaben
Die in unserem Exposé enthaltenen Aussagen basieren ausschließlich auf Informationen, die uns vom Verkäufer und von Handwerkern zur Verfügung gestellt wurden. Wir übernehmen daher keine Gewähr für die Vollständigkeit und Richtigkeit der Angaben. Das Immobilienangebot ist freibleibend. Irrtum und Zwischenverkauf bleiben vorbehalten. Weitere Details zum Objekt erläutern wir Ihnen gerne bei einem Besichtigungstermin. Wir bitten um Ihr Verständnis dafür, dass wir nur Anfragen mit vollständigen Adressdaten inklusive Vor- und Zuname, Anschrift, Telefon-/Mobilnummer und Email Adresse bearbeiten können. Sie suchen nach der passenden Finanzierung? Wir finden sie! Als ungebundene Finanzierungsvermittler vergleichen wir über 900 Banken und finden einen optimalen Kredit für Sie. Sparen Sie Geld und Zeit! Mit Sicherheit günstiger als Ihre Hausbank. Informieren Sie sich jetzt hier, kostenfrei und unverbindlich über Finanzierungsmöglichkeiten zu dieser Immobilie. Fördermittelberatung inklusive. Wir freuen uns auf den Kontakt zu Ihnen. Immotactics GmbH 0671 – 20272030 info@immotactics.de
Grundriss
EG
>

OG
>

DG Nebenhaus
>

Keller
>

Adresse
55545 Bad Kreuznach
Interessante Orte
Preis- und Lageinformationen
Preistrend für Bestandsimmobilien in Bad Kreuznach