Dieses charmante Reiheneckhaus aus dem Jahr 1955 vereint Geschichte und frischen Glanz: Mit rund 136 m² Wohnfläche auf drei Ebenen sowie einem zusätzlichen Kellerbereich bietet es Platz für das Familienleben in all seinen Facetten. Erst kürzlich renoviert, präsentiert sich das Haus in einem modernen, gepflegten Erscheinungsbild – inklusive einem neuen Duschbad im Obergeschoss.
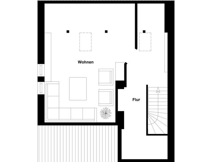
Bereits beim Betreten wird deutlich: Hier wurde mitgedacht. Im Erdgeschoss finden sich ein großzügiger Wohn- und Essbereich mit Zugang zur Terrasse, eine separate Küche sowie ein Gäste-WC. Der helle Wohnraum überzeugt nicht nur durch seine freundliche Atmosphäre, sondern auch durch einen Kaminanschluss, der in den kälteren Monaten für behagliche Wärme sorgt.
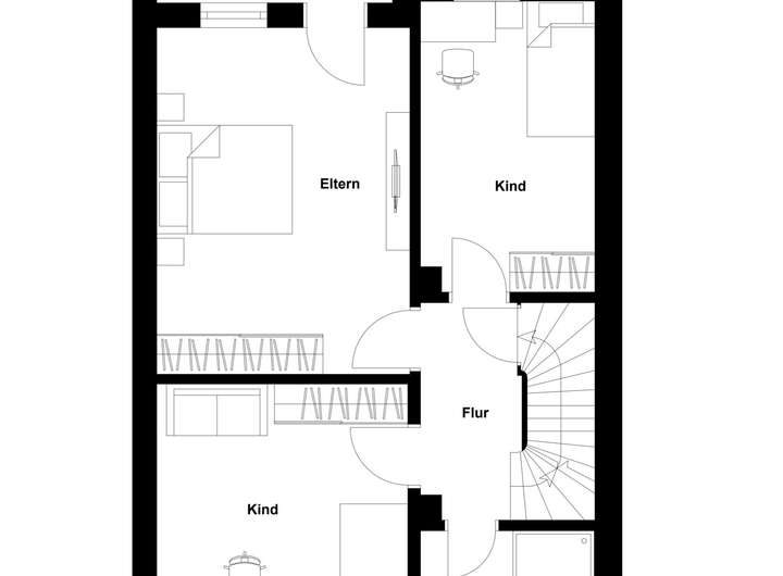
Das Obergeschoss hält drei weitere Zimmer bereit – ideal als Schlaf-, Kinder- oder Arbeitszimmer. Ein Balkon erweitert den Wohnkomfort nach draußen, während das neue Duschbad in zeitgemäßem Stil den Morgen erleichtert.
Ein besonderes Highlight ist das ausgebaute Dachstudio: Ob als Rückzugsort für Teenager, als Büro oder als Gästezimmer – die vielfältigen Nutzungsmöglichkeiten machen diesen Bereich zu einem echten Pluspunkt. Auch hier ist ein Kaminanschluss vorhanden, der für Gemütlichkeit sorgt.
Der Keller punktet mit einer zusätzlichen Außentreppe sowie einem Hobbyraum, der sich für unterschiedlichste Zwecke eignet. Abgerundet wird das Angebot durch einen Außenstellplatz direkt am Haus.
Frisch renoviertes Reiheneckhaus in familienfreundlicher Lage von Fürstenfeldbruck
82256 Fürstenfeldbruck
Die vollständige Adresse der Immobilie erhalten Sie vom Anbieter.
Auf Karte anzeigen
Die vollständige Adresse der Immobilie erhalten Sie vom Anbieter.
Finanzierungszertifikat
In nur zwei Minuten zu Ihrem persönlichen Finanzierungszertifkat.
Infos
| Haustyp | Reiheneckhaus |
|---|---|
| Etagenzahl | 4 |
| Wohnfläche ca. | 137 m2 |
| Nutzfläche | 229,33 m2 |
| Grundstücksfläche | 384 m2 |
| Bezugsfrei ab | frei |
| Zimmer | 5 |
| Schlafzimmer | 4 |
| Badezimmer | 1 |
| Garage/Stellplatz | Außenstellplatz |
| Anzahl Garage/Stellplatz | 1 |
Kosten
| Kaufpreis |
769.000 € |
|---|---|
| Provision |
3,57 % |
Finanzierungsrechner:
Kaufpreis:
600.000 €
Eigenkapital:
600.000 €
Monatliche Rate
0 €
Effektiver Jahreszins
0 %
Sollzinsbindung
10 Jahre
Bausubstanz & Energieausweis
| Baujahr | 1955 |
|---|---|
| Objektzustand | Saniert |
| Heizungsart | Zentralheizung |
| Wesentliche Energieträger | Gas |
| Energieausweis | liegt vor |
| Energieausweistyp | Bedarfsausweis |
| Energieverbrauchskennwert | 187,8 kWh/(m²*a) |
| Energieeffizienzklasse | F |
187,8
kWh/(m²*a)
Energieeffizienzklasse F
- A+
- A
- B
- C
- D
- E
- F
- G
- H
- 0
- 25
- 50
- 75
- 100
- 125
- 150
- 175
- 200
- 225
- >250
Beschreibung des Objekts
Ausstattung
+ offener Wohn-Essbereich
+ große überdachte Terrasse
+ großer Garten zum Spielen und Entspannen
+ Kaminanschluss im Wohnzimmer und Dachstudio für kuschlige Wärme auch in der kalten Jahreszeit
+ schöne Holzfußböden
+ wunderschöne Holztreppen
+ neues Badezimmer mit großer Dusche und Fenster
+ Balkon im Obergeschoss
+ gemütliches Dachstudio
+ Außentreppe zum Keller
+ Hobbyraum und Abstellräume im Keller
+ Außenstellplatz
Lage
Das charmante Reiheneckhaus liegt in einer beliebten Wohngegend der großen Kreisstadt Fürstenfeldbruck, westlich von München. Eingebettet in ein familienfreundliches Umfeld, vereint sie die Vorteile urbaner Infrastruktur mit der Nähe zu Natur und Freizeitmöglichkeiten. Die Amper mit ihren idyllischen Uferwegen lädt zu Spaziergängen und entspannten Stunden am Wasser ein – wer möchte da nicht den Feierabend mit einem Sundowner am Fluss ausklingen lassen?
In den vergangenen Jahren haben insbesondere Familien die Lage für sich entdeckt. Kindergärten, Grund- und weiterführende Schulen sind gut erreichbar. Für die Kleinsten ist ein vielfältiges Betreuungsangebot vorhanden, während ältere Kinder von einer großen Auswahl an weiterführenden Schulen in der Stadt profitieren.
Für den täglichen Bedarf stehen zahlreiche Einkaufsmöglichkeiten zur Verfügung. Neben Supermärkten und Fachgeschäften bietet das Amper Einkaufs-Zentrum eine breite Auswahl an Läden – alles bequem erreichbar. Auch die medizinische Versorgung ist durch Ärzte, Apotheken und ein Krankenhaus im Stadtgebiet gesichert.
Das Vereins- und Kulturleben Fürstenfeldbrucks ist ausgesprochen lebendig. Sportvereine, Musikschule, Hallen- und Freibad sowie ein Hochseilgarten bieten zahlreiche Möglichkeiten zur Freizeitgestaltung. Höhepunkte im Jahreslauf sind das Brucker Volksfest, das Altstadtfest und die traditionelle Leonhardifahrt – Veranstaltungen, die Jung und Alt gleichermaßen begeistern.
Trotz der naturnahen Lage ist die Verkehrsanbindung hervorragend: Über die Bundesstraßen B2 und B471 sowie die nahegelegenen Autobahnen A8 und A96 sind München, Augsburg oder das Fünfseenland in kurzer Zeit erreichbar. Wer lieber auf öffentliche Verkehrsmittel setzt, profitiert von der S-Bahn-Linie S4, die im 20-Minuten-Takt Richtung Münchner Innenstadt verkehrt, sowie einem dichten Busnetz.
Sonstige Angaben
Die Vermittlung dieser Immobilie erfolgt exklusiv durch die JALEA Immobilien GmbH. Mit der Anfrage bei und durch Inanspruchnahme der Dienstleistung der Firma JALEA Immobilien GmbH, wird ein Maklervertrag geschlossen. Vom Käufer ist eine Vermittlungsprovision in Höhe von 3,57 % (inklusive 19% Mehrwertsteuer) vom vertraglich vereinbarten Kaufpreis, nach Abschluss des notariell beurkundeten Kaufvertrages, zu zahlen. Bitte beachten Sie zusätzlich unsere AGBs.
Wir weisen darauf hin, dass die von uns weitergegebenen Objektinformationen, Unterlagen, Pläne etc. vom Verkäufer stammen. Eine Haftung für die Richtigkeit oder Vollständigkeit der Angaben übernehmen wir daher nicht. Es obliegt daher unseren Kunden, die darin enthaltenen Objektinformationen und Angaben auf ihre Richtigkeit hin zu überprüfen. Alle Immobilienangebote sind freibleibend und vorbehaltlich Irrtümer, Zwischenverkauf- und Vermietung oder sonstiger Zwischenverwertung.
Grundriss
Grundriss Erdgeschoss
>
>
Grundriss Obergeschoss
>
>
Grundriss Dachgeschoss
>
>
Grundriss Untergeschoss
>
>
Adresse
82256 Fürstenfeldbruck
Interessante Orte
Preis- und Lageinformationen
Preistrend für Bestandsimmobilien in Fürstenfeldbruck