Ein ebenerdiger Bungalow mit großem Garten: wie gemacht für eine Familie mit Kindern. Oder aber ein Refugium für ruhesuchende Käufer. Durch kleine Maßnahmen ist auch ein barrierefreier Zugang zum Wohnbereich möglich.
Großzügiger Grundriss, charmante Details und ein verwunschener Garten warten auf Sie!
Das Einfamilienhaus im Bungalowstil liegt inmitten eines herrlichen Gartens. Der Zugang ist entweder über einen Fußgängerweg oder über einen ca. 3 Meter breiten Grünstreifen, der zur im Garten gelegenen Doppelgarage führt. Alter Baumbestand im Vorgarten sorgt für natürliche Beschattung. Von einer höher gelegenen Terrasse überblicken Sie den verwunschenen Garten auf der sonnigen Südseite oder Sie genießen das Vogelzwitschern unter dem großen Apfelbaum. Zwei kleine Teiche warten darauf, wieder belebt zu werden.
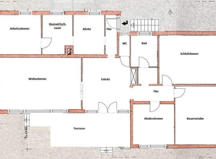
Das Anwesen aus dem Jahr 1960 verfügt über 6 Zimmer zu drei Seiten, alle umrahmt durch den großen Garten auf einer Grundstücksfläche von 834 m². 1966 wurde ein weiteres Einfamilienhaus an der Westseite angebaut und das ehemals fast doppelt so große Grundstück geteilt.
Die sonnendurchfluteten Wohnräume verfügen über Mosaikparkett, das Bad und Gäste WC sind überwiegend im Originalzustand, Küche und Hauswirtschaftsraum sind im Schachbrettmuster gefliest. Alle Räume freuen sich auf eine Renovierung, um wieder in neuem Glanz zu erstrahlen. Das Haus ist zum Teil unterkellert mit 3 kleinen Räumen, wovon sich in zweien die Heizungsanlage und der Öltank befinden.
Das Haus in Massivbauweise befindet sich in einem baujahrtypischen Zustand, das Dach wurde vor ca. 20 Jahren saniert. Ein Objekt noch ohne energetische Baumaßnahmen, dafür mit Potential zur individuellen Gestaltung, welches seine(n) Liebhaber sucht!
Ebenerdiger Bungalow: Grüne Oase in der Stadt
Leipziger Straße 24,
91058 Erlangen
Auf Karte anzeigen
Finanzierungszertifikat
In nur zwei Minuten zu Ihrem persönlichen Finanzierungszertifkat.
Infos
| Wohnfläche ca. | 142 m2 |
|---|---|
| Nutzfläche | 157,5 m2 |
| Grundstücksfläche | 834 m2 |
| Zimmer | 6 |
| Schlafzimmer | 4 |
| Badezimmer | 1 |
| Garage/Stellplatz | Garage |
| Anzahl Garage/Stellplatz | 1 |
Kosten
| Kaufpreis |
750.000 € |
|---|---|
| Provision |
3,57 % (inkl. gesetzl. Umsatzsteuer) Das Maklerhonorar in Höhe von 3,57 % (inkl. gesetzlicher Umsatzsteuer) vom notariell beurkundeten Kaufpreis ist verdient und fällig mit Beurkundung des notariellen Kaufvertrages. Der Immobilienmakler hat einen provisionspflichtigen Maklervertrag mit dem/r Verkäufer/in in gleicher Höhe abgeschlossen. |
Finanzierungsrechner:
Kaufpreis:
600.000 €
Eigenkapital:
600.000 €
Monatliche Rate
0 €
Effektiver Jahreszins
0 %
Sollzinsbindung
10 Jahre
Bausubstanz & Energieausweis
| Baujahr | 1960 |
|---|---|
| Objektzustand | Renovierungsbedürftig |
| Heizungsart | Zentralheizung |
| Wesentliche Energieträger | Öl |
| Energieausweis | liegt vor |
| Energieausweistyp | Bedarfsausweis |
| Energieverbrauchskennwert | 486,1 kWh/(m²*a) |
| Energieeffizienzklasse | H |
486,1
kWh/(m²*a)
Energieeffizienzklasse H
- A+
- A
- B
- C
- D
- E
- F
- G
- H
- 0
- 25
- 50
- 75
- 100
- 125
- 150
- 175
- 200
- 225
- >250
Beschreibung des Objekts
Ausstattung
. Freundliche, helle Räume mit großen Holzfenstern, 2-fach verglast, Rollos
. Komplett verglaste Front zum Garten, teils mit elektrischen Rollos im Originalzustand
. Wohn- und Schlafräume mit Originalparkett
. Großzügiges Entrée und Gang zu den Schlafräumen durchgehend gefliest
. Bauernstube mit nachträglichen Holzeinbauten
. Zusätzlicher Wohn-/Schlafraum, ehemals für eine Hausangestellte
. Badezimmer mit Bade-/Duschwanne und WC überwiegend im Originalzustand
. Gäste WC
. Küche (ohne Einbauten) mit anschließendem Hauswirtschaftsraum. Von dort besteht Zugang zum Dachboden (großer Stauraum bzw. ausbaubar) über eine versenkbare Treppe
. Drei kleine Kellerräume, zwei davon mit Heizungsanlage (1986) bzw. Öltank
. Zentralheizung
. Warmwasseraufbereitung über Durchlauferhitzer
. Das Haus ist komplett geräumt und kann nach Ihren eigenen Wünschen renoviert, gestaltet bzw. umgebaut werden.
Lage
Die Immobilie befindet sich in einem gepflegten Wohn-/Gewerbemischgebiet in Erlangen Bruck an einer verkehrsberuhigten Fahrradstraße.
Trotz ruhiger Lage unweit der Regnitz, bietet der Standort eine hervorragende regionale und überregionale Verkehrsanbindung (Frankenschnellweg). Alle Geschäfte des täglichen Bedarfs (Supermarkt, Tankstelle, Restaurants, Ärzte, Apotheke, etc.) sind leicht zu erreichen.
Mit dem öffentlichen Nahverkehr benötigen Sie nur 15 Minuten zum Erlanger Hauptbahnhof bzw. in die Innenstadt. Zudem sind die Siemens AG, die Universität oder das Klinikum, als große Arbeitgeber der Region, in wenigen Minuten per Rad oder Auto zu erreichen. Grund- und weiterführende Schulen liegen im Umkreis von 1 – 3 km Entfernung.
Die Lage am Rande des Regnitztals bietet einen entsprechend hohen Freizeitwert. Auch das Westbad ist nur 5 Minuten mit dem Fahrrad entfernt.
Sonstige Angaben
Das Anwesen kann gerne nach Absprache besichtigt werden. Bitte haben Sie Verständnis, dass Besichtigungstermine nur an ernsthafte Kaufinteressenten vergeben werden.
Das Angebot ist freibleibend, es wurde nach den Angaben des Eigentümers erstellt. Irrtümer und Zwischenverkauf vorbehalten.
Grundriss
Grundriss
>
>
Adresse
Leipziger Straße 24, 91058 Erlangen
Interessante Orte
Preis- und Lageinformationen
Preistrend für Bestandsimmobilien in Bruck