Modernisiertes Reihenendhaus in Braunfels – Platz, Licht und vielfältiges Potenzial für Familien und Kapitalanleger
Dieses großzügige Reihenendhaus in begehrter Wohnlage von Braunfels verbindet modernes Wohnen mit sehr guten Zukunftsperspektiven. Mit rund 130 m² Wohnfläche, einem hellen Dachstudio und einer praktischen Wohnaufteilung bietet das Haus Raum für Familien, Paare mit Platzbedarf oder Kapitalanleger, die ein solides und wertstabiles Objekt suchen.
Wohnkomfort über drei Etagen – ideal aufgeteilt
Schon beim Betreten empfängt Sie ein freundlicher Eingangsbereich, ergänzt durch ein Gäste-WC und einen Hauswirtschaftsraum – perfekt für den Alltag. Der offene Wohn- und Essbereich mit angrenzender Küche bildet das Herzstück des Hauses. Durch die große Fensterfront wirkt der Raum hell und einladend. Von hier aus gelangen Sie direkt auf die überdachte Terrasse, die wetterunabhängig genutzt werden kann – ideal für gesellige Abende oder entspannte Stunden im Freien.
Im Obergeschoss erwarten Sie ein Schlafzimmer sowie zwei vielseitig nutzbare Zimmer, die sich hervorragend als Kinder-, Arbeits- oder Gästezimmer eignen. Das moderne Badezimmer rundet diese Etage ab.
Highlight: Helles Dachstudio
Das ausgebaute Dachstudio schafft zusätzlichen, großzügigen Wohnraum – ideal als Rückzugsort, Homeoffice, Spielbereich oder Atelier. Hier lässt sich Wohnen ganz individuell gestalten.
Garten und Stellplatz inklusive
Zum Haus gehört ein pflegeleichter Garten mit Platz zum Spielen, Entspannen und Gärtnern. Direkt am Haus befindet sich ein im Grundbuch eingetragener Carport-Stellplatz, der den Wohnkomfort abrundet. Die Immobilie ist aktuell vermietet und daher besonders interessant für Kapitalanleger. Eine Eigennutzung ist langfristig ebenfalls möglich.
Attraktive Merkmale und Nutzungsmöglichkeiten
Das Haus überzeugt durch seine vielseitige Raumaufteilung, das lichtdurchflutete Dachstudio und die überdachte Terrasse, die ganzjährig genutzt werden kann. Der pflegeleichte Garten, die ruhige Wohnlage und das solide Wertsteigerungspotenzial machen diese Immobilie zu einer sicheren und zukunftsorientierten Investition.
Ideal geeignet für Familien, Berufspendler und Kapitalanleger
Dieses Reihenendhaus ist perfekt für Familien, die naturnah wohnen und dennoch die Nähe zur Stadt schätzen. Berufspendler profitieren von der guten Anbindung an das Rhein-Main-Gebiet, während Kapitalanleger ein wertstabiles Objekt mit attraktiver Renditechance erhalten. Auch für Menschen, die ein gepflegtes Zuhause mit Flexibilität und Gestaltungsfreiraum suchen, bietet dieses Haus ideale Voraussetzungen.
Modernes Reihenendhaus in Braunfels – Ideal für Familie & Kapitalanlage
35619 Braunfels
Die vollständige Adresse der Immobilie erhalten Sie vom Anbieter.
Auf Karte anzeigen
Die vollständige Adresse der Immobilie erhalten Sie vom Anbieter.
Finanzierungszertifikat
In nur zwei Minuten zu Ihrem persönlichen Finanzierungszertifkat.
Infos
| Haustyp | Reiheneckhaus |
|---|---|
| Etagenzahl | 3 |
| Wohnfläche ca. | 130 m2 |
| Nutzfläche | 12 m2 |
| Grundstücksfläche | 211 m2 |
| Zimmer | 5 |
| Schlafzimmer | 4 |
| Badezimmer | 2 |
| Garage/Stellplatz | Carport |
Kosten
| Kaufpreis |
385.000 € |
|---|---|
| Provision |
3,57 % inkl. MwSt. |
Finanzierungsrechner:
Kaufpreis:
600.000 €
Eigenkapital:
600.000 €
Monatliche Rate
0 €
Effektiver Jahreszins
0 %
Sollzinsbindung
10 Jahre
Bausubstanz & Energieausweis
| Baujahr | 1997 |
|---|---|
| Objektzustand | Modernisiert |
| Qualität der Austattung | Gehoben |
| Heizungsart | Zentralheizung |
| Wesentliche Energieträger | Gas |
| Energieausweis | liegt vor |
| Energieausweistyp | Verbrauchsausweis |
| Energieverbrauchskennwert | 126,3 kWh/(m²*a) |
| Energieeffizienzklasse | D |
126,3
kWh/(m²*a)
Energieeffizienzklasse D
- A+
- A
- B
- C
- D
- E
- F
- G
- H
- 0
- 25
- 50
- 75
- 100
- 125
- 150
- 175
- 200
- 225
- >250
Beschreibung des Objekts
Ausstattung
Innenausstattung:
- Offener Wohn- und Essbereich – großzügig geschnitten, hell und ideal für Familienleben oder gesellige Abende
- Helle Küche – aktuell funktional und gepflegt, mit Potenzial für eine moderne Neugestaltung
- Gäste-WC im Erdgeschoss – besonders praktisch für Alltag & Besuch
- Hauswirtschaftsraum – direkt angrenzend, ideal für Vorräte, Waschmaschine, Trockner und Ordnung
- Modernes Badezimmer im Obergeschoss – zeitgemäße Ausstattung, gute Raumaufteilung, Fenster für Tageslicht
- Großzügiges Dachstudio – vielseitig nutzbar als Arbeitsplatz, Kreativraum, zusätzliches Wohnzimmer, Hobbyraum oder Teenagerbereich
Böden & Wände:
- Pflegeleichte Bodenbeläge – ideal für Vermietung oder Familien mit Kindern
- Helle Wandflächen – wirken freundlich und modern, bieten eine neutrale Basis für jeden Einrichtungsstil
- Große Fensterflächen – sorgen für viel Tageslicht und einen offenen Wohncharakter
Heizung & Energie:
- Gas-Zentralheizung (Brenntwertkessel) – moderne Technik, effizient in Verbrauch und Betrieb
- Verbrauchsausweis Energieklasse D – solide Werte für ein Reihenhaus dieser Größe
- Warmwasser über die zentrale Heizung
- Guter Modernisierungsstand – u.a. Austausch der Heiztechnik entsprechend EnEV
Außenbereich:
- Überdachte Terrasse – ein echtes Highlight, fast wie ein zusätzlicher Wohnraum im Sommer
- Pflegeleichter Garten – kompakt, sonnig, ideal für Kinder, Grillabende und leichte Gartenarbeit
- Eigener Carport-Stellplatz direkt am Haus – im Grundbuch eingetragen, wertsteigernd
- Weitere Stellmöglichkeiten vor dem Haus – praktisch für Gäste oder Zweitfahrzeuge
Lage
Braunfels zählt zu den attraktivsten Wohnlagen im Lahn-Dill-Kreis. Die charmante Altstadt mit ihrem bekannten Schloss verleiht dem Ort ein besonderes historisches Flair. Zahlreiche Cafés, gemütliche Restaurants und kleine Boutiquen laden zum Verweilen ein und schaffen eine hohe Lebensqualität.
Die Immobilie selbst befindet sich in einer ruhigen Wohnstraße mit angenehmer Nachbarschaft – ein ideales Umfeld für Familien, die Wert auf Sicherheit und ein harmonisches Wohnumfeld legen. Kindergärten, Schulen, Ärzte sowie Einkaufsmöglichkeiten sind schnell und bequem erreichbar.
Auch die Verkehrsanbindung ist hervorragend: In nur ca. 10 Minuten erreicht man Wetzlar, in etwa 20 Minuten Limburg, und das Rhein-Main-Gebiet mit Städten wie Frankfurt oder Wiesbaden ist in rund 45 Minuten gut erreichbar. Damit ist Braunfels nicht nur für Berufspendler attraktiv, sondern auch für alle, die naturnah leben und dennoch mobil und gut vernetzt bleiben möchten.
Sonstige Angaben
Um eine schnelle Bearbeitung zu gewährleisten, übermitteln Sie uns bitte Ihre vollständigen Kontaktdaten mit Telefon-Nr. und E-Mail-Adresse.
Wir vermitteln - mit Sicherheit.
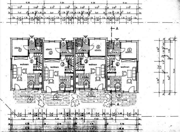
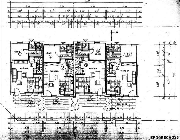
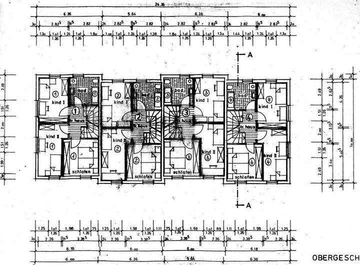
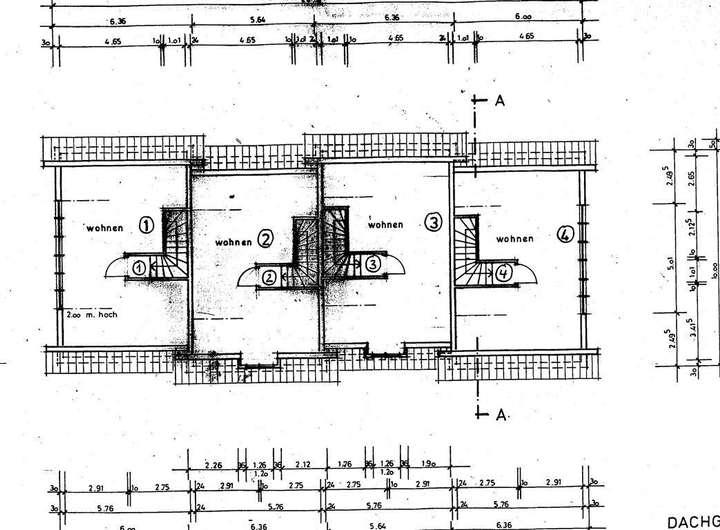
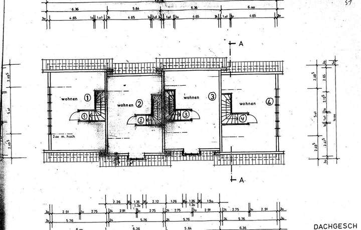
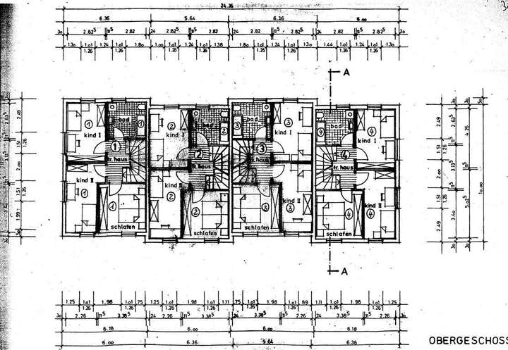
Grundriss
Grundriss EG
>
>
Grundriss OG
>
>
Grundriss OG
>
>
Immowelt Platin Partner -
>
>
Top 10 Immobilienpreis
>
>
ImmoScout24 Gold Partner -
>
>
Adresse
35619 Braunfels
Interessante Orte
Preis- und Lageinformationen
Preistrend für Bestandsimmobilien in Braunfels