In zentraler Lage von Düsseldorf-Flingern präsentieren wir Ihnen ein attraktives Mehrfamilienhaus, das sich ideal für Kapitalanleger und Investoren eignet. Auf einer Grundstücksfläche von ca. 261 m² erstreckt sich eine Gesamtwohnfläche von rund 584 m² sowie eine zusätzliche Gewerbefläche von ca. 138 m². Die Immobilie umfasst insgesamt 11 Wohneinheiten und 1 Gewerbeeinheit – eine seltene Kombination, die stabile Einnahmen sichert und gleichzeitig Raum für Wertsteigerung bietet.
Jede der Wohneinheiten verfügt über einen Balkon, der den Wohnkomfort deutlich erhöht und die Attraktivität für Mieter zusätzlich steigert. Das Gebäude ist vollständig unterkellert und mit einer Gasetagenheizung ausgestattet, was eine unkomplizierte Verwaltung der Heizkosten ermöglicht.
Durch gezielte Mietanpassungen ließe sich die Jahresnettokaltmiete deutlich steigern, wodurch sich der Faktor auf 21,6 verbessert und die Rendite auf attraktive 4,62 % anheben lässt.
Ein weiteres Plus bietet das Dachgeschoss, das Potenzial für zusätzlichen Ausbau bereithält. Hier könnte weiterer Wohn- oder Büroflächen geschaffen werden – eine wertsteigernde Möglichkeit, die das Investitionsprofil dieser Immobilie noch interessanter macht.
Die Lage in Düsseldorf-Flingern überzeugt durch ihre hervorragende Infrastruktur. Einkaufsmöglichkeiten, Restaurants, Cafés, Schulen und Kindergärten sind fußläufig erreichbar. Dank der sehr guten Anbindung an den öffentlichen Nahverkehr sowie die schnelle Erreichbarkeit der Autobahnen A46 und A52 ist die Immobilie sowohl für Berufspendler als auch für Innenstadtliebhaber äußerst attraktiv. Besonders die Nachfrage nach modernen 2- bis 3-Zimmer-Wohnungen ist in diesem Stadtteil konstant hoch, was eine langfristige und sichere Vermietbarkeit gewährleistet.
Solides Mehrfamilienhaus mit großem Zukunftspotenzial in Düsseldorf-Flingern
40235 Düsseldorf
Die vollständige Adresse der Immobilie erhalten Sie vom Anbieter.
Auf Karte anzeigen
Die vollständige Adresse der Immobilie erhalten Sie vom Anbieter.
Finanzierungszertifikat
In nur zwei Minuten zu Ihrem persönlichen Finanzierungszertifkat.
Infos
| Haustyp | Mehrfamilienhaus |
|---|---|
| Wohnfläche ca. | 722 m2 |
| Grundstücksfläche | 261 m2 |
| Zimmer | 11 |
Kosten
| Kaufpreis |
1.900.000 € |
|---|---|
| Provision |
5.95 % inkl. MwSt. Bei Abschluss eines notariellen Kaufvertrages ist eine Käuferprovision vom Käufer in Höhe von 5.95 % inkl. MwSt. aus dem Kaufpreis fällig. |
| Mieteinnahmen | 7.170 € |
Finanzierungsrechner:
Kaufpreis:
600.000 €
Eigenkapital:
600.000 €
Monatliche Rate
0 €
Effektiver Jahreszins
0 %
Sollzinsbindung
10 Jahre
Bausubstanz & Energieausweis
| Baujahr | 1929 |
|---|---|
| Objektzustand | Gepflegt |
| Qualität der Austattung | Normal |
| Heizungsart | Gas-Heizung |
| Wesentliche Energieträger | Gas |
| Energieausweis | liegt vor |
| Energieausweistyp | Bedarfsausweis |
| Energieverbrauchskennwert | 451,9 kWh/(m²*a) |
| Energieeffizienzklasse | H |
451,9
kWh/(m²*a)
Energieeffizienzklasse H
- A+
- A
- B
- C
- D
- E
- F
- G
- H
- 0
- 25
- 50
- 75
- 100
- 125
- 150
- 175
- 200
- 225
- >250
Beschreibung des Objekts
Ausstattung
-Balkone
-Gaszentralheizung
-11 Wohneinheiten
-1 Gewerbeeinheit
-Ausbaupotenzial
-Mietsteigerungspotenzial
-Vollständig unterkellert
-Wohnfläche ca. 584 Quadratmeter
-Gewerbefläche ca. 138 Quadratmeter
Lage
Das Mehrfamilienhaus befindet sich in Düsseldorf-Flingern, einem der gefragtesten Stadtteile der Landeshauptstadt. Flingern zeichnet sich durch seine zentrale Lage, die hervorragende Infrastruktur und die lebendige Mischung aus urbanem Flair und gewachsenen Wohnquartieren aus.
Geschäfte des täglichen Bedarfs, Supermärkte, Bäckereien, Ärzte und Apotheken sind fußläufig erreichbar. Auch zahlreiche Cafés, Restaurants und kleine Boutiquen prägen das Straßenbild und sorgen für eine hohe Lebensqualität.
Die Anbindung an den öffentlichen Nahverkehr ist ausgezeichnet: Mehrere U-Bahn- und Straßenbahnlinien sowie Busverbindungen ermöglichen eine schnelle Erreichbarkeit der Düsseldorfer Innenstadt, des Hauptbahnhofs und anderer Stadtteile. Über die nahegelegenen Autobahnen A46 und A52 besteht zudem eine sehr gute Anbindung an das regionale und überregionale Verkehrsnetz.
Kindergärten, Schulen und diverse Freizeitmöglichkeiten, wie Parks, Fitnessstudios und kulturelle Einrichtungen, befinden sich in unmittelbarer Umgebung.
Insgesamt verbindet die Lage urbanes Wohnen mit einer ausgezeichneten Infrastruktur und hoher Wohnqualität, was Flingern zu einer besonders beliebten Wohngegend macht.
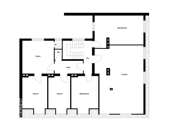
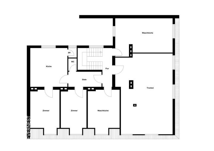
Grundriss
Kellergeschoss
>
>
Erdgeschoss
>
>
1-3 Obergeschoss
>
>
Dachgeschoss
>
>
Adresse
40235 Düsseldorf
Interessante Orte
Preis- und Lageinformationen
Preistrend für Bestandsimmobilien in Flingern Nord