Auf dem Gelände der ehemaligen Schlossgärtnerei in unmittelbarer Nähe zum Großherzoglichen Palais im beliebten Luftkurort Rastede ist dieses moderne und bemerkenswerte Wohngebiet PALAISGARTEN entstanden. Die Zufahrt erfolgt von der Oldenburger Straße umrahmt von einem herrschaftlichen Entree sowie dem denkmalgeschützten Hofgärtnerhaus vor den Toren der Residenzstadt Oldenburg. In diesem beeindruckenden Wohngebiet wurde auch dieses aparte Doppelhaus errichtet mit jeweils 2 Wohnungen pro Hauseingang. Luxus und Komfort sind die selbstverständlichen Charaktereigenschaften dieser durchdachten Eigentumswohnungen, die sich ferner auszeichnen durch perfekte Qualität und hochwertigste Materialien. Die Beheizung sowie die Warmwasseraufbereitung erfolgt über eine moderne Gas- Brennwerttherme mit Solarunterstützung.
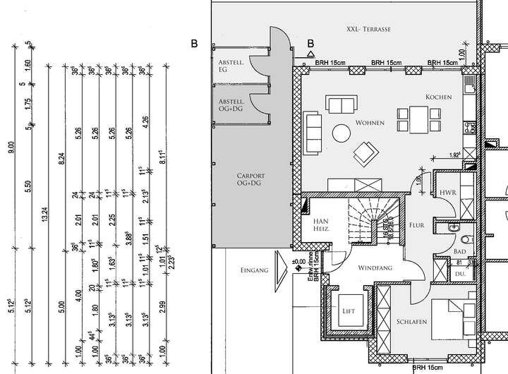
Zum Verkauf steht nunmehr die Doppelhaushälfte mit zwei eindrucksvollen Wohneinheiten. Zum einem die attraktive Erdgeschosswohnung mit reizvollem, geschützt liegenden Gartenbereich. Diese Wohnung besticht durch eine gelungene Raumaufteilung sowie lichtdurchflutete Räumlichkeiten durch bodentiefe Fensterelemente. Die Wohnung im Erdgeschoss in einen großzügigen Wohn- und Essbereich mit Zugang zur großen Gartenterrasse in idealer Südwest- Ausrichtung, ein offen gestalteter Kochbereich, ein Schlafzimmer, ein modernes Duschbad mit ebenerdiger Dusche, ein Hauswirtschaftsraum sowie Flurbereich. Die Fußböden in der Erdgeschosswohnung sind einheitlich mit einem dunklen Fliesenboden in Holzoptik gestaltet. Der Badbereich wurde mit hochwertigen hellen Wand- und Bodenfliesen gestaltet. Weiterhin gehören zur Erdgeschosswohnung ein PKW- Stellplatz sowie ein Geräte- und Fahrradraum.
Im Obergeschoss sowie im Dachgeschoss des Hauses präsentiert sich eine beeindruckende Penthouse- Wohnung über 2 Etagen mit Personenaufzug.
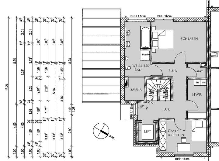
Im Obergeschoss bietet dieses Mietangebot ein geräumiges Schlafzimmer, ein Gäste- bzw. Arbeitszimmer, ein grandioses Wellnessbad mit großer Sauna, begehbarer Regen- Dusche, Badewanne, aparter Waschtischanlage, Pissoir und WC, Gäste- WC, Hauswirtschaftsraum sowie Flurbereich.
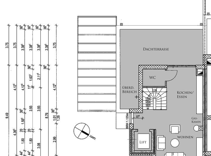
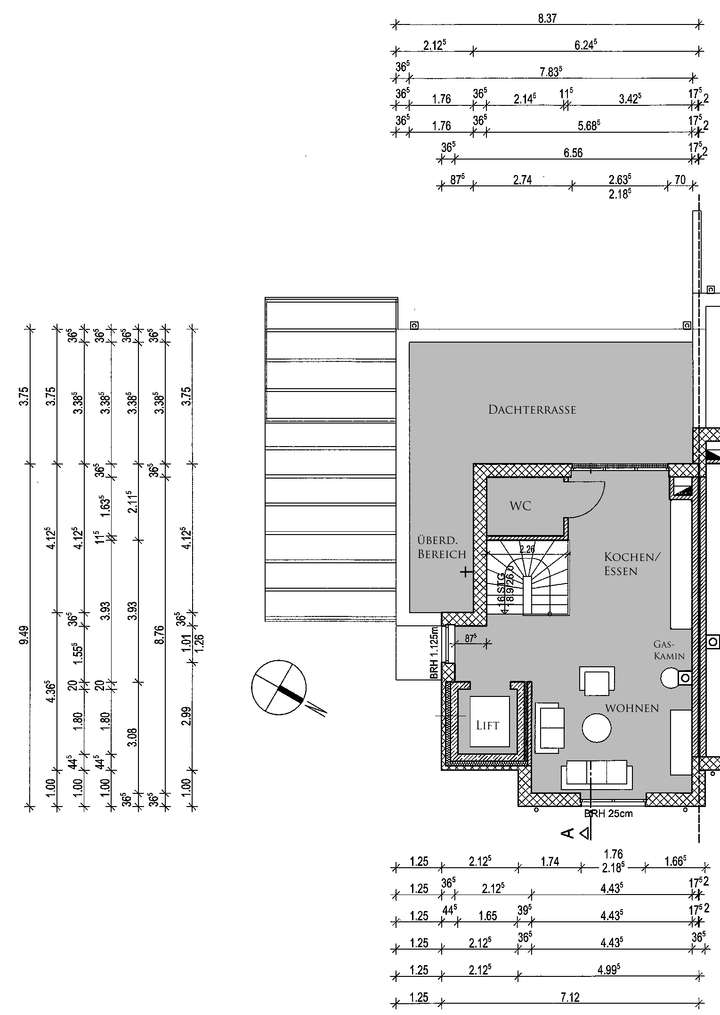
Mit dem eigenen Fahrstuhl als auch über die stilvolle Granittreppenanlage gelangen Sie in die oberste Etage. Das Dachgeschoss bietet einen imposanten Wohn- und Essbereich mit modernem Gaskamin, eine offen gestaltete Kocharea mit hochwertiger Einbauküche, ein weiteres WC sowie eine große Bankirai- Dachterrasse in optimaler Südwest- Ausrichtung. Die gesamte Penthouse- Wohnung ist mit einem einheitlichen dunklen Fliesenfußbodenbelag in Holzoptik versehen. Die Badbereiche wurden mit stilvollen Wandfliesen ansprechend und modern gestaltet. Der Wohnbereich der Penthouse- Wohnung sowie alle Badbereiche sind mit einer modernen Fußbodenheizung ausgestattet (alle weiteren Räume besitzen moderne Flachheizkörper).
Außergewöhnliches Zweifamilienhauses mit Lift und zwei imposanten Wohneinheiten in Rastede/ Zentrum
26180 Rastede
Die vollständige Adresse der Immobilie erhalten Sie vom Anbieter.
Auf Karte anzeigen
Die vollständige Adresse der Immobilie erhalten Sie vom Anbieter.
Finanzierungszertifikat
In nur zwei Minuten zu Ihrem persönlichen Finanzierungszertifkat.
Infos
| Haustyp | Doppelhaushaelfte |
|---|---|
| Wohnfläche ca. | 197 m2 |
| Grundstücksfläche | 350 m2 |
| Bezugsfrei ab | z. Zt. vermietet |
| Zimmer | 5 |
| Schlafzimmer | 3 |
| Badezimmer | 2 |
| Garage/Stellplatz | Carport |
Kosten
| Kaufpreis |
769.000 € |
|---|---|
| Provision |
Käuferprovision: 3,0 % des Kaufpreises inkl. 19% MwSt. |
Finanzierungsrechner:
Kaufpreis:
600.000 €
Eigenkapital:
600.000 €
Monatliche Rate
0 €
Effektiver Jahreszins
0 %
Sollzinsbindung
10 Jahre
Bausubstanz & Energieausweis
| Baujahr | 2014 |
|---|---|
| Qualität der Austattung | Gehoben |
| Heizungsart | Fußbodenheizung |
| Wesentliche Energieträger | Erdgas leicht |
| Energieausweis | liegt vor |
| Energieausweistyp | Bedarfsausweis |
| Energieverbrauchskennwert | 51,9 kWh/(m²*a) |
Beschreibung des Objekts
Ausstattung
• die Außenfassaden sind als gegliederte Fassaden mit Wärmeverbundsystem ausgeführt
• die Gebäude sind entsprechend den Anforderungen der Energieeinsparverordnung in einem KFW 70 Standard erbaut.
• im Treppenhaus sind die Tritt- und Setzstufen sowie der Podestbelag mit anthrazitfarbenen Granitplatten gestaltet
• hochwertige Fenster mit Kunststoffprofilsystem (außen anthrazit/ innen weiss) mit umlaufender Winddichtung; alle Fenster mit Dreifachisolierverglasung
• Außen- Vertikal- Jalousetten zum Sonnenschutz an sämtlichen Fenstern
• Aufzugsanlage vom Erdgeschoss bis ins Dachgeschoss der Firma OSMA
• Wohnungseingangstüren in schwerer Ausführung mit weißer glatter Oberfläche und Türspion, Türdrücker aus Edelstahl
• Innentüren der Wohnung als glatte weiße Qualitätstüren aus Holz mit entsprechender Holzzarge und Edelstahldrückergarnituren
• sämtliche Wand- und Deckenflächen sind mit strukturloser Glattvliestapete versehen und in weiß gestrichen
• Klingel- und Gegensprechanlage mit Videoauge mit entsprechender Gegensprechanlage in den Wohnungen zur besonderen Sicherheit
• alle Wohnungen werden zentral über eine Satellitenschüssel mit TV- Signal versorgt
• Beheizung der Wohnungen je mit einer modernen Gas- Brennwerttherme mit Solarunterstützung
• gemeinschaftlicher Technikraum im Erdgeschoss mit je einer Heizungsanlage je Wohnung
• großzügige Carport- Anlage mit einem PKW- Stellplatz für die Penthouse-Wohnung sowie weitere drei PKW- Stellplätze auf dem Hausgrundstück
Erdgeschoss- Wohnung
• bodentiefe Fensterelemente sorgen für ein lichtdurchflutetes Wohngefühl
• Zugang vom Wohnbereich zum rückwärtigen, geschützt liegenden Gartenbereich
• offen gestalteter Kochbereich
• Duschbad in den Wandbereichen mit weißen und cremefarbenen Fliesen gestaltet, ausgestattet mit cremefarbenen Bodenfliesen, begehbarer Dusche mit Echtglasduschabtrennung, Waschtisch mit Unterschrank und Spiegelschrank sowie wandhängendes WC
• Anschlüsse für Waschmaschine und Trockner im Abstellraum vorhanden
• Terrasse in idealer Südausrichtung, Bodenbelag gestaltet mit Terrassenplatten
Penthouse- Wohnung über 2 Etagen im 1. Obergeschoss und Dachgeschoss
• Lift für die Wohnung vom Erdgeschoss bis ins Dachgeschoss (hält in jeder Etage)
• Fußböden einheitlich gestaltet mit einer aparten Fliese in Holzoptik
• Gaskamin als optisches Highlight im Wohn- und Kochbereich
• Badbereich im 1. Obergeschoss mit Badewanne, begehbarer Dusche, Waschtischanlage mit zwei Waschtischen und wandhängendem WC
• Gäste- WC im Dachgeschoss mit Waschtischanlage, Herren- WC und wandhängendem WC; Sanitärobjekte in weiss
• Wellness- Sauna vom Badbereich aus begehbar
• notwenige Anschlüsse für Waschmaschine und Trockner sind im HWR installiert
• die Einbauküche ist bereits im angegebenen Kaufpreis vorhanden
• Balkon in idealer Südausrichtung, Bodenbelag gestaltet mit pflegeleichten Dielen in Holzoptik
Lage
Der PALAISGARTEN ist ein beeindruckendes Wohngebiet auf dem Grund der ehemaligen Schlossgärtnerei angrenzend an das Rasteder Schloss und gegenüber der beliebten Parkanlage Schlossgarten. Sie wohnen in ruhiger Lage genießen dennoch alle Vorzüge einer zentralen Lage inmitten des Luftkurortes Rastede.
Vielfältige Einkaufsmöglichkeiten, Ärzte, Apotheken sowie diverse Dienstleistungsunternehmen erreichen Sie in wenigen Gehminuten. Freizeitangebote u. a. ein vielseitiges Gastronomieangebot, Sporthallen, Freibad sowie Hallenbad, ideale Laufstrecken befinden sich unmittelbar vor Ihrer Haustür. Auch ein Golfplatz befindet sich nur ca. 10 Minuten Entfernung.
Sämtliche Schulstufen bis zur gymnasialen Oberstufe, der Bahnhof sowie Bushaltestellen sind fußläufig zu erreichen. Ebenso verfügen Sie in Rastede über eine ideale Autobahnanbindung (Oldenburg ca. 15 Autominuten, Bad Zwischenahn ca. 20 Autominuten, Flughafen Bremen in ca. 45 Autominuten
Grundriss
Grundriss Erdgeschoss
>
>
Grundriss.Dachgeschoss
>
>
Adresse
26180 Rastede
Interessante Orte
Preis- und Lageinformationen
Preistrend für Bestandsimmobilien in Rastede