Das Baugrundstück mit altem Baumbestand in Top-Lage auf dem Hülser Berg bietet Ihnen einen unverbaubaren Naturblick. Es eignet sich perfekt für die Errichtung eines großzügigen Einfamilienhauses.
Der Entwurf des renommierten Architekturbüros von Houwald zeigt Ihnen eine exklusive Planung, die bei Bedarf nach eigenen Wünschen angepasst werden kann. Das Baugrundstück wird verkauft unter der Voraussetzung, den Architekten-Entwurf des Wohnhauses umzusetzen.
Die ländliche Umgebung und die hochwertige Bebauung der unmittelbaren Nachbarschaft zeichnen das Grundstück aus. Der Hülser Berg ist mit 63 Metern die höchste natürliche Erhebung in der Stadt Krefeld, einem Naherholungsgebiet mit dichtem Wald, Wander- und Laufpfaden.
Der Ortsteil Krefeld-Hüls bietet Kindergärten, z.B. liegt der Waldkindergarten nur wenige Meter vom Grundstück entfernt, sowie Schulen und Einkaufsmöglichkeiten aller Art.
Die hervorragenden Verkehrsanbindungen erschließen über die A40 und A57 den Ballungsraum der Landeshauptstadt Düsseldorf und auch die Großstädte des Ruhrgebiets. Die Haltestelle der Buslinie 060 befindet sich 50 Meter vor dem Grundstück und erschließt den Anwohnern die Innenstadt Krefelds über den öffentlichen Personennahverkehr.
Einzigartiges Baugrundstück am Hülser Berg in bester Lage für großzügige Villa / Bungalow
47802 Krefeld
Die vollständige Adresse der Immobilie erhalten Sie vom Anbieter.
Auf Karte anzeigen
Die vollständige Adresse der Immobilie erhalten Sie vom Anbieter.
Finanzierungszertifikat
In nur zwei Minuten zu Ihrem persönlichen Finanzierungszertifkat.
Infos
| Vermarktungsart | Kaufen |
|---|---|
| Grundstücksfläche | 1.500 m2 |
Kosten
| Miete pro Jahr |
0 € |
|---|---|
| Provision | Nein |
Finanzierungsrechner:
Kaufpreis:
600.000 €
Eigenkapital:
600.000 €
Monatliche Rate
0 €
Effektiver Jahreszins
0 %
Sollzinsbindung
10 Jahre
Beschreibung des Objekts
Lage
Am Rande des Landschaftsschutzgebietes Hülser Berg/Hülser Bruch gelegen, verbinden Sie hier die Annehmlichkeiten des Ruhrgebietes, der Landeshauptstadt Düsseldorf und Venlos mit ihren vielfältigen kulturellen Angeboten und den großzügigen Einkaufsmöglichkeiten mit einem idyllischen, ländlichen Leben. Hervorzuheben ist hier der Blick auf Rehe und Füchse.
Optimale Verkehrsanbindungen an die Autobahnen A40 und A57 garantieren eine bestmögliche Erreichbarkeit des gesamten Ballungsraumes Rhein-Ruhr und die Landeshauptstadt Düsseldorf. Über die Buslinie 060 oder die nahe gelegene Nieper/Moerser Straße erreichen Sie problemlos die Stadtzentren von Moers und Krefeld.
Weitere Dokumente
Grundstück-Talring-2.pdfNotar-Grundstück-Talring.pdf
Kosten-BV-Talring147.pdf
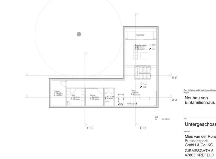
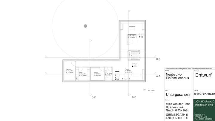
Grundriss
Lageplan-Talring-Entwurf
>
>
Wohnflaeche-UG-Talring-Entwurf
>
>
Wohnflaeche-EG-Talring-Entwurf
>
>
Wohnflaeche-OG-Talring-Entwurf
>
>