Das zweistöckige, freundliche und gepflegte 3-Familienhaus steht ab sofort zum Verkauf. Es handelt sich um eine 4-Zimmer Maisonett-
wohnung mit ca. 92 qm und 2 grundrissgleiche 3-Zimmerwohnun-gen von ca. 74 qm im EG und OG. Zu jeder Wohnung gehört ein Aussenstellplatz und ein Dachspeicherraum. Beide Wohnungen im
EG haben Terasse und einen Gartenanteil, die Wohnung im OG und die Maisonett-Whg. besitzen Balkone. Außerdem gibt es im Heizraum noch Platz für die jeweiligen Maschmaschinen. Alle drei Wohnungen sind vermietet.
Da es für die Immobilie eine Teillungserklärung gibt erwirbt der Käufer 3 Eigentumswohnungen. Die Wohnungen können also ggf. auch getrennt veräußert werden.
Sie erwerben die Immobilie provisionsfrei, direkt vom Eigentümer.
Finanzierungszertifikat
In nur zwei Minuten zu Ihrem persönlichen Finanzierungszertifkat.
Infos
| Haustyp | Mehrfamilienhaus |
|---|---|
| Etagenzahl | 2 |
| Wohnfläche ca. | 243 m2 |
| Nutzfläche | 43 m2 |
| Grundstücksfläche | 493 m2 |
| Bezugsfrei ab | 16.9.2025 |
| Zimmer | 11 |
| Schlafzimmer | 8 |
| Badezimmer | 3 |
| Garage/Stellplatz | Außenstellplatz |
| Anzahl Garage/Stellplatz | 3 |
Kosten
| Kaufpreis |
690.000 € |
|---|---|
| Provision | Nein |
| Mieteinnahmen | 2.700 € |
Finanzierungsrechner:
Kaufpreis:
600.000 €
Eigenkapital:
600.000 €
Monatliche Rate
0 €
Effektiver Jahreszins
0 %
Sollzinsbindung
10 Jahre
Bausubstanz & Energieausweis
| Baujahr | 2000 |
|---|---|
| Objektzustand | Gepflegt |
| Qualität der Austattung | Normal |
| Heizungsart | Gas-Heizung |
| Wesentliche Energieträger | Gas |
| Energieausweis | liegt vor |
| Energieausweistyp | Bedarfsausweis |
| Energieverbrauchskennwert | 123,3 kWh/(m²*a) |
| Energieeffizienzklasse | D |
123,3
kWh/(m²*a)
Energieeffizienzklasse D
- A+
- A
- B
- C
- D
- E
- F
- G
- H
- 0
- 25
- 50
- 75
- 100
- 125
- 150
- 175
- 200
- 225
- >250
Beschreibung des Objekts
Ausstattung
Laminatboden, Fliesen, Gas-Zentralheizung mit Heizkörpern
Lage
Die Wohnung liegt in Wörsdorf, dem größten Stadtteil von Idstein. Neben guter Verkehrsanbindung ( A3 u. Bahnhof ) überzeugt Wörsdorf mit guter Infrastruktur ( 2 Discounter, Bank, Apotheke ), sowie 2 Kitas u. einer Grundschule.
Weitere Dokumente
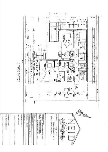
EA_Reichenberger2Grundriss
Grundriss EG
>
>
Grundriss OG
>
>
Adresse
Reichenberger Str. 60a, 65510 Idstein
Interessante Orte
Preis- und Lageinformationen
Preistrend für Bestandsimmobilien in Idstein