Auf dem Grundstück (Gesamtgröße 1064m²) wurden 12 Wohnungen, 9 Tiefgarageneinzelstellplätze, 4 Aussenstellplätze, Fahrradabstellplätze sowie 1 Kinderspielplatz mit Gemeinschaftsgarten errichtet. Die 4 Erdgeschosswohnungen verfügen jeweils über großzügige Gärten, welche als Sondernutzungsrecht diesen Einheiten zugewiesen sind. Die Einheiten im 1. Obergeschoss verfügen über einen Balkon und die Dachwohnungen über Dachloggien. Darüber hinaus verfügt die fertiggestellte Neubauanlage über Einbauküchen samt Geräten und einen Aufzug von KG bis DG.
Das Gebäude wurde nachhaltig und ressourcenschonend in einer innovativen Holz- und Beton-Hybridbauweise errichtet und ist nach den strengen Standards von BIRN zertifiziert.
Die Außenwände ebenso wie die Wohnungstrennwände werden bei diesem Mehrfamilienhaus in Massivholz ausgeführt, was sowohl zur Energieeffizienz beiträgt als auch nachhaltiges Bauen in den Fokus stellt.
Das BIRN-Zertifikat bestätigt, dass das Gebäude umweltfreundlich und ressourcenschonend konzipiert ist. Es bewertet Faktoren wie den Einsatz erneuerbarer Energien, ökologische Materialien und garantiert den Bewohnern ein angenehmes Raumklima und eine hohe Wohnqualität.
Mit der Fertigstellung erreicht das Mehrfamilienhaus zudem den KfW 40 QNG-Standard. Dieser steht für besonders energieeffiziente und klimafreundliche Neubauten. Darüber hinaus sorgt der KfW 40 QNG-Standard für langfristig reduzierte Betriebskosten.
Für Kapitalanlager gibt es eine steuerliche Förderung AFA: Degressive und Sonder-AFA. WEITERE INFORMATIONEN HIERZU AUF ANFRAGE
MAIER - Neubau bezugsfertig: 2-Zi-Terrassen-WHG mit EBK, TG und Gartenanteil ca. 108m² - WE 3
85599 Vaterstetten
Die vollständige Adresse der Immobilie erhalten Sie vom Anbieter.
Auf Karte anzeigen
Die vollständige Adresse der Immobilie erhalten Sie vom Anbieter.
Finanzierungszertifikat
In nur zwei Minuten zu Ihrem persönlichen Finanzierungszertifkat.
Infos
| Wohnungskategorie | Terrassenwohnung |
|---|---|
| Etage | 0 von 2 |
| Wohnfläche ca. | 58 m2 |
| Nutzfläche | 176 m2 |
| Bezugsfrei ab | Sofort |
| Zimmer | 2 |
| Schlafzimmer | 1 |
| Badezimmer | 1 |
| Garage/Stellplatz | Tiefgarage |
| Anzahl Garage/Stellplatz | 1 |
Kosten
| Kaufpreis |
529.000 € |
|---|---|
| Preis für Garage/Stellplatz | 22.500 € |
| Provision | Nein |
Finanzierungsrechner:
Kaufpreis:
600.000 €
Eigenkapital:
600.000 €
Monatliche Rate
0 €
Effektiver Jahreszins
0 %
Sollzinsbindung
10 Jahre
Bausubstanz & Energieausweis
| Baujahr | 2025 |
|---|---|
| Objektzustand | Erstbezug |
| Qualität der Austattung | Gehoben |
| Heizungsart | Zentralheizung |
| Wesentliche Energieträger | Erdwärme |
| Energieausweis | liegt vor |
| Energieausweistyp | Bedarfsausweis |
| Energieverbrauchskennwert | 8,3 kWh/(m²*a) |
| Energieeffizienzklasse | A+ |
8,3
kWh/(m²*a)
Energieeffizienzklasse A+
- A+
- A
- B
- C
- D
- E
- F
- G
- H
- 0
- 25
- 50
- 75
- 100
- 125
- 150
- 175
- 200
- 225
- >250
Beschreibung des Objekts
Ausstattung
Hochwertige Ausstattung für komfortables Wohnen
* umweltfreundliche und innovative Holz- und Beton-Hybridbauweise (KfW 40 QNG-Standard)
* Degressive und Sonder-AFA für Kapitalanleger (WEITERE INFORMATIONEN HIERZU AUF ANFRAGE)
* Gartenanteil WE1 ca. 108m² (Sondernutzungsrecht)
* Erdgeschosswohnungen jeweils mit eigenem Gartenanteil und Terrasse
* Wohnungen im Obergeschoss und Dachgeschoss jeweils mit Balkon
* Fenster und Fenstertüren mit 3-Scheiben-Isolierverglasung und elektrisch betriebenen Rollläden, im DG mit elektrisch betriebenen Zip-Rollos
* im Dachgeschoss elektrisch betriebene Dachflächenfenster mit außenliegendem Sonnenschutz
* Dielenparkett, Eiche geölt, in den Wohnräumen
* Großformatiges Feinsteinzeug in den Bädern und in den Fluren
* Duschbäder mit hochwertiger Sanitärausstattung bestehend aus Dusche, Waschbecken, WC
* Fußbodenheizung mit Einzelraumregelung
* Moderne Einbauküchen – mit Siemens-Elektrogeräten hochwertig ausgestattet
* Waschmaschinenstellplatz mit Anschluss in der Wohnung bzw. im Waschraum im Kellergeschoss
* Gegensprechanlage
* abschließbare Kellerabteile
* Tiefgaragen-Stellplatz oder/und Außenstellplatz auf Wunsch
* Aufzug
* Gemeinschaftsgarten mit Sitzgelegenheit und Spielplatz
Lage
Parsdorf: Naturnahe und verkehrsgünstige Lage
Ländliche Umgebung und ausgezeichnete Infrastruktur
Das neu erbaute Wohnhaus mit zwölf Wohneinheiten und einer Tiefgarage liegt in ruhiger und naturnaher Lage in Parsdorf, einem Ortsteil der Gemeinde Vaterstetten.
Parsdorf liegt ca. 15 km östlich der bayerischen Landeshauptstadt München und direkt an die A94 angebunden. Das Autobahnkreuz München-Ost ist nur wenige Fahrminuten entfernt.
Im Ort finden Sie mit dem Gewerbegebiet Parsdorf sowie dem Outlet Center Parsdorf City hervorragende Einkaufsmöglichkeiten. Restaurants, der Kindergarten und die Grundschule sind fußläufig zu erreichen. Ärzte, Apotheken sowie weiterführende Schulen befinden sich in den Nachbargemeinden.
Die Umgebung ist ländlich und der nahe Ebersberger Forst mit seinen zahlreichen Rad- und Wanderwegen bietet schöne Möglichkeiten für Sport und Erholung. Auch der Wildpark Poing oder die MAXXARENA in Kirchheim garantieren Freizeitspaß.
Mit dem Auto sind es etwa 5 Minuten zur Messe München. In die Münchner Innenstadt sind es knapp 25 Minuten. In ebenfalls 25 Minuten erreicht man über die Flughafentangente den Münchner Flughafen.
Die S-Bahn fährt ab Baldham oder Grub in ca. 25 Minuten in die Münchner Innenstadt. Zu beiden S-Bahn-Stationen besteht jeweils eine gute ÖPNV-Busanbindung.
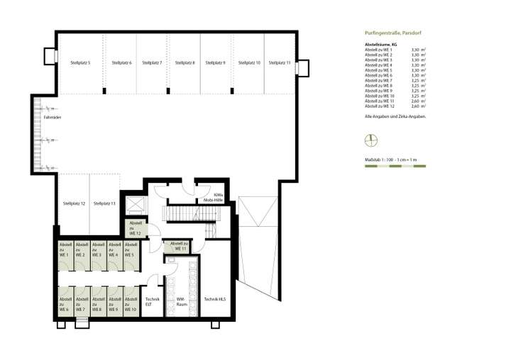
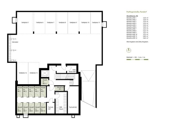
Grundriss
Grundriss_WE3
>
>
Grundriss_KG
>
>
Adresse
85599 Vaterstetten
Interessante Orte
Preis- und Lageinformationen
Preistrend für Bestandsimmobilien in Vaterstetten