Die um 1901 erbaute Villa Baunach in Kronberg-Schönberg ist ein herausragendes Beispiel für den Jugendstil im Taunus. Das imposante Gebäude liegt in einer bevorzugten Lage mit wunderschönem Weitblick und gehört zum geschützten Kulturerbe in Hessen.
Der Baukörper ist vielschichtig gegliedert, einzelne Gebäudeflügel und Erker treten aus dem Grundvolumen hervor und finden Ihren Abschluss in abwechslungsreichen Dachformen. Die vielfältige Dachlandschaft aus Sattel und Walmdächern verleiht der Villa einen lebendigen und repräsentativen Charakter.
Das gesamte Dach wurde gerade liebevoll erneuert und saniert. In diesem Zuge wurden auch die aufwendigen Zierelemente und das Fachwerk saniert und in teils aufwendiger Handarbeit rekonstruiert.
Die Fassade ist in hellem Putz gehalten, wodurch die markanten Fensteröffnungen in den Vordergrund treten. Die Fenster wurden erneuert, hier wurde ein harmonisches Erscheinungsbild in Verbindung mit zeitgemäßer Sicherheitsarchitektur umgesetzt.
Das Farbkonzept der Außenfassade, welches Putzgestaltung, Biberschwänze auf dem Dach, Fachwerk und Zierelemente, Sockel und die Fensterrahmen beinhaltet, schafft eine Atmosphäre, die sowohl Geborgenheit als auch Offenheit ausstrahlt.
Der Keller wurde aufwendig saniert, trockengelegt, eine Drainage eingebaut und erstmals mit einer Bodenplatte versehen.
Die Villa ist jetzt bereit für einen neuen Innenausbau, hier können die individuellen Gestaltungswünsche verwirklicht werden, die technisch notwendigen Arbeiten sind im wesentlichen bereits erfolgt. Die Raumaufteilung ist klassisch-großzügig mit viel Platz über alle Geschosse. Dieses Haus eignet sich ideal für eine Familie und bietet sowohl Raum zum Zusammenleben als auch vielfältige Rückzugsmöglichkeiten.
Die Villa Baunach ist ein Refugium für Menschen, die das Besondere suchen und Wert auf ein Zuhause legen, das nicht nur durch Komfort, sondern auch durch seine außergewöhnliche Persönlichkeit überzeugt.
Im Rahmen einer intensiven Zusammenarbeit der Eigentümer, Architekten und der unteren Denkmalschutzbehörde des Hochtaunuskreises wurde eine harmonisches Gesamtkonzept für diese Villa erarbeitet und alle denkmalrechtlichen Genehmigungen erteilt.
Individuelle Absprachen, die von der genehmigten Planung abweichen, müssen mit dem Denkmalamt getroffen werden, das komplette Team aus Architekten und Planern kann übernommen werden.
Jugendstilvilla mit Charakter und Geschichte
61476 Kronberg im Taunus
Die vollständige Adresse der Immobilie erhalten Sie vom Anbieter.
Auf Karte anzeigen
Die vollständige Adresse der Immobilie erhalten Sie vom Anbieter.
Finanzierungszertifikat
In nur zwei Minuten zu Ihrem persönlichen Finanzierungszertifkat.
Infos
| Haustyp | Villa |
|---|---|
| Etagenzahl | 3 |
| Wohnfläche ca. | 437 m2 |
| Nutzfläche | 85,46 m2 |
| Grundstücksfläche | 1.589 m2 |
| Bezugsfrei ab | nach Absprache |
| Zimmer | 10 |
| Schlafzimmer | 5 |
| Badezimmer | 3 |
| Garage/Stellplatz | Außenstellplatz |
| Anzahl Garage/Stellplatz | 3 |
Kosten
| Kaufpreis |
0 € |
|---|---|
| Provision |
3,57 % inkl. gesetzlicher MwSt. von aktuell 19 % bezogen auf den Kaufpreis |
Finanzierungsrechner:
Kaufpreis:
600.000 €
Eigenkapital:
600.000 €
Monatliche Rate
0 €
Effektiver Jahreszins
0 %
Sollzinsbindung
10 Jahre
Bausubstanz & Energieausweis
| Baujahr | 1901 |
|---|---|
| Denkmalschutzobjekt | Ja |
| Energieausweis | laut Gesetz nicht erforderlich |
Beschreibung des Objekts
Ausstattung
Die Immobilie wurde umfassend vorbereitet – entkernt und mit viel Aufwand in den Bereichen Dach, Fassade, Keller und Fenster saniert. Nun beginnt der spannende Teil: Die Innensanierung steht noch aus und es bietet sich die Gelegenheit, die Raumgestaltung ganz nach den eigenen Wünschen und Vorstellungen zu realisieren.
Ein besonderer Vorteil: Alle Bauteile liegen offen – so erhält der Käufer einen transparenten und vollständigen Eindruck vom Zustand des Hauses. Die wichtigsten Genehmigungen wurden bereits eingeholt, einschließlich des denkmalrechtlichen Raumbuchs.
Jetzt ist die ideale Gelegenheit, eigene Ideen und Vorstellungen einzubringen – von der Raumaufteilung bis zu den Materialien. Auch die Nutzung der Räume und Etagen kann flexibel an die Bedürfnisse des Käufers angepasst werden.
Lage
_ Am südlichen Fuße des Taunus gelegen befindet sich Kronberg im Taunus
_ Kronberg als staatlich anerkannter Luftkurort
_ Kronberg verdankt seinen Namen der prächtigen Burg, die bis in das 16. Jahrhundert Stammsitz des Rheinischen Ritterkreises war
_ Zusammen mit dem 44 Meter hohem Bergfried schmückt die Burg die gut erhaltene Altstadt Kronbergs
_ Opel-Zoo als weitere Hauptattraktion der Stadt nur wenige Minuten zu Fuß entfernt, ebenso wie das berühmte Schlosshotel Kronberg
_ Für zusätzliche Naherholung sorgen unter anderem die Streuobstwiesen sowie der Viktoriapark
_ Zahlreiche Museen, Märkte und Feste verleihen dem Ort ein reichhaltiges Kulturprogramm.
_ Über die A66 und A661 erreicht man die Frankfurter Innenstadt in ca. 25 Minuten
_ Den Flughafen sogar nach nur ca. 20 Minuten Fahrzeit
_ Die S-Bahnlinie 4 verbindet Kronberg und Frankfurt im Nahverkehr
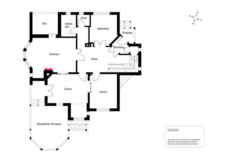
Grundriss
Erdgeschoss
>
>
Obergeschoss
>
>
Dachgeschoss
>
>
Spitzboden
>
>
Untergeschoss
>
>
Adresse
61476 Kronberg im Taunus
Interessante Orte
Preis- und Lageinformationen
Preistrend für Bestandsimmobilien in Kronberg im Taunus