Zum Verkauf kommt ein gepflegtes Einfamilienwohnhaus (Doppelhaushälfte) am Stadtrand von Frankfurt-Eschersheim ( Frankfurt Nord-Mitte ) gelegen. Das Wohnhaus ist im Jahr 1954 in massiver Bauweise errichtet worden.
Es stehen Ihnen ca. 105 qm Wohnfläche zur Verfügung, die sich nahezu gleichmäßig auf das Erd- und Obergeschoss verteilen.
Es sei an dieser Stelle erwähnt, dass das Erdgeschoss als Hochparterre ausgeführt wurde und somit über ein paar Treppenstufen zugänglich ist.
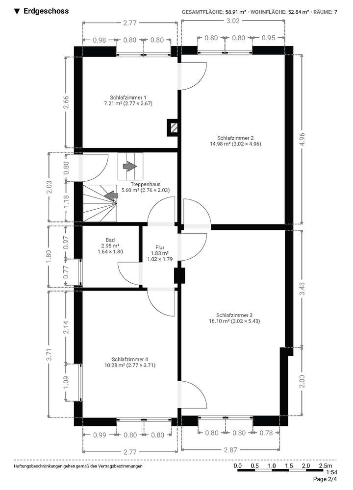
Auf der Erdgeschoss-Ebene sind insgesamt vier verschieden große Schlafräume sowie ein Duschbad untergebracht.
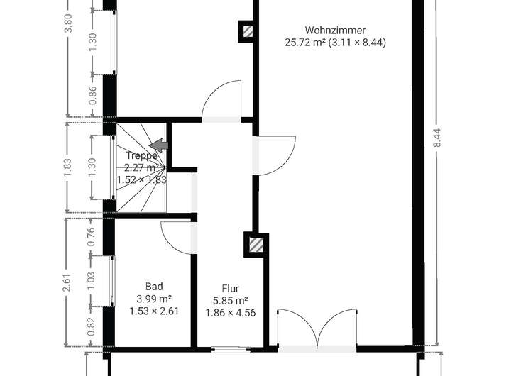
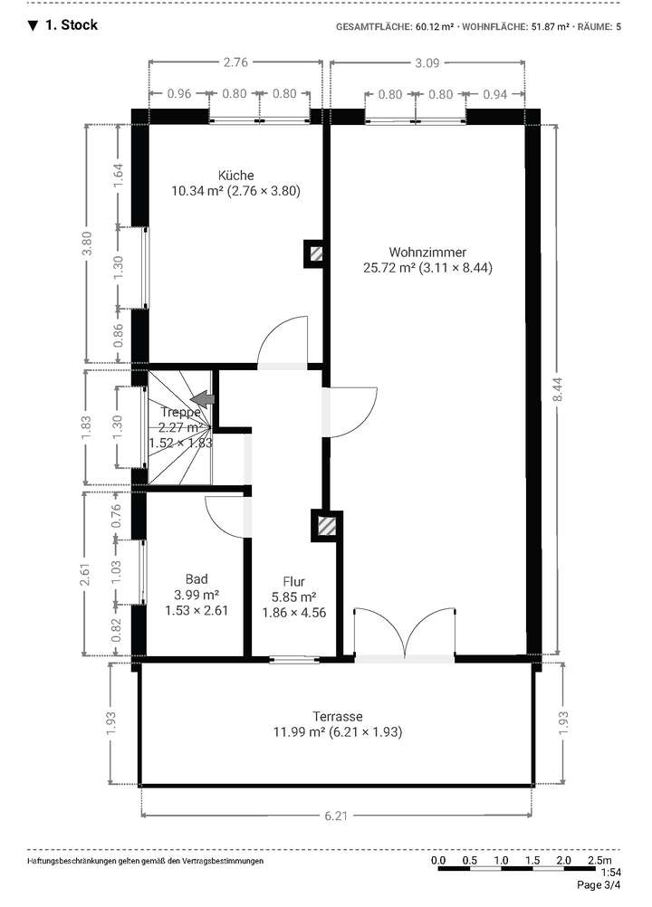
Im Obergeschoss des Hauses steht Ihnen ein weiteres Badezimmer, ein großes Wohn- und Esszimmer mit Balkon sowie die separate Küche zur Verfügung. Bei Bedarf könnte das Wohnzimmer noch unterteilt werden.
Von dem Balkon im Obergeschoss genießen Sie einen schönen Blick ins Grüne und in den eigenen Garten.
Ein großer Dachboden stellt bei Bedarf eine Ausbaureserve dar.
Das Wohnhaus wurden von den Eigentümern in Teilbereichen in den letzten Jahren modernisiert (z.B. neue Fußböden, neu tapeziert und gestrichen, teilweise neue Fenster, neues Pflaster in Bereich der Zuwegung und Außenanlage, teilweise Modernisierung der Bäder).
Insgesamt präsentiert sich die Doppelhaushälfte in einem gepflegten, dem Alter entsprechenden guten Zustand.
Das Grundstück ist ca. 433 qm groß und bietet Ihnen neben einem gepflasterten Stellplatz und einer neu angelegten Terrasse, auch noch ausreichend Grünfläche.
Haben wir Ihr Interesse geweckt? Nehmen Sie gerne Kontakt mit uns auf und wir lassen Ihnen gerne unser interaktives Exposé mit weiteren Informationen zum Haus und zur Lage zukommen.
**Charmante Doppelhaushälfte am Stadtrand mit schönem Grundstück**
60433 Frankfurt am Main
Die vollständige Adresse der Immobilie erhalten Sie vom Anbieter.
Auf Karte anzeigen
Die vollständige Adresse der Immobilie erhalten Sie vom Anbieter.
Finanzierungszertifikat
In nur zwei Minuten zu Ihrem persönlichen Finanzierungszertifkat.
Infos
| Haustyp | Doppelhaushaelfte |
|---|---|
| Etagenzahl | 3 |
| Wohnfläche ca. | 105 m2 |
| Grundstücksfläche | 433 m2 |
| Bezugsfrei ab | ab sofort |
| Zimmer | 5 |
| Schlafzimmer | 4 |
| Badezimmer | 2 |
| Garage/Stellplatz | Außenstellplatz |
| Anzahl Garage/Stellplatz | 2 |
Kosten
| Kaufpreis |
895.000 € |
|---|---|
| Provision |
3,57 % inkl. MwSt. |
Finanzierungsrechner:
Kaufpreis:
600.000 €
Eigenkapital:
600.000 €
Monatliche Rate
0 €
Effektiver Jahreszins
0 %
Sollzinsbindung
10 Jahre
Bausubstanz & Energieausweis
| Baujahr | 1954 |
|---|---|
| Letzte Sanierung | 2024 |
| Objektzustand | Modernisiert |
| Qualität der Austattung | Normal |
| Heizungsart | Zentralheizung |
| Wesentliche Energieträger | Gas |
| Energieausweis | liegt vor |
| Energieausweistyp | Bedarfsausweis |
| Energieverbrauchskennwert | 342,7 kWh/(m²*a) |
| Energieeffizienzklasse | H |
342,7
kWh/(m²*a)
Energieeffizienzklasse H
- A+
- A
- B
- C
- D
- E
- F
- G
- H
- 0
- 25
- 50
- 75
- 100
- 125
- 150
- 175
- 200
- 225
- >250
Beschreibung des Objekts
Lage
Verkehrsgünstige Lage am Stadtrand von Frankfurt/M., Stadtteil Eschersheim.
Sie erreichen vom Wohnhaus in 5-7 Minuten die Autobahn A 661, eine Bushaltestelle befindet sich in unmittelbarer Nähe.
Die nächste U-Bahn-Haltestelle mit Verbindungen nach Frankfurt - Innenstadt ist zu Fuß in ca 10 Minuten erreichbar.
Einkaufsmöglichkeiten und verschiedene Restaurant sind ebenso fußläufig bei Bedarf erreichbar. Ebenso befinden sich Kindergarten und diverse Schulen in der Nähe, auch ein Freibad ist gut erreichbar.
Trotz der stadtnahen Lage ist der Weg ins Grüne und zur Nidda ein kurzer, und damit Spaziergänge außerhalb des Ortsgebietes gut möglich.
Grundriss
Grundrissplan Kellergeschoss
>
>
Grundrissplan Erdgeschoss
>
>
Grundrissplan Obergeschoss
>
>
Adresse
60433 Frankfurt am Main
Interessante Orte
Preis- und Lageinformationen
Preistrend für Bestandsimmobilien in Eschersheim