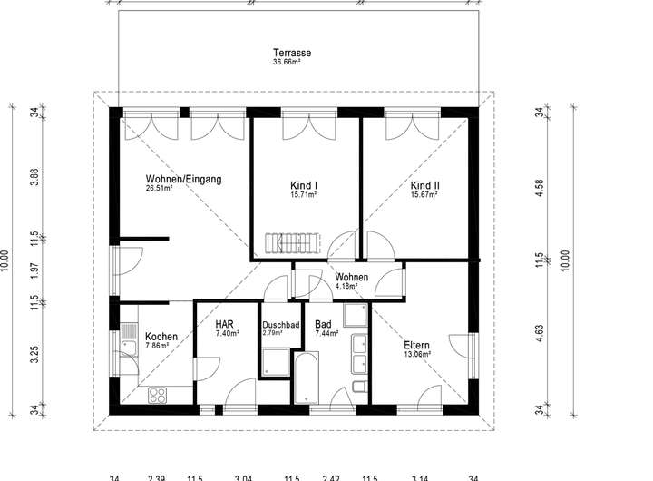
Am Ende einer idyllischen Einfahrt verbirgt sich dieser schöne Bungalow aus dem Baujahr 2018, welcher Komfort, Sicherheit und modernen Wohnstil vereint. Mit einer Wohnfläche von ca. 101 m² und einer Nutzfläche von ca. 49 m² im Dachgeschoss bietet dieses Haus vielfältige Nutzungsmöglichkeiten. Beheizt wird die Immobilie über eine zentrale Gasheizung mit Warmwasserspeicher, unterstützt durch Solarthermie.
Beim Betreten des Hauses werden Sie von der offenen Wohnküche, welche clever in den Wohn- und Essbereich integriert ist, herzlich in Empfang genommen. Die bodentiefen Fenster im Wohnbereich sorgen für ausreichend Tageslicht und ein schönes Raumklima. Von hier aus gelangen Sie auf die großzügige Süd-Terrasse, welche zum Entspannen und Genießen im Freien einlädt.
Die offene Küche ist mit modernen Elektrogeräten namhafter Hersteller und einer hochwertigen Einbauküche ausgestattet, ideal für gemeinsame Kochabende. Ein direkt angrenzender Hauswirtschaftsraum mit Waschmaschinenanschluss sorgt für zusätzlichen Komfort und bietet einen Zugang zum Carport und Schuppen, sodass die Einkäufe trocken ins Haus gebracht werden können.
Über den Flur erreichen Sie rechter Hand das Gäste-Duschbad. Das dahinterliegende Hauptbadezimmer ist modern und hochwertig ausgestattet und bietet eine geräumige Dusche, eine Badewanne, ein Doppelwaschbecken und Tageslicht.
Drei zusätzliche Zimmer können individuell als Schlafzimmer, Arbeitszimmer oder Kinderzimmer genutzt werden. Eine innenliegende Treppe führt in einem der Zimmer in das 2024 ausgebaute Dachgeschoss mit ca. 49 m² Nutzfläche. Dieser Bereich eignet sich hervorragend als Büro oder Hobbyraum. Ein abgetrennter Bereich dient als praktischer Stauraum.
Im Außenbereich finden Sie neben einem Doppelcarport mit Platz für zwei Autos auch einen angrenzenden Schuppen, der Stauraum für Fahrräder, Gartengeräte und mehr bietet. Eine gepflegte Rasenfläche mit einer sonnenverwöhnten Terrasse an der Vorderseite des Hauses lädt zum Verweilen ein
PROVISIONSFREI | Hamburg Volksdorf | Gut geschnittener und modern ausgestatteter Bungalow
22359 Hamburg
Die vollständige Adresse der Immobilie erhalten Sie vom Anbieter.
Auf Karte anzeigen
Die vollständige Adresse der Immobilie erhalten Sie vom Anbieter.
Finanzierungszertifikat
In nur zwei Minuten zu Ihrem persönlichen Finanzierungszertifkat.
Infos
| Haustyp | Bungalow |
|---|---|
| Etagenzahl | 1 |
| Wohnfläche ca. | 101 m2 |
| Nutzfläche | 49 m2 |
| Grundstücksfläche | 564 m2 |
| Bezugsfrei ab | nach Vereinbarung |
| Zimmer | 4 |
| Schlafzimmer | 3 |
| Badezimmer | 2 |
| Garage/Stellplatz | Carport |
| Anzahl Garage/Stellplatz | 2 |
Kosten
| Kaufpreis |
720.000 € |
|---|---|
| Provision | Nein |
Finanzierungsrechner:
Kaufpreis:
600.000 €
Eigenkapital:
600.000 €
Monatliche Rate
0 €
Effektiver Jahreszins
0 %
Sollzinsbindung
10 Jahre
Bausubstanz & Energieausweis
| Baujahr | 2018 |
|---|---|
| Qualität der Austattung | Normal |
| Heizungsart | Zentralheizung |
| Wesentliche Energieträger | Gas |
| Energieausweis | liegt vor |
| Energieausweistyp | Bedarfsausweis |
| Energieverbrauchskennwert | 54,0 kWh/(m²*a) |
| Energieeffizienzklasse | B |
54,0
kWh/(m²*a)
Energieeffizienzklasse B
- A+
- A
- B
- C
- D
- E
- F
- G
- H
- 0
- 25
- 50
- 75
- 100
- 125
- 150
- 175
- 200
- 225
- >250
Beschreibung des Objekts
Ausstattung
- ca. 101 m² Wohnfläche zzgl. ca. 49 m² Nutzfläche im ausgebauten Dachgeschoss
- ca. 564 m² Grundstück in Südausrichtung
- Elektrische Außenrolläden im gesamten Erdgeschoss
- Hochwertige Alarmanlage
- Größtenteils bodentiefe Fenster für sehr gute Lichtverhältnisse
- Gäste-WC mit Dusche
- Modernes Tageslicht-Vollbad mit sep. bodengleicher Dusche und Doppelwaschtisch
- Halboffene, hochwertige Einbauküche mit E-Geräten namhafter Hersteller (bspw. Siemens)
- Doppelcarport mit anliegendem Schuppen
Zu beachten ist, dass entlang des Grundstücks Hochspannungsleitungen verlaufen. Weitere Informationen dazu erhalten Sie beim Bundesamt für Strahlenschutz: https://www.bfs.de/SharedDocs/Videos/BfS/DE/emf-stimmen-von-der-strasse-stromleitungen.html
Lage
Der Hamburger Stadtteil Volksdorf ist mitten im Grünen gelegen und zeichnet sich besonders durch die naturverbundene, familienfreundliche und hervorragend angebundene Lage aus. Diese Vorzüge machen Volksdorf zu einem der beliebtesten Stadtteile der Walddörfer. Der Stadtteil ist überwiegend mit Einfamilienhäusern bebaut und bietet eine hohe Lebensqualität für seine Bewohner. Insbesondere besticht durch seine charmante Atmosphäre, geprägt von traditionellen Fachwerkhäusern und großzügigen Gärten.
Die Nähe zum Naturschutzgebiet Volksdorfer Teichwiesen bietet zahlreiche Möglichkeiten für erholsame Spaziergänge und Outdoor-Aktivitäten. Neben den vielseitigen Einkaufsmöglichkeiten für den täglichen Bedarf im beliebten und belebten Volksdorfer Ortskern sind ebenfalls verschiedene charmante Restaurants oder angesagte Cafés vorhanden. Darüber hinaus findet zwei Mal pro Woche der beliebte Wochenmarkt statt. Eine große Auswahl an Freizeit- und Sportangeboten, wie z.B. ein Schwimmbad, das Kino oder auch verschiedene Angebote für Tennis, Reiten oder Golf vervollständigen die hohe Wohnqualität für Jung und Alt. Sportbegeisterte können sich in örtlichen Vereinen wie dem "TSV Volksdorf" engagieren oder in den nahegelegenen Parks wie dem "Alstertal-Wanderpark" entspannen. Eine gute Versorgung durch Ärzte und Apotheken sowie durch öffentliche Infrastruktur ist gegeben.
Die U-Bahn Haltestelle Buchenkamp ist in 10 Minuten fußläufig erreichbar. Mit dem Auto sind Sie über die nahegelegene Autobahn A1 gut angebunden, wodurch Sie die Stadtmitte und andere Stadtteile schnell erreichen.
Sonstige Angaben
Rechtshinweis/Haftungsausschluss:
Dieses Exposé wurde mit größtmöglicher Sorgfalt zusammengestellt. Trotzdem kann keine Haftung für die Richtigkeit, Vollständigkeit und Aktualität der Angaben übernommen werden. Alle Angaben erfolgen ohne Gewähr. Die Darstellungen sind unverbindlich und dienen lediglich der Information. Rechte Dritter sind vorbehalten. Jegliche Haftung für Schäden, die direkt oder indirekt aus der Verwendung dieses Exposés entstehen, ist ausgeschlossen. Die Angaben zum Objekt erfolgen im Namen unseres Auftraggebers und dienen zur Erstinformation.
Grundriss
Erdgeschoss
>
>
Dachgeschoss
>
>
Adresse
22359 Hamburg
Interessante Orte
Preis- und Lageinformationen
Preistrend für Bestandsimmobilien in Volksdorf