In einer ruhigen Seitenstraße im beliebten Bottroper Stadtteil Batenbrock befindet sich diese charmante Doppelhaushälfte aus dem Jahr 1937. Das Haus wurde im Jahr 2015 umfassend modernisiert und befindet sich in einem sehr gepflegten Zustand – ein Objekt ohne Sanierungsstau, das sowohl Kapitalanlegern als auch mittelfristig Eigennutzern eine attraktive Perspektive bietet.
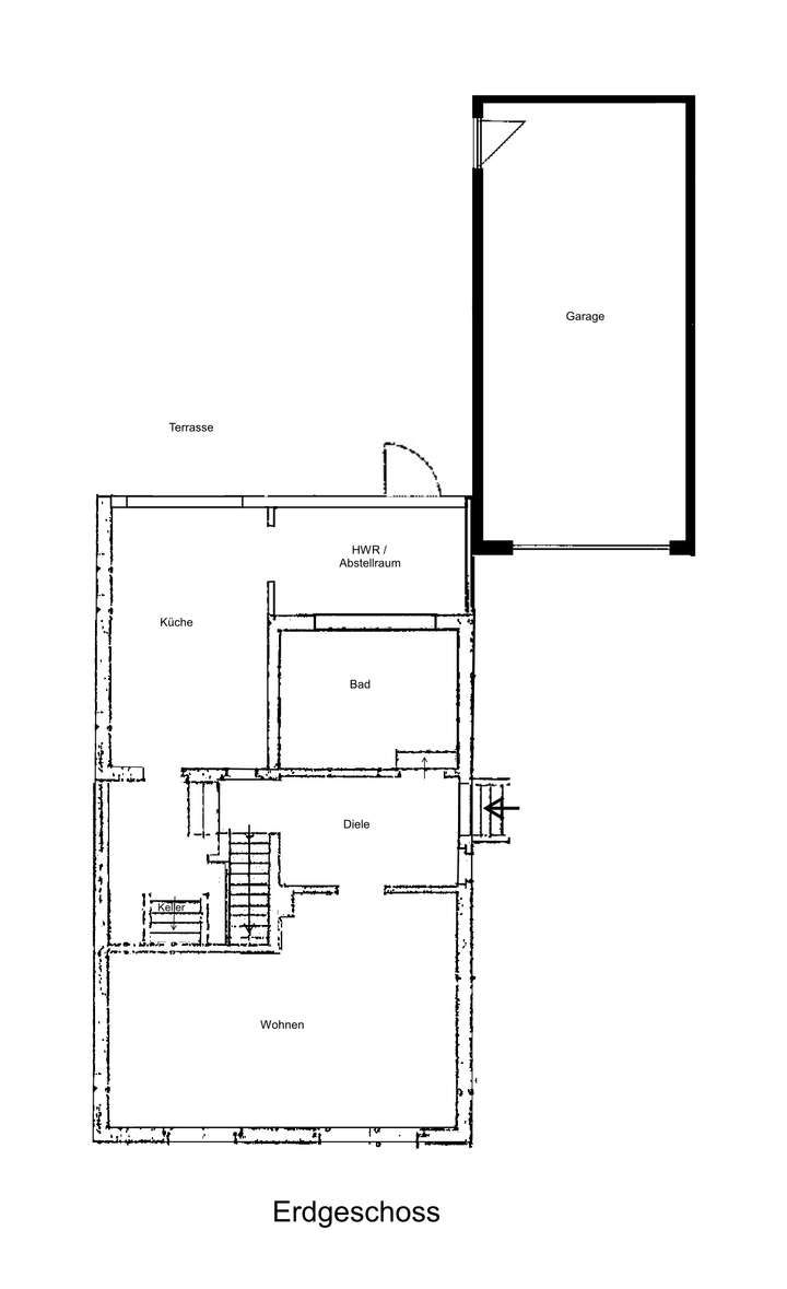
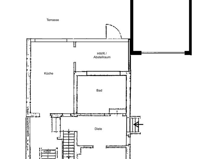
Die Wohnfläche beträgt ca. 85 m² und wurde durch einen Anbau erweitert. Im Erdgeschoss erwarten Sie ein gemütliches Wohnzimmer, eine Küche mit Zugang zum Garten, ein praktischer Hauswirtschaftsraum sowie ein großzügiges, barrierefreies Tageslichtbad, das im Jahr 2016 neu eingebaut wurde. Im Obergeschoss befinden sich zwei Schlafzimmer.
Der Keller bietet weitere Nutzflächen, darunter ein Badezimmer sowie ein Waschraum mit allen nötigen Anschlüssen.
Der liebevoll angelegte Garten ist mit seinen ca. 495 m² ein echtes Highlight und bietet vielfältige Nutzungsmöglichkeiten – sei es als Spielfläche für Kinder, Rückzugsort im Grünen oder als Nutzgarten. Die ebenfalls 2015 errichtete überlange Garage mit ca. 9 Metern bietet reichlich Platz für Fahrzeuge, Fahrräder oder Hobbybedarf.
Im Rahmen der Modernisierungsmaßnahmen im Jahr 2015 wurden nicht nur die Fenster und die Fassade erneuert, sondern auch die Heizungsanlage komplett ausgetauscht. Die Gaszentralheizung stammt ebenfalls aus dem Jahr 2015 und sorgt für eine zuverlässige und effiziente Wärmeversorgung.
Insgesamt präsentiert sich die Immobilie als durchdachtes, gepflegtes Zuhause mit viel Potenzial. Die ruhige Lage, der große Garten und der sehr gute bauliche Zustand machen dieses Haus zu einer seltenen Gelegenheit in Bottrop-Batenbrock. Ob zur Kapitalanlage oder als späteres Eigenheim – hier bieten sich Ihnen mittelfristig attraktive Entfaltungsmöglichkeiten.
Bottrop-Batenbrock: Moderne Doppelhaushälfte mit Anbau, Doppelgarage und großem Grundstück
46238 Bottrop
Die vollständige Adresse der Immobilie erhalten Sie vom Anbieter.
Auf Karte anzeigen
Die vollständige Adresse der Immobilie erhalten Sie vom Anbieter.
Finanzierungszertifikat
In nur zwei Minuten zu Ihrem persönlichen Finanzierungszertifkat.
Infos
| Haustyp | Doppelhaushaelfte |
|---|---|
| Etagenzahl | 2 |
| Wohnfläche ca. | 85 m2 |
| Nutzfläche | 80 m2 |
| Grundstücksfläche | 495 m2 |
| Bezugsfrei ab | nach Absprache |
| Zimmer | 3 |
| Schlafzimmer | 2 |
| Badezimmer | 1 |
| Garage/Stellplatz | Garage |
| Anzahl Garage/Stellplatz | 1 |
Kosten
| Kaufpreis |
249.000 € |
|---|---|
| Provision |
2,38 % inkl. MwSt. vom Kaufpreis Die Käuferprovision ist fällig und zahlbar nach dem Abschluss des notariellen Kaufvertrages. |
Finanzierungsrechner:
Kaufpreis:
600.000 €
Eigenkapital:
600.000 €
Monatliche Rate
0 €
Effektiver Jahreszins
0 %
Sollzinsbindung
10 Jahre
Bausubstanz & Energieausweis
| Baujahr | 1937 |
|---|---|
| Letzte Sanierung | 2016 |
| Objektzustand | Saniert |
| Qualität der Austattung | Normal |
| Heizungsart | Zentralheizung |
| Wesentliche Energieträger | Gas |
| Energieausweis | liegt vor |
| Energieausweistyp | Verbrauchsausweis |
| Energieverbrauchskennwert | 150,0 kWh/(m²*a) |
| Energieeffizienzklasse | E |
150,0
kWh/(m²*a)
Energieeffizienzklasse E
- A+
- A
- B
- C
- D
- E
- F
- G
- H
- 0
- 25
- 50
- 75
- 100
- 125
- 150
- 175
- 200
- 225
- >250
Beschreibung des Objekts
Lage
Die Immobilie befindet sich im Bottroper Stadtteil Batenbrock, einer gewachsenen und beliebten Wohnlage im Norden der Stadt. Die Straße liegt in einer ruhigen Seitenstraße mit Einfamilienhaus-Bebauung – ideal für alle, die Wert auf ein ruhiges und angenehmes Wohnumfeld legen.
Batenbrock zeichnet sich durch seine gute Infrastruktur und die Nähe zur Natur aus. Einkaufsmöglichkeiten für den täglichen Bedarf, Ärzte, Apotheken, Schulen und Kindergärten befinden sich in unmittelbarer Nähe. Auch größere Einkaufszentren und Gastronomieangebote sind schnell erreichbar. Die Bottroper Innenstadt ist in wenigen Minuten mit dem Auto oder öffentlichen Verkehrsmitteln erreichbar.
Sonstige Angaben
Bitte haben Sie Verständnis, dass wir nur Anfragen bearbeiten, die neben Ihrem Namen auch Ihre Telefonnummer und Anschrift enthalten.
Alle Objektdaten sind gemäß Angaben des Eigentümers erstellt worden. Für die Vollständigkeit der Angaben übernehmen wir keine Gewähr und Haftung.
Grundriss
EG
>
>
OG
>
>
Adresse
46238 Bottrop
Interessante Orte
Preis- und Lageinformationen
Preistrend für Bestandsimmobilien in Batenbrock-Nord