Dieses Einfamilienhaus aus dem Jahr 1974 präsentiert sich als außergewöhnlich vielseitige Immobilie mit einem seltenen Maß an Gestaltungsfreiheit.
Dank seiner massiven Bauweise und der leichten Hanglage bietet es bereits heute eine großzügige Wohnstruktur, eröffnet jedoch ebenso attraktive Optionen für Sanierung, Modernisierung oder einen kompletten Neubau.
Das Gebäude verfügt über ein Hochparterre (Erdgeschoss) sowie ein Untergeschoss mit Souterrain-Charakter, das durch den direkten, ebenerdigen Zugang von der Garage aus besonders praktisch ist. Auf diese Weise stehen neben den klassischen Wohnräumen auch zahlreiche flexibel nutzbare Flächen für Hobbys, Homeoffice oder Gäste zur Verfügung. Die großzügige Terrasse und der liebevoll eingewachsene Garten verleihen dem Anwesen einen wertvollen Charakter, der sich sonst nur über Jahrzehnte entwickeln lässt.
Für zukünftige Eigentümer eröffnet sich hier eine dreifache Wahl:
Einziehen und schrittweise modernisieren,
komplett kernsanieren, um ein zeitgemäßes Zuhause zu schaffen,
oder Abriss und Neubau, beispielsweise für ein hochwertiges Einfamilienhaus oder sogar zwei Doppelhaushälften – der neue Bebauungsplan 2025 erlaubt beides.
Ob als Familienwohnsitz, als Projekt für Bauherren und Investoren oder als Grundstück mit Potenzial – diese Immobilie vereint Substanz, Lage und Möglichkeiten zu einer seltenen Gelegenheit in Mering.
Wohnen, sanieren oder entwickeln – seltene Chance in begehrter Lage
Luisenstr. 37,
86415 Mering
Auf Karte anzeigen
Finanzierungszertifikat
In nur zwei Minuten zu Ihrem persönlichen Finanzierungszertifkat.
Infos
| Haustyp | Einfamilienhaus |
|---|---|
| Etagenzahl | 2 |
| Wohnfläche ca. | 169 m2 |
| Nutzfläche | 266 m2 |
| Grundstücksfläche | 680 m2 |
| Zimmer | 6 |
| Schlafzimmer | 4 |
| Badezimmer | 2 |
| Garage/Stellplatz | Garage |
| Anzahl Garage/Stellplatz | 3 |
Kosten
| Kaufpreis |
690.000 € |
|---|---|
| Provision |
3,57 % |
Finanzierungsrechner:
Kaufpreis:
600.000 €
Eigenkapital:
600.000 €
Monatliche Rate
0 €
Effektiver Jahreszins
0 %
Sollzinsbindung
10 Jahre
Bausubstanz & Energieausweis
| Baujahr | 1974 |
|---|---|
| Bauphase | Haus fertig gestellt |
| Objektzustand | Gepflegt |
| Qualität der Austattung | Normal |
| Heizungsart | Öl-Heizung |
| Wesentliche Energieträger | Öl |
| Energieausweis | liegt vor |
| Energieausweistyp | Bedarfsausweis |
| Energieverbrauchskennwert | 238,0 kWh/(m²*a) |
| Energieeffizienzklasse | G |
238,0
kWh/(m²*a)
Energieeffizienzklasse G
- A+
- A
- B
- C
- D
- E
- F
- G
- H
- 0
- 25
- 50
- 75
- 100
- 125
- 150
- 175
- 200
- 225
- >250
Beschreibung des Objekts
Ausstattung
Das Einfamilienhaus wurde 1974 in solider Massivbauweise errichtet und bietet eine durchdachte Raumstruktur mit vielen flexibel nutzbaren Flächen. Die Ausstattung stammt überwiegend aus dem Baujahr und bildet eine stabile Basis für Modernisierungen oder eine umfassende Sanierung nach individuellen Vorstellungen.
Vier Schlafzimmer, zwei Badezimmer und ein separates Gäste-WC
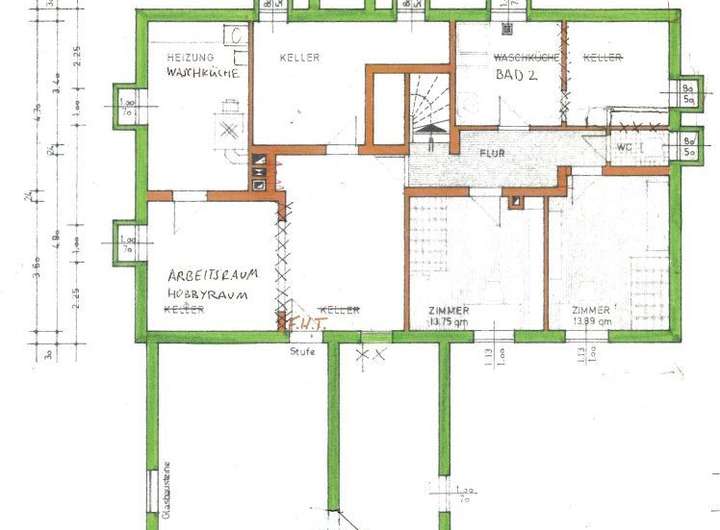
Großzügiges Untergeschoss (Souterrain) mit Hobby- und Nebenräumen, teilweise wohnähnlich nutzbar und mit ebenerdigem Zugang von der Garage
Ölzentralheizung von 2010, geprüfter und zugelassener Öltank
Holzkamin im Wohnbereich
Sonnige Terrasse und eingewachsener Garten mit wertvollem Baumbestand
Garage mit direktem Zugang ins Untergeschoss
Elektroinstallation in dreileitiger Ausführung mit Leitungsschutzschaltern (keine Schraubsicherungen), FI-Schutzschalter bislang nicht vorhanden
Diese Ausstattung bietet eine solide Grundlage für Käufer, die das Haus nach eigenen Vorstellungen renovieren, energetisch aufwerten oder umfassend modernisieren möchten.
Lage
Das Haus befindet sich in bester Wohnlage von Mering, in einer ruhigen, gewachsenen Nachbarschaft, die überwiegend von gepflegten Einfamilien- und Reihenhäusern geprägt ist. Hier verbinden sich familienfreundliche Umgebung, Natur und perfekte Anbindung auf ideale Weise.
Die Umgebung punktet mit viel Grün und einem weiten, offenen Blick über die Landschaft, der an klaren Tagen sogar gelegentlich die Alpen erahnen lässt. Trotz der idyllischen Atmosphäre ist die Infrastruktur erstklassig:
Bahnanschluss: Der Meringer Bahnhof ist nur wenige Minuten entfernt und bietet eine schnelle Verbindung nach München – der Regionalzug benötigt bis zum Münchner Hauptbahnhof ca. 20 Minuten – sowie nach Augsburg.
Straßenanbindung: Über die B2 erreichen Sie bequem sowohl München als auch Augsburg.
Freizeit & Natur: Direkter Zugang zum bayerischen Fünf-Seen-Land mit Ausflugszielen wie Ammersee und Mandichosee, die in kurzer Zeit erreichbar sind.
Alltag & Versorgung: Schulen, Kindergärten, Ärzte, Restaurants und zahlreiche Einkaufsmöglichkeiten befinden sich in bequemer Nähe.
Diese Lage kombiniert Ruhe und Naturverbundenheit mit einer hervorragenden Erreichbarkeit der beiden Großstädte – ein idealer Standort für Familien, Pendler und Bauherren mit Zukunftsvision.
Grundriss
Grundriss Erdgeschoss.jpg
>
>
Grundriss Kellergeschoss.jpg
>
>
Lageplan.jpg
>
>
Bebauungsplan Detailkarte.jpg
>
>
Adresse
Luisenstr. 37, 86415 Mering
Interessante Orte
Preis- und Lageinformationen
Preistrend für Bestandsimmobilien in Mering