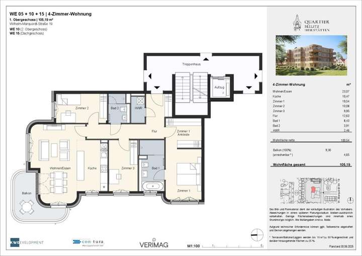
Lassen Sie sich von dieser attraktiven 4-Zimmer-Wohnung im 1. OG der Parkvilla "Eleonora" begeistern. Auf über 33 m² bietet das großzügige Wohn-/Esszimmer mit offenem Küchenbereich viel Platz für ein entspanntes Beisammensein mit Freunden und Familie. Von hier hat man auch Zugang zum großen West-Balkon der Wohnung. Ein besonderes Highlight sind die wunderschönen Blickbezüge zu den historischen Gebäuden und grünen Gartendenkmäler der Nachbarschaft.
Das geschmackvolle, tagesbelichtete Bad en Suite, sowohl mit einer Badewanne als auch mit einer bodengleichen Dusche ausgestattet, ist die kleine private Wellness-Oase. Das angrenzende schöne, geräumige Schlafzimmer mit separatem Ankleidebereich, zwei weitere Räume als Home-Office oder Schlaf-/Kinderzimmer nutzbar, sowie ein weiteres Duschbad und ein Hauswirtschaftsraum runden das Platzangebot ab.
Auf dem weitläufigen Terrain der historischen Heilstätten entsteht der ideale Ort, um sich neu zu verwurzeln: Das QUARTIER BEELITZ-HEILSTÄTTEN. Das Ensemble fügt sich auf rund 64 Hektar behutsam in die bestehende Waldlandschaft ein und umfasst insgesamt etwa 800 Häuser und rund 500 Wohnungen. Es entstehen verschiedene Einfamilienhaustypologien auf großen real geteilten Grundstücken sowie komfortable Eigentumswohnungen mit 2, 3 oder 4 Zimmern. Die gelungene Architektur spiegelt den besonderen Charme des Ortes in ihrer facettenreichen Gestaltung wider und setzt dabei eigene, moderne Akzente.
Projektdetails im Überblick:
- Hervorragende Infrastruktur durch Bahnhof und Busanbindung auf dem Gelände
- Schule und Kindergarten
- Einrichtungen des täglichen Bedarfs (Café, Bäckerei, Supermarkt, Friseur und Ärztehaus)
- Einrichtungen für betreutes Wohnen und Tagespflege
- Ladesäulen für E-Fahrzeuge
- Glasfaseranschluss
- Idyllischer Waldsee und weitläufige Parkanlagen auf dem Gelände
4-Zimmer-Wohnung am ehemenaligen Männersanatorium
Wilhelm-Marquordt-Straße 19,
14547 Beelitz
Auf Karte anzeigen
Finanzierungszertifikat
In nur zwei Minuten zu Ihrem persönlichen Finanzierungszertifkat.
Infos
| Wohnungskategorie | Etagenwohnung |
|---|---|
| Etage | 1 von 3 |
| Wohnfläche ca. | 105 m2 |
| Bezugsfrei ab | Frühjahr 2027 |
| Zimmer | 4 |
| Schlafzimmer | 3 |
| Badezimmer | 2 |
Kosten
| Kaufpreis |
529.000 € |
|---|---|
| Provision | Nein |
Finanzierungsrechner:
Kaufpreis:
600.000 €
Eigenkapital:
600.000 €
Monatliche Rate
0 €
Effektiver Jahreszins
0 %
Sollzinsbindung
10 Jahre
Bausubstanz & Energieausweis
| Baujahr | 2027 |
|---|---|
| Objektzustand | Erstbezug |
| Qualität der Austattung | Gehoben |
| Heizungsart | Blockheizkraftwerk |
| Wesentliche Energieträger | Nahwärme |
Beschreibung des Objekts
Ausstattung
- 3 bis 4 Zimmer mit 73 bis 113 m²
- Echtholzparkett in Wohn- und Schlafräumen
- Energiesparende Fußbodenheizung
- Feinsteinzeug in den Bädern und Hauswirtschaftsräumen
- Sanitärobjekte und Armaturen von Markenherstellern
- Elektrische Rollläden an allen Fenstern
- 3-Fach-Verglasung der Fenster
- Jede Wohnung mit Balkon oder Terrasse
- Gartenwohnungen mit Privatgarten, barrierefrei
- Aufzug in alle Etagen
- Fahrradabstellplatz und Abstellraum für jede Wohnung im Untergeschoss
- Tiefgaragenstellplätze (teilweise mit E-Lademanagement)
Lage
Das QUARTIER BEELITZ-HEILSTÄTTEN ist der ideale Ort für alle, die Nähe zur Natur suchen und den Anschluss an die Großstadt nicht verlieren möchten. Der historische Bahnhof nahe des neuen Wohnquartiers macht es besonders für Pendler attraktiv, die beispielsweise in Potsdam oder Berlin arbeiten. Die Zugverbindungen führen schnell und bequem ohne Umsteigen in die beiden Hauptstädte. Zum Stadtzentrum von Beelitz gelangt man in drei Kilometern.
- Alles fürs tägliche Leben: gleich um die Ecke
- Beelitz Stadt: 8 min mit dem Auto oder Bus
- Potsdam: 20 min mit dem ÖPNV oder Auto
- Berlin Hauptbahnhof: 38 min mit dem ÖPNV
- Berlin Alexanderplatz: 45 min mit dem Auto
- Flughafen BER: 30 min mit dem Auto
Sonstige Angaben
Der Verkauf erfolgt ohne zusätzliche Käuferprovision!
Willkommen im Showroom:
Straße am Bahnhof 3
14547 Beelitz-Heilstätten
Öffnungszeiten:
Sonntags 13 - 15 Uhr
oder nach individueller Vereinbarung!
Angaben nach EnEV: Energieausweis befindet sich in der Erstellung.
Änderungen und Irrtümer vorbehalten. Das Bild- und Planmaterial dient zum Teil der vorläufigen Illustration des Vorhabens. Insbesondere die Visualisierungen o. ä. sind unverbindlich und zeigen teilweise Sonderausstattungen und Einrichtungen, die als Möblierungsvorschläge zu verstehen sind.
Weitere Dokumente
Eleonora_WE 05_GrundrissGrundriss
Eleonora_WE 05_Grundriss
>
>
Adresse
Wilhelm-Marquordt-Straße 19, 14547 Beelitz
Interessante Orte
Preis- und Lageinformationen
Preistrend für Bestandsimmobilien in Beelitz